Prodej bytu, 3+kk, 79 m²
Na Pastvinách, Svinaře, Beroun
8 790 000 KčProdej bytu, 3+kk, 79 m²
Na Pastvinách, Svinaře, Beroun
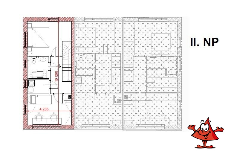
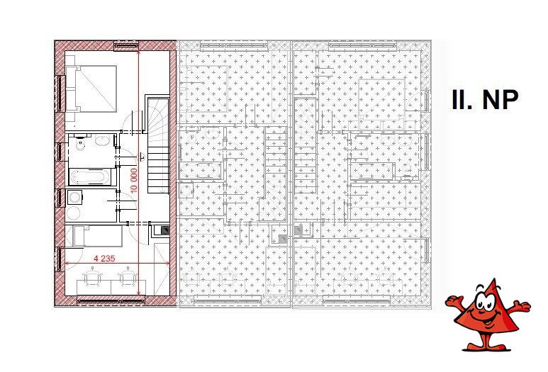
Prodej bytu 3+kk s terasou a zahrádkou, 79,3 m² - Svinaře
Byt je dvoupodlažní, v menším domě (společně s dalšími dvěma byty) postaveném v nízkoenergetickém standardu. Na obvodové zdivo použity tepelně izolační cihelné bloky Porotoherm, tl. EKO 44 Dry fix, okna plastová, 6 komorový profil s trojsklem. Vytápění je řešeno tepleným čerpadlem vzduch/vzduch a krbovými kamny, energetická třída B = velmi úsporný.
Díky dispozičnímu řešení jsou od sebe odděleny klidová část s ložnicemi a jednou koupelnou (v patře) a obytná část, v níž je další koupelna, kuchyňský kout a prostorný obývací pokoj s přímo navazující venkovní terasou a zahrádkou.
Součástí prodeje je i pozemek o výměře 406,9 m2, zahrnující parkování pro 2 auta a oplocenou zahrádku.
Svinaře jsou malá obec s vlastním obecním úřadem, poštou, hospodou, prodejnou potravin a mateřskou školou. Doprava do Prahy nebo Berouna autem, případně autobusem, či vlakem - frekvence na blízké trati Praha – Beroun je vysoká.
Kupující neplatí žádnou provizi ani jiné skryté poplatky, veškerý právní servis je zajištěn, případné financování prostřednictvím hypotéčního úvěru připraveno.
| Cena: | 8 790 000 Kč |
| Dispozice/podlahová plocha: | 3+kk/79 m² |
| Číslo zakázky: | REALITYMIX-NS02524 |
Podrobné informace
- Dispozice bytu: 3+kk
- Číslo podlaží v domě: 1
- Počet podlaží objektu: 2
- Celková podlahová plocha: 79 m²
- Druh objektu: cihlová
- Stav objektu: novostavba
- Vlastnictví: osobní
- Terasa: 7 m²
- Energetická náročnost budovy: B - Velmi úsporná
- Ukazatel energetické náročnosti budovy: 50 kWh/m²
- Energetický ukazatel podle vyhlášky: č. 264/2020 Sb.
Právní rádce
-
Detail
V tomto článku shrneme nejdůležitější věci, které byste si měli promyslet, pokud se chystáte prodat svou nemovitost a chcete, abyste s kupujícím nemusel následně řešit vzniklé problémy.
Jako prodávající nesete rizika spojená nejen se samotným obchodem, ale i se stavem nemovitosti v době prodeje a pro minimalizaci rizik, je dobré se zamyslet nad uvedenými oblastmi.
-
Detail
Realitní makléř má své nezastupitelné místo v realitním obchodu. Realitním makléřem nemyslím nevzdělané jelito, které absolvovalo dvoudenní školení a ví, jak se nahraje inzerát na inzertní portál.
Realitním makléřem, který se Vám skutečně vyplatí, je zkušený profesionál, který je schopen Vám dobře poradit jak prodat za co nejvíc a s nejmenším rizikem a hlavně je Vás schopen obratně provést celým realitním obchodem.