Prodej - hotel, 111 m²
21. dubna, Valtice, Břeclav
7 490 000 KčProdej - hotel, 111 m²
21. dubna, Valtice, Břeclav
Prodej hotelu, 111 m²
V jedné z nejžádanějších vinařských lokalit jižní Moravy nabízíme k prodeji stylový apartmánový dům s fungujícím ubytovacím provozem, který představuje ideální spojení investice, podnikání i vlastního rekreačního zázemí.
Nemovitost se nachází v malebném prostředí Valtic, města vína, historie a turistiky, které je každoročně vyhledávaným cílem návštěvníků z celé České republiky i zahraničí. Díky silné turistické poptávce nabízí dům stabilní potenciál pravidelného výnosu z krátkodobých pronájmů.
Velkou přidanou hodnotou je, že součástí prodeje je zavedená klientela i funkční webová prezentace, což umožňuje plynulé převzetí provozu bez nutnosti budovat podnikání od začátku.
Nemovitost s promyšleným konceptem
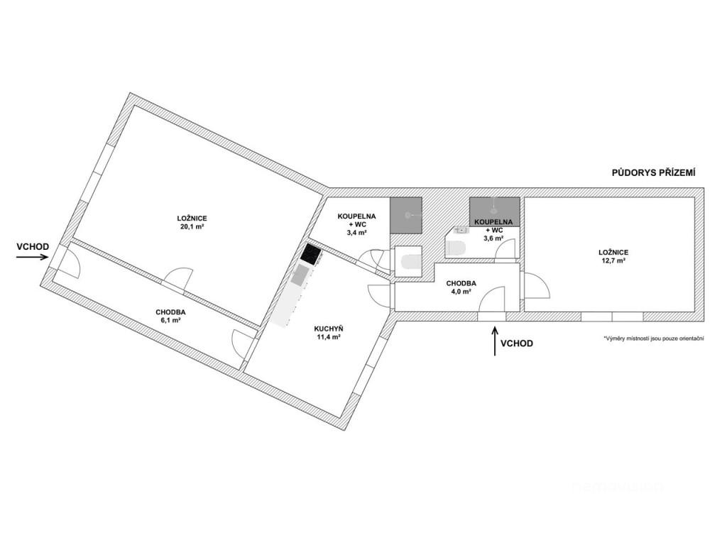
Dům o užitné ploše 111 m², stojící na pozemku 228 m², je prakticky rozdělen na čtyři samostatné apartmány, které umožňují maximální flexibilitu využití.
Dispozice domu umožňuje:
• plnohodnotný komerční provoz ubytování
• kombinaci vlastního bydlení a podnikání
• pronájem po jednotlivých apartmánech nebo jako celek pro větší skupiny
Díky tomuto řešení lze velmi efektivně reagovat na poptávku hostů a optimalizovat obsazenost během celého roku.
Dispozice apartmánů:
Apartmány 1 a 2
Tyto apartmány mohou fungovat samostatně nebo jako jeden celek, což je ideální pro rodiny či větší skupiny hostů.
Apartmán 1 (kapacita 3 osoby)
• manželská postel
• samostatné lůžko
• vlastní koupelna (sprcha, WC, umyvadlo)
Apartmán 2 (kapacita 2 osoby)
• manželská postel
• koupelna (sprcha, WC, umyvadlo)
Apartmány sdílí plně vybavenou kuchyň a lze je oddělit uzamykatelnými dveřmi.
Apartmány 3 a 4
Samostatná část domu se společným vstupem, ideální pro společné pobyty přátel či rodin.
Apartmán 3 (kapacita 2 osoby)
• oddělené postele s možností spojení
• vlastní kuchyňka
• samostatné WC
Apartmán 4 (kapacita 3 osoby – v patře)
• manželská postel
• samostatné lůžko
• kuchyňka
• samostatné WC
Každý apartmán disponuje vlastním zázemím. Ideální pro skupinové rezervace.
Valtice jsou součástí Lednicko-valtického areálu, zapsaného na seznamu UNESCO, a dlouhodobě patří mezi nejvyhledávanější turistické destinace na jižní Moravě.
Hosté zde vyhledávají:
• vinařskou turistiku
• cyklostezky mezi vinicemi
• historické památky
• gastronomii a kulturní akce
To vše zajišťuje stabilní poptávku po kvalitním ubytování po většinu roku.
Hlavní benefity investice
- prestižní turistická lokalita
- zavedený a funkční ubytovací provoz
- okamžitý potenciál výnosu
- flexibilní využití nemovitosti
- možnost dalšího rozvoje a marketingu
Možnosti využití
• investiční apartmánový dům
• kombinace vlastního bydlení a podnikání
• rekreační objekt pro rodinu
• vícegenerační bydlení
• pronájem přes platformy Airbnb nebo Booking
Tato nemovitost není pouze domem – představuje fungující projekt s potenciálem dalšího růstu v jedné z nejatraktivnějších vinařských oblastí České republiky.
| Cena: | 7 490 000 Kč |
| Číslo zakázky: | REALITYMIX-185 |
Podrobné informace
- Užitná plocha: 111 m²
- Druh objektu: cihlová
- Stav objektu: velmi dobrý
- Typ zařízení: Hotel
- Elektřina: Elektro - 230 V
- Voda: Voda - dálkový vodovod
- Plyn: Plynovod
- Topení: Jiné
- Odpad: Kanalizace
Právní rádce
-
Detail
V tomto článku shrneme nejdůležitější věci, které byste si měli promyslet, pokud se chystáte prodat svou nemovitost a chcete, abyste s kupujícím nemusel následně řešit vzniklé problémy.
Jako prodávající nesete rizika spojená nejen se samotným obchodem, ale i se stavem nemovitosti v době prodeje a pro minimalizaci rizik, je dobré se zamyslet nad uvedenými oblastmi.
-
Detail
Realitní makléř má své nezastupitelné místo v realitním obchodu. Realitním makléřem nemyslím nevzdělané jelito, které absolvovalo dvoudenní školení a ví, jak se nahraje inzerát na inzertní portál.
Realitním makléřem, který se Vám skutečně vyplatí, je zkušený profesionál, který je schopen Vám dobře poradit jak prodat za co nejvíc a s nejmenším rizikem a hlavně je Vás schopen obratně provést celým realitním obchodem.