Prodej bytu, 3+kk, 89 m²
Vavřinec, Blansko
7 315 000 KčProdej bytu, 3+kk, 89 m²
Vavřinec, Blansko
Prodej bytu 3+kk 89 m², Vavřinec
Exkluzivní novostavba bytu s balkonem a nádherným výhledem – Vavřinec u Blanska
Hledáte domov, který kombinuje klid, soukromí, luxusní prostor a kvalitní stavbu?
Máme pro vás jedinečnou nabídku – prostorný, slunný byt v exkluzivním viladomě v malebném Vavřinci u Blanska.
Tento cihlový dům nejvyšší kvality byl postaven s maximálním důrazem na energetickou úspornost a dlouhou životnost. Všechny stropy včetně střešní konstrukce jsou monolitické železobetonové, příčkové zdivo zděné, interiérové dveře vysoké 210 cm a po celém bytě je komfortní podlahové vytápění.
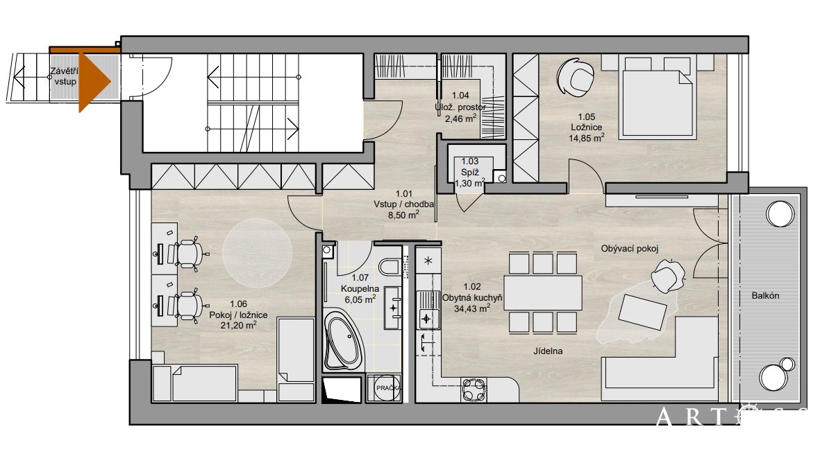
Dominantou bytu je obývací pokoj s kuchyňským koutem o rozloze 34,4 m² s přímým vstupem na balkon (6,7 m²), odkud vás okouzlí nerušený výhled na okolní louky a lesy. Byt je navržen tak, aby poskytoval maximální ergonomii a prostor – nechybí ani samostatná zděná spíž v kuchyni a prostorná šatna u vstupu.
Součástí prodeje je vlastní parkovací stání a sklepní kóje v suterénu domu.
Viladům je koncipován s ohledem na absolutní soukromí – každý byt má promyšlené umístění, aby byl klid a maximální komfort .
Dispozice bytu:
Obývací pokoj s jídelnou: 34,43 m²
Ložnice: 14,85 m²
Pokoj: 21,20 m²
Koupelna: 6,05 m²
Chodba: 8,50 m²
Spíž: 1,30 m²
Balkon: 6,7 m²
Sklep: 4,60 m²
Užitná plocha bez balkonu a sklepa: 89 m²
Lokalita:
Vavřinec nabízí přímé autobusové spojení do Blanska a kouzlo bydlení v přírodě, přesto s dobrou dostupností města.
Aktuálně pracujeme na dokončení bytů, předpokládaný termín kolaudace je koncem tohoto roku. Cena je za dokončený, zkolaudovaný byt bez kuchyňské linky.
Dopřejte si domov, který má vše, doporučuji osobní prohlídku.
Na konci fotogalerie průběh stavby.
| Cena: | 7 315 000 Kč |
| Dispozice/podlahová plocha: | 3+kk/89 m² |
| Číslo zakázky: | REALITYMIX-319251086 |
Podrobné informace
- Dispozice bytu: 3+kk
- Číslo podlaží v domě: 3
- Počet podlaží objektu: 1
- Celková podlahová plocha: 89 m²
- Druh objektu: cihlová
- Stav objektu: novostavba
- Stáří objektu: 2025
- Vlastnictví: osobní
- Balkon: 7 m²
- Energetická náročnost budovy: B - Velmi úsporná
- Ukazatel energetické náročnosti budovy: 61.8 kWh/m²
- Energetický ukazatel podle vyhlášky: č. 264/2020 Sb.
Právní rádce
-
Detail
V tomto článku shrneme nejdůležitější věci, které byste si měli promyslet, pokud se chystáte prodat svou nemovitost a chcete, abyste s kupujícím nemusel následně řešit vzniklé problémy.
Jako prodávající nesete rizika spojená nejen se samotným obchodem, ale i se stavem nemovitosti v době prodeje a pro minimalizaci rizik, je dobré se zamyslet nad uvedenými oblastmi.
-
Detail
Realitní makléř má své nezastupitelné místo v realitním obchodu. Realitním makléřem nemyslím nevzdělané jelito, které absolvovalo dvoudenní školení a ví, jak se nahraje inzerát na inzertní portál.
Realitním makléřem, který se Vám skutečně vyplatí, je zkušený profesionál, který je schopen Vám dobře poradit jak prodat za co nejvíc a s nejmenším rizikem a hlavně je Vás schopen obratně provést celým realitním obchodem.