Prodej bytu, 2+kk, 62 m²
Velešovice, Vyškov
6 499 000 KčProdej bytu, 2+kk, 62 m²
Velešovice, Vyškov
Prodej bytu 2+kk, 62m² - Velešovice
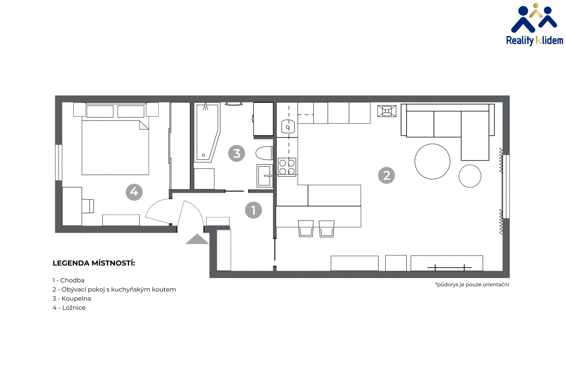
Jedná se o byt o rozloze 62 m² podlahové plochy a komorou 4 m², který je umístěn na 1. nadzemním podlaží cihlového bytového domu.
Vyúčtování za služby z loňského roku je k dispozici k nahlédnutí.
V bytě jsou instalovány bezpečností dveře, plastová okna jsou vybavena žaluziemi a ochrannými sítěmi proti hmyzu.
Součástí obývacího pokoje je krásná, na míru zhotovená, kuchyňská linka s vestavnými spotřebiči. Myčka na nádobí, trouba, mikrovlnná trouba, indukční deska a lednička s mrazákem jsou vkusně zakomponovány do interiéru. Byt je vytápěn deskovými radiátory, v koupelně se nachází topný žebřík.
Byt je zařízený s vynilovými podlahami, moderní koupelnou a vestavnou skříní v ložnici a na chodbě.
Součástí prodeje je i podíl na společné zahradě za domem k bytu též náleží 2 parkovací místa v garáži pod domem.
V okolí je dostatek parkovacích stání pro návštěvy a pěší vzdálenost od veškeré občanské vybavenosti, obchodů, restaurací a škol.
Velešovice jsou klidná obec nacházející se v blízkosti Brna a Rousínova.
Současně Velešovice nabízí vše, co je potřeba k pohodlnému bydlení, mateřskou školu, praktického lékaře, poštu, dětská hřiště, sportoviště i výběh pro psy. V případě potřeby se lze pohodlně a rychle dostat do centra Brna.
Tato nabídka je ideální pro ty, kteří hledají moderní a pohodlné bydlení v klidné lokalitě s dobrou dostupností služeb.
| Cena: | 6 499 000 Kč |
| Dispozice/podlahová plocha: | 2+kk/62 m² |
| Číslo zakázky: | REALITYMIX-00179 |
Podrobné informace
- Dispozice bytu: 2+kk
- Číslo podlaží v domě: 1
- Počet podlaží objektu: 3
- Celková podlahová plocha: 62 m²
- Druh objektu: cihlová
- Stav objektu: velmi dobrý
- Vlastnictví: osobní
- Sklep: 4 m²
- Vybaveno: ano
- Umístění objektu: klidná část obce
- Doprava: dálnice, silnice, MHD, autobus
- Elektřina: Elektro - 230 V
- Voda: Voda - dálkový vodovod
- Telekomunikace: Internet
- Plyn: Plynovod
- Topení: Ústřední - plynové
- Odpad: Kanalizace
- Energetická náročnost budovy: C - Úsporná
- Ukazatel energetické náročnosti budovy: 174 kWh/m²
- Energetický ukazatel podle vyhlášky: č. 78/2013 Sb.
Právní rádce
-
Detail
V tomto článku shrneme nejdůležitější věci, které byste si měli promyslet, pokud se chystáte prodat svou nemovitost a chcete, abyste s kupujícím nemusel následně řešit vzniklé problémy.
Jako prodávající nesete rizika spojená nejen se samotným obchodem, ale i se stavem nemovitosti v době prodeje a pro minimalizaci rizik, je dobré se zamyslet nad uvedenými oblastmi.
-
Detail
Realitní makléř má své nezastupitelné místo v realitním obchodu. Realitním makléřem nemyslím nevzdělané jelito, které absolvovalo dvoudenní školení a ví, jak se nahraje inzerát na inzertní portál.
Realitním makléřem, který se Vám skutečně vyplatí, je zkušený profesionál, který je schopen Vám dobře poradit jak prodat za co nejvíc a s nejmenším rizikem a hlavně je Vás schopen obratně provést celým realitním obchodem.