Prodej - chata/rekreační objekt, 119 m²
Velká Buková, Rakovník
6 290 000 KčProdej - chata/rekreační objekt, 119 m²
Velká Buková, Rakovník
Prodej chalupy5+1 s velkým pozemkem ve Velké Bukové, v srdci Křivoklátských lesů
Nabízíme k prodeji výjimečnou rezidenční nemovitost spojující komfort rodinného domu, atmosféru tradiční chalupy, soukromí vily i kouzlo rekreační chaty o dispozici 5+1 s velkým pozemkem o rozloze 986 m² v obci Velká Buková, přímo v CHKO Křivoklátsko. Klidné a slunné místo na okraji obce nabízí soukromí, zeleň a krásné výhledy do okolní krajiny.
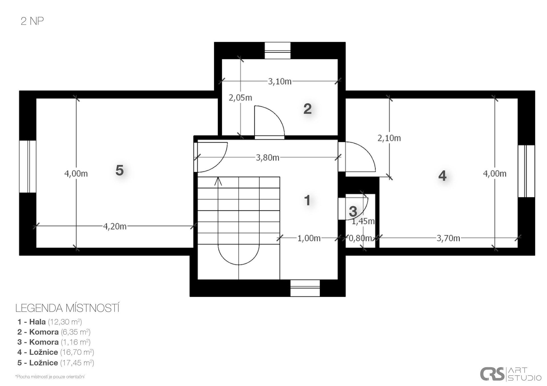
Chalupa s podlahovou plochou cca 126,4 m² je částečně podsklepený, vytápěný elektrokotlem a krbem, ohřev vody zajišťuje bojler. Připojení na obecní vodovod, kanalizace na hranici pozemku. Součástí je garáž a parkování na vlastním pozemku. V roce 2024 proběhla částečná rekonstrukce.
1 NP: 64,78 m2, obytné podkroví: 61,62 m2.
Zahrada nabízí dostatek prostoru pro odpočinek, pěstování nebo dětské hry. Terasa s výhledem do zahrady zve k ranní kávě i večernímu posezení.
Lokalita:
Velká Buková je malebná obec obklopená lesy, ideální pro klidné bydlení i rekreaci. V okolí jsou turistické trasy, cyklostezky i známý hrad Křivoklát.
Křivoklát – 5 km
Rakovník – 18 min
Beroun – 30 min
Praha – cca 50 min
Veškerá občanská vybavenost v nedalekých Roztokách a Křivoklátě (škola, školka, obchod, lékař, restaurace).
Dům je vhodný pro:
rodiny hledající klidné bydlení v přírodě,
zájemce o rekreační objekt s celoročním využitím,
investory.
Cena: 6.290.000 Kč
Pro více informací nebo sjednání prohlídky mě neváhejte kontaktovat.
PENB: E
| Cena: | 6 290 000 Kč |
| Datum k nastěhování: | 22.08.2025 |
| Číslo zakázky: | REALITYMIX-975832 |
Podrobné informace
- Zastavěná plocha: 392 m²
- Užitná plocha: 119 m²
- Plocha parcely: 986 m²
- Druh objektu: cihlová
- Stav objektu: dobrý
- Počet podlaží objektu: 2
- Umístění objektu: klidná část obce
- Doprava: MHD
- Elektřina: Elektro - 230 V, Elektro - 380 V
- Voda: Zdroj pro celý objekt, Voda - dálkový vodovod
- Odpad: Kanalizace
- Energetická náročnost budovy: E - Nehospodárná
- Energetický ukazatel podle vyhlášky: č. 264/2020 Sb.
- Popis vybavení: .
Právní rádce
-
Detail
V tomto článku shrneme nejdůležitější věci, které byste si měli promyslet, pokud se chystáte prodat svou nemovitost a chcete, abyste s kupujícím nemusel následně řešit vzniklé problémy.
Jako prodávající nesete rizika spojená nejen se samotným obchodem, ale i se stavem nemovitosti v době prodeje a pro minimalizaci rizik, je dobré se zamyslet nad uvedenými oblastmi.
-
Detail
Realitní makléř má své nezastupitelné místo v realitním obchodu. Realitním makléřem nemyslím nevzdělané jelito, které absolvovalo dvoudenní školení a ví, jak se nahraje inzerát na inzertní portál.
Realitním makléřem, který se Vám skutečně vyplatí, je zkušený profesionál, který je schopen Vám dobře poradit jak prodat za co nejvíc a s nejmenším rizikem a hlavně je Vás schopen obratně provést celým realitním obchodem.