Prodej - skladovací prostor, 2 322 m²
Věžky, Kroměříž
Cena na vyžádáníProdej - skladovací prostor, 2 322 m²
Věžky, Kroměříž
Prodej komerční nemovitosti – Věžky, Zlínský kraj
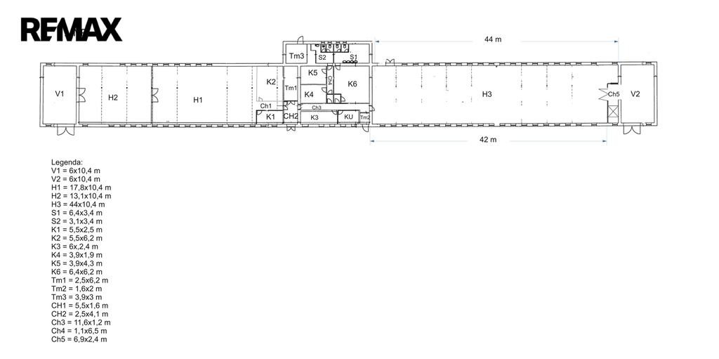
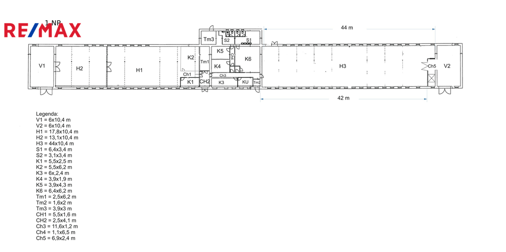
Tato samostatně stojící komerční budova ve Věžkách nabízí široké možnosti využití – ať už pro lehkou výrobu, skladování, logistiku, dílnu, sídlo firmy nebo jako investiční příležitost k pronájmu. Nachází se v okrajové části obce s dobrou dostupností do Kroměříže, Hulína i na dálnici D1 (cca 10 minut jízdy), což z ní dělá strategické místo pro podnikatelskou činnost. Hlavní budova nabízí v 1.NP rozlohu přibližně 1152 m² a je po po rekonstrukci převážné části rozvodů elektřiny, podlah, oken a zateplení stropu. V podkroví se nachází skladové prostory bez vytápění o celkové rozloze cca 1168 m². Do podkroví vede funkční průmyslový výtah, který usnadňuje manipulaci s materiálem i zbožím. Součástí objektu jsou na obou krajních stranách stropní otvory, skrz které lze materiál/zboží snadno dodat do podkroví vysokozdvižným vozíkem. Součástí projede je i přes cestu sousedící budova, která slouží ke skladovým účelům a je celkově v původním stavu se zastavěnou plochou 95 m².
Klíčové vlastnosti nemovitosti:
- Robustní zděná konstrukce v dobrém technickém stavu
- Přímý přístup z obecní komunikace, pohodlné parkování i pro větší vozy
- Zavedena elektřina (včetně 400 V), voda, kanalizace, plyn
- Možnost rozšíření nebo rekonstrukce dle potřeb nového vlastníka
- Vlastní pozemek – vhodný i pro skladování, garáže nebo další výstavbu
- Již zavedená nabíječka pro elektromobily
Potenciál využití:
● Výrobní prostory
● Sklad/dílny/logistika
● E-shop s výdejnou
● Investiční objekt pro pronájem podnikatelům
● Kombinace komerce a kanceláří
Lokalita s potenciálem:
Obec Věžky leží v dojezdové vzdálenosti od Kroměříže a Zlína, s napojením na důležité dopravní tahy. Budova se nachází v klidném prostředí, ale s výbornou dostupností – ideální kombinace pro podnikání bez zbytečných kompromisů.
???? V případě zájmu mě neváhejte kontaktovat pro více informací či prohlídku nemovitosti.
Tato nemovitost čeká na nové využití – bude to právě váš projekt? Prodávající si vyhrazuje právo vybrat kupujícího na základě jím zvolených kritérií.
| Cena: | Cena na vyžádání |
| Poznámka: | cena u makléře |
| Číslo zakázky: | REALITYMIX-423826 |
Podrobné informace
- Celková plocha: 2322 m²
- Plocha parcely: 1342 m²
- Druh objektu: cihlová
- Stav objektu: dobrý
- Druh prostor: Skladovací
- Ostatní: Výtah
- Umístění objektu: okraj obce
- Doprava: dálnice, silnice, autobus
- Komunikace: asfaltová
- Elektřina: Elektro - 230 V, Elektro - 400 V
- Voda: Voda - dálkový vodovod
- Telekomunikace: Telefon, Internet
- Plyn: Plynovod
- Odpad: Kanalizace
- Energetická náročnost budovy: G - Mimořádně nehospodárná
- Energetický ukazatel podle vyhlášky: č. 264/2020 Sb.
Právní rádce
-
Detail
V tomto článku shrneme nejdůležitější věci, které byste si měli promyslet, pokud se chystáte prodat svou nemovitost a chcete, abyste s kupujícím nemusel následně řešit vzniklé problémy.
Jako prodávající nesete rizika spojená nejen se samotným obchodem, ale i se stavem nemovitosti v době prodeje a pro minimalizaci rizik, je dobré se zamyslet nad uvedenými oblastmi.
-
Detail
Realitní makléř má své nezastupitelné místo v realitním obchodu. Realitním makléřem nemyslím nevzdělané jelito, které absolvovalo dvoudenní školení a ví, jak se nahraje inzerát na inzertní portál.
Realitním makléřem, který se Vám skutečně vyplatí, je zkušený profesionál, který je schopen Vám dobře poradit jak prodat za co nejvíc a s nejmenším rizikem a hlavně je Vás schopen obratně provést celým realitním obchodem.