Prodej bytu, 5+kk, 130 m²
Vimperk III, Vimperk, Prachatice
7 850 000 KčProdej bytu, 5+kk, 130 m²
Vimperk III, Vimperk, Prachatice
Prodej moderního dvoupodlažního bytu 5+kk (130 m²) s privátní zahradou (564 m²) a dvěma parkovacími
Byt se nachází v novostavbě cihlového dvojdomu z roku 2024, umístěného na okraji obce — tam, kde končí ulice a začínají louky, lesy a svoboda.
Proč je tenhle domov jiný než ostatní?
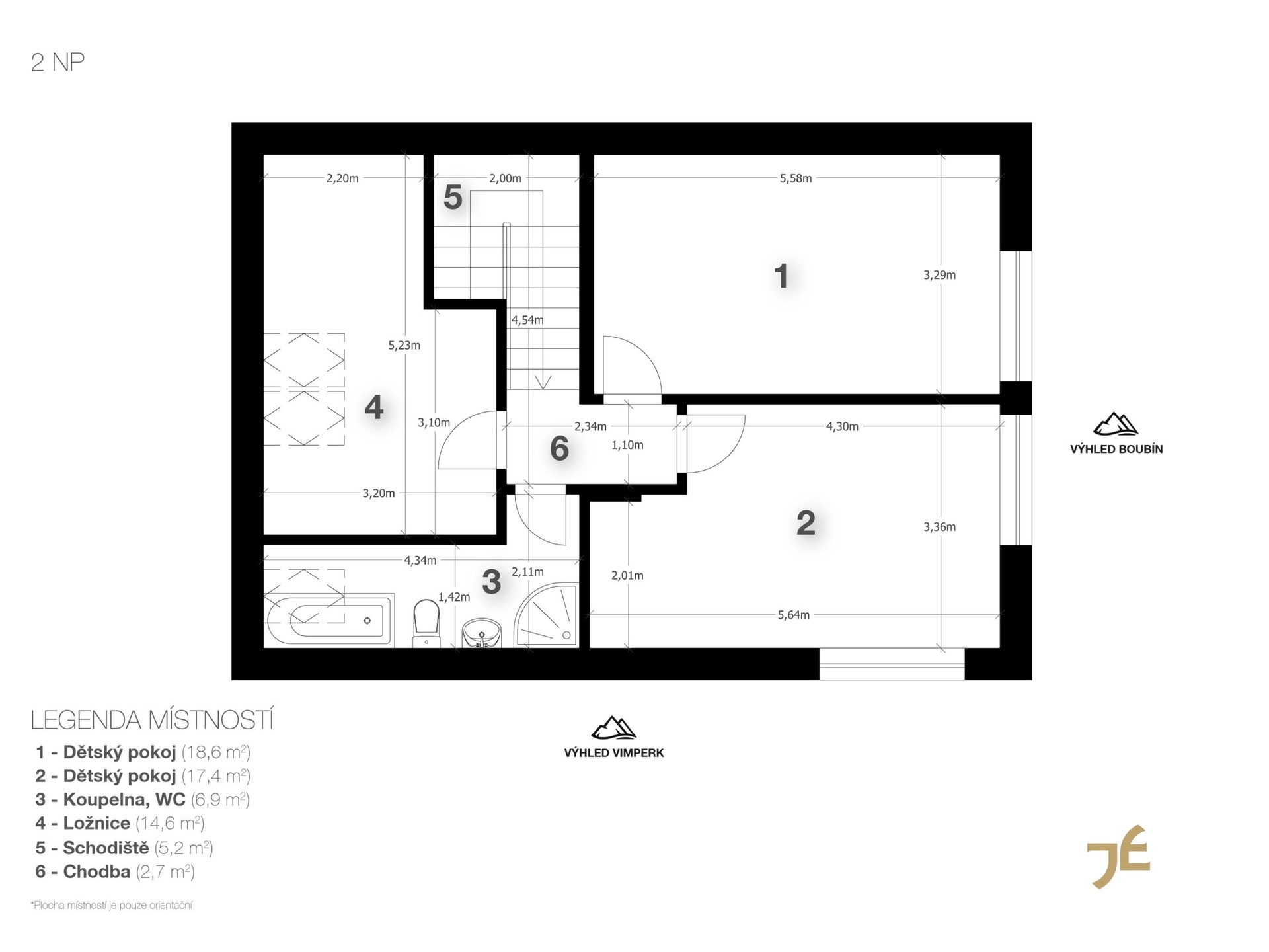
- Velkorysá užitná plocha 130 m² poskytuje prostor pro volný, rodinný i tvůrčí život.
- Pokoj pro hosty nebo pracovna v přízemí hned za vchodem do domu.
- Dvě koupelny - v přízemí se sprchovým koutem, v patře s vanou.
- Podlahové vytápění v celém domě a komín na krbová kamna v obývacím pokoji.
- Privátní zahrada 564 m² je vaše vlastní zelená oáza – místo na práci venku, odpočinek, zahradničení nebo ranní kávu s výhledem do přírody.
- Dvě parkovací stání s přípravou na nabíjení elektromobilu myslí na budoucnost.
- Nezaměnitelný výhled na majestátní Boubín každý den připomene, proč jste odešli z města.
- Perfektní akustické odhlučnění mezi jednotkami zaručuje soukromí i klid.
- Ekologicky úsporné bydlení díky tepelnému čerpadlu, retenční nádrži a přípravě na fotovoltaiku.
- Podlahy, koupelny a toalety jsou již hotové – můžete si doladit interiér podle sebe.
Promyšlený design, promyšlený život
Dvojdům je navržený s důrazem na soukromí i pohodlí. Každá jednotka má vlastní kanalizační přípojku, vodoměr, podlahové vytápění v celém domě i přípravu pro fotovoltaiku. Tři pokoje mají výhled přímo na Boubín a jeden z nich – díky lomeným oknům – nabízí navíc panorama Vimperka. Místo, kde ráno začíná světlem a tichým výhledem do zeleně.
Lokalita – příroda na dosah, civilizace nablízku
Když chcete úplný klid, vyjdete před dům a jste v přírodě. Když potřebujete nákupy nebo služby, RETAIL PARK VIMPERK je jen 3 minuty autem. A pokud rádi chodíte, 500 metrů od domu leží Velká Homolka, odkud máte celé město jako na dlani. Lesy, traily, hory – vše kousek od vás. Tady se žije pomaleji, volněji a opravdověji. Místo, kde může začít váš nový život
Obklopeni šumavskou přírodou a hlubokými lesy tu můžete snadno najít to, co často ve městě chybí: prostor, klid a svobodu.
Ozvěte se mi a domluvte si prohlídku. Možná právě tady začíná vaše další životní kapitola.
| Cena: | 7 850 000 Kč |
| Dispozice/podlahová plocha: | 5+kk/130 m² |
| Číslo zakázky: | REALITYMIX-00007 |
Podrobné informace
- Dispozice bytu: 5+kk
- Číslo podlaží v domě: 1
- Počet podlaží objektu: 2
- Celková podlahová plocha: 130 m²
- Druh objektu: cihlová
- Stav objektu: novostavba
- Stáří objektu: 2024
- Vlastnictví: osobní
- Výška stropu: 2 m
- Terasa: 10 m²
- Umístění objektu: okraj obce
- Doprava: vlak, silnice, autobus
- Elektřina: Elektro - 230 V, Elektro - 400 V
- Voda: Voda - dálkový vodovod
- Telekomunikace: Internet
- Topení: Lokální - tuhá paliva, Ústřední - elektrické
- Odpad: Kanalizace
- Energetická náročnost budovy: B - Velmi úsporná
- Ukazatel energetické náročnosti budovy: 77 kWh/m²
- Energetický ukazatel podle vyhlášky: č. 264/2020 Sb.
Právní rádce
-
Detail
V tomto článku shrneme nejdůležitější věci, které byste si měli promyslet, pokud se chystáte prodat svou nemovitost a chcete, abyste s kupujícím nemusel následně řešit vzniklé problémy.
Jako prodávající nesete rizika spojená nejen se samotným obchodem, ale i se stavem nemovitosti v době prodeje a pro minimalizaci rizik, je dobré se zamyslet nad uvedenými oblastmi.
-
Detail
Realitní makléř má své nezastupitelné místo v realitním obchodu. Realitním makléřem nemyslím nevzdělané jelito, které absolvovalo dvoudenní školení a ví, jak se nahraje inzerát na inzertní portál.
Realitním makléřem, který se Vám skutečně vyplatí, je zkušený profesionál, který je schopen Vám dobře poradit jak prodat za co nejvíc a s nejmenším rizikem a hlavně je Vás schopen obratně provést celým realitním obchodem.