Prodej - chata/rekreační objekt, 199 m²
Vraný, Kladno
4 800 000 KčProdej - chata/rekreační objekt, 199 m²
Vraný, Kladno
Prodej chalupy 3+KK, 199 m², se zahradou, pozemek 566 m², městys Vraný
Hledáte ideální chalupu, kde budete mít dostatek prostoru a soukromí, v malebném prostředí s kompletní občanskou vybaveností? Pak vás jistě zaujme naše exkluzivní nabídka chalupy v centru nádherné obce Vraný. Možno využít i jako vícegenerační rodinný dům.
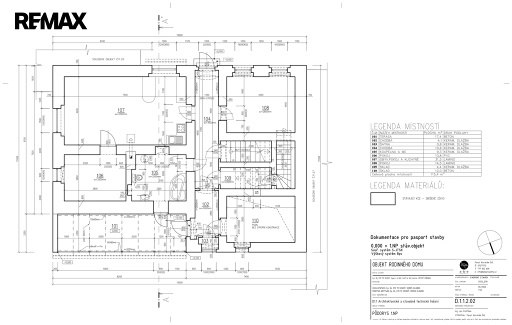
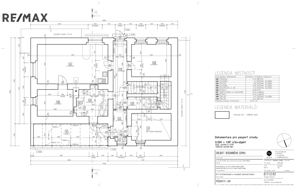
Budova o dispozici 3+KK je rozložena na třech podlažích a nabízí pohodlné bydlení či rekreaci pro rodinu i s možností rozšíření dispozice v 2.NP. V přízemí (1.NP) najdete prostorný obývací pokoj s krbovými kamny a kuchyňským koutem, ložnici, dětský pokoj, koupelnu s WC, prostor pro samostatné WC, komoru, technickou místnost (k rekonstrukci), chodbu s vysokým klenutým stropem, který dodává prostoru eleganci a terasu s výhledem do zahrady.
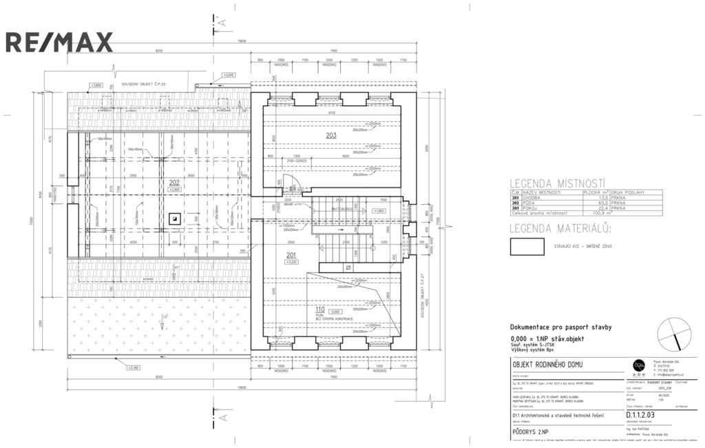
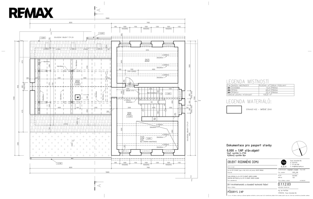
V patře (2.NP, 101 m2) je připravený prostor ke kompletní rekonstrukci, kde lze vybudovat další tři samostatné pokoje a chodbu, dle vašich představ a když budete chtít ještě více prostoru, tak využijte i podkroví.
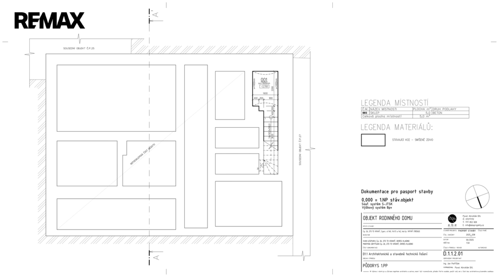
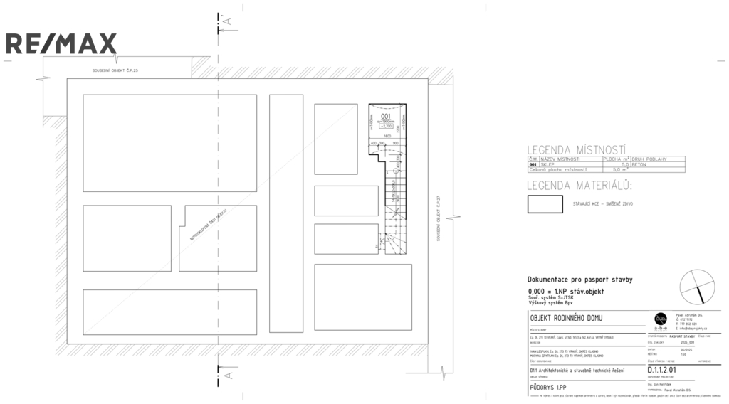
Sklep (1.PP, 5 m2).
Na pozemku o celkové ploše 566 m² vás čeká udržovaná, rovinatá zahrada s ovocnými stromy, ideální prostor pro relaxaci i zahradničení. Kotec, kůlna a udírna. Parkování můžete řešit pohodlně na vlastním pozemku nebo přímo před budovou na obecní komunikaci.
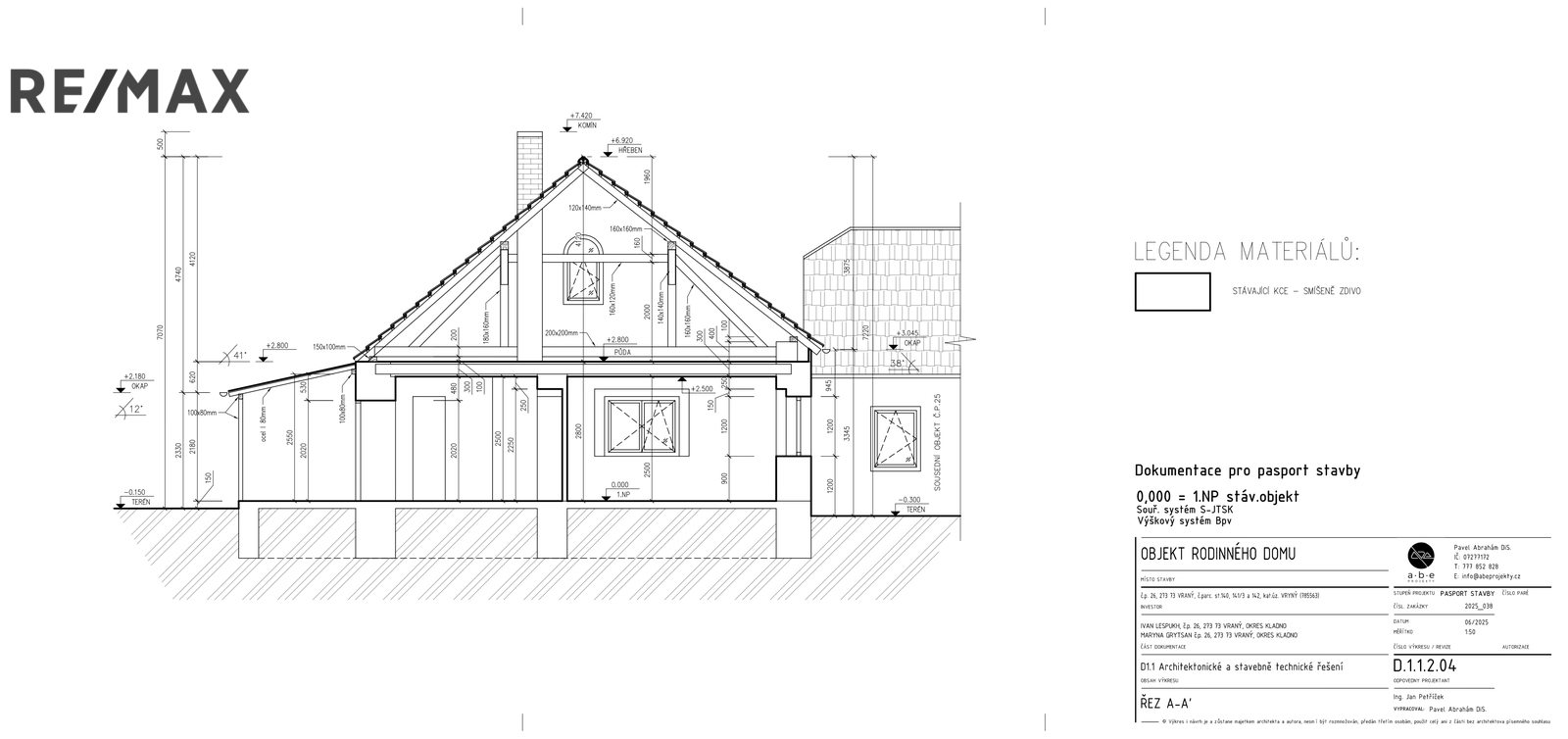
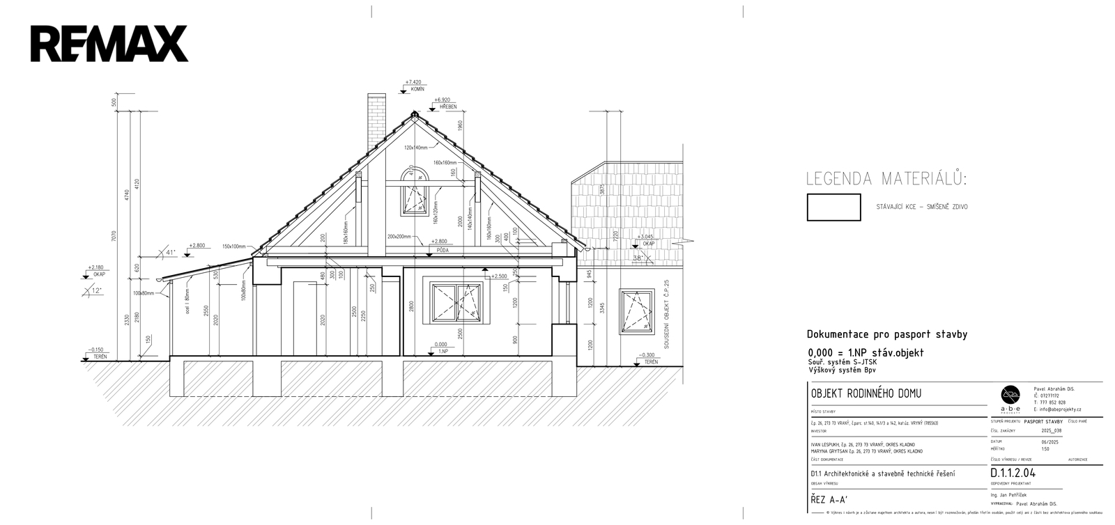
Budova pochází z 20. let minulého století, v letech 2015-2020 prošla vydařenou rekonstrukcí a je ihned obyvatelná. Oplocený pozemek je napojen na inženýrskou síť elektro NN (rozvody v mědi), veřejný vodovod, jímka (napojení na veřejnou kanalizaci v brzké době), plynovod a telekomunikační síť. Vytápění je řešeno krbovými kamny s výměníkem a měděnými rozvody do radiátorů, ale zároveň je připravena instalace plynového kotle s rozvody podlahového topení do chodby a pokoje. Teplou vodu obstarává 120 l bojler. Plastová okna a dřevěné masivní dveře zajišťují tepelnou i zvukovou izolaci. Podlahy jsou nové betonové s keramickou dlažbou, laminem. K dispozici je platný průkaz energetické náročnosti budovy (PENB B – velmi úsporná) a aktuální projektová dokumentace (pasport).
V obci Vraný, která byla v roce 2015 oceněna titulem Vesnice roku, máte veškerou občanskou vybavenost: obecní úřad, základní školu, školku, poštu, CzechPoint, Zasilkovnu Z-BOX, obchody s potravinami, restaurace, knihovnu, dětské hřiště a parky, rybník. Dopravní dostupnost je zajištěna pravidelnou PID a železnicí. V Praze jste vozem za cca 30 minut.
Rádi vám pomůžeme s financováním koupě. Rezervační poplatek ve výší 290.400 Kč (1. část kupní ceny).
Pro více informací a domluvení prohlídky nemovitosti na adrese Vraný č.p. 26 kontaktujte makléře, tel. 602 273 133.
Těšíme se na vás! Prodávající si vyhrazuje právo vybrat kupujícího na základě jím zvolených kritérií.
| Cena: | 4 800 000 Kč |
| Poznámka: | Včetně právního servisu a odměny RK. |
| Datum k nastěhování: | 10.08.2025 |
| Číslo zakázky: | REALITYMIX-420715 |
Podrobné informace
- Zastavěná plocha: 199 m²
- Užitná plocha: 199 m²
- Plocha parcely: 566 m²
- Druh objektu: smíšená
- Stav objektu: dobrý
- Počet podlaží objektu: 2
- Umístění objektu: centrum obce
- Doprava: vlak, dálnice, silnice, MHD, autobus
- Komunikace: asfaltová
- Elektřina: Elektro - 230 V, Elektro - 400 V
- Voda: Voda - dálkový vodovod
- Telekomunikace: Internet
- Plyn: Plynovod
- Energetická náročnost budovy: B - Velmi úsporná
- Energetický ukazatel podle vyhlášky: č. 264/2020 Sb.
Právní rádce
-
Detail
V tomto článku shrneme nejdůležitější věci, které byste si měli promyslet, pokud se chystáte prodat svou nemovitost a chcete, abyste s kupujícím nemusel následně řešit vzniklé problémy.
Jako prodávající nesete rizika spojená nejen se samotným obchodem, ale i se stavem nemovitosti v době prodeje a pro minimalizaci rizik, je dobré se zamyslet nad uvedenými oblastmi.
-
Detail
Realitní makléř má své nezastupitelné místo v realitním obchodu. Realitním makléřem nemyslím nevzdělané jelito, které absolvovalo dvoudenní školení a ví, jak se nahraje inzerát na inzertní portál.
Realitním makléřem, který se Vám skutečně vyplatí, je zkušený profesionál, který je schopen Vám dobře poradit jak prodat za co nejvíc a s nejmenším rizikem a hlavně je Vás schopen obratně provést celým realitním obchodem.
Mapa
Podobné nemovitosti
Prodej - chata/rekreační objekt, 42 m²
Horní Bezděkov, Kladno
4 500 000 Kč
Prodej - chata/rekreační objekt, 60 m²
U Plovárny, Kvíček, Kladno
4 400 000 Kč
Prodej - chata/rekreační objekt, 337 m²
Malé Kyšice, Kladno
4 199 000 Kč
Prodej - chata/rekreační objekt, 120 m²
Lacinova, Slaný, Kladno
4 700 000 Kč