Prodej bytu, 2+1, 58 m²
Na Hraničkách, Vyškov
4 490 000 KčProdej bytu, 2+1, 58 m²
Na Hraničkách, Vyškov
Prodej bytu 2+1, Na Hraničkách, Vyškov
Byt je v původním stavu po dílčích modernizacích. Bytové jádro je umakartové. Elektrorozvody, rozvody vody a odpadů v bytě jsou původní. Poslední modernizací v bytě jsou vinylové podlahy, které jsou položeny ve všech místnostech. Navíc je byt opatřen bezpečnostními vstupními dveřmi. Kuchyně je vybavena kuchyňskou linkou s elektrickou varnou deskou, elektrickou troubou a digestoří.
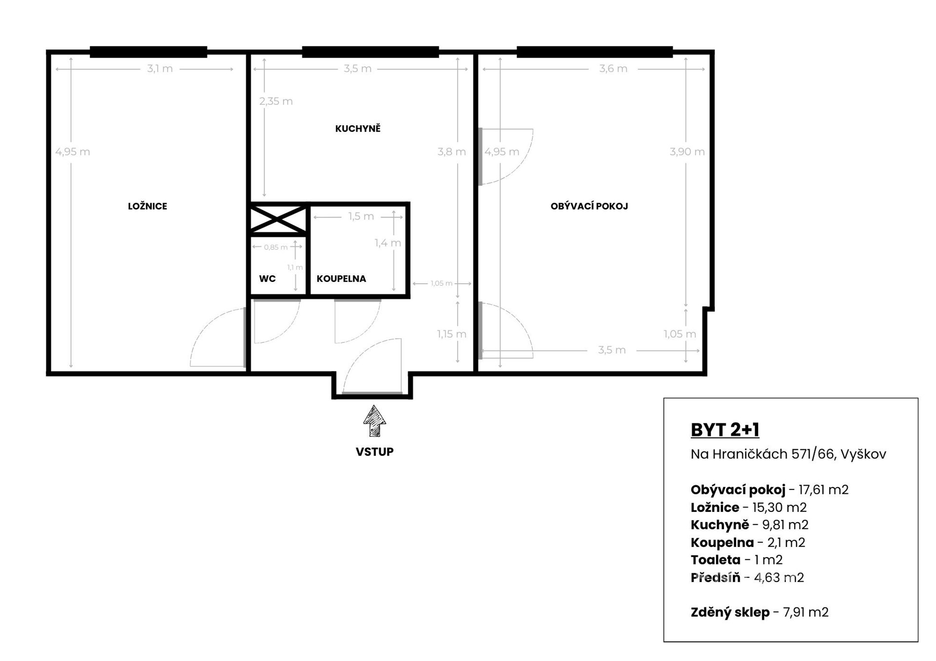
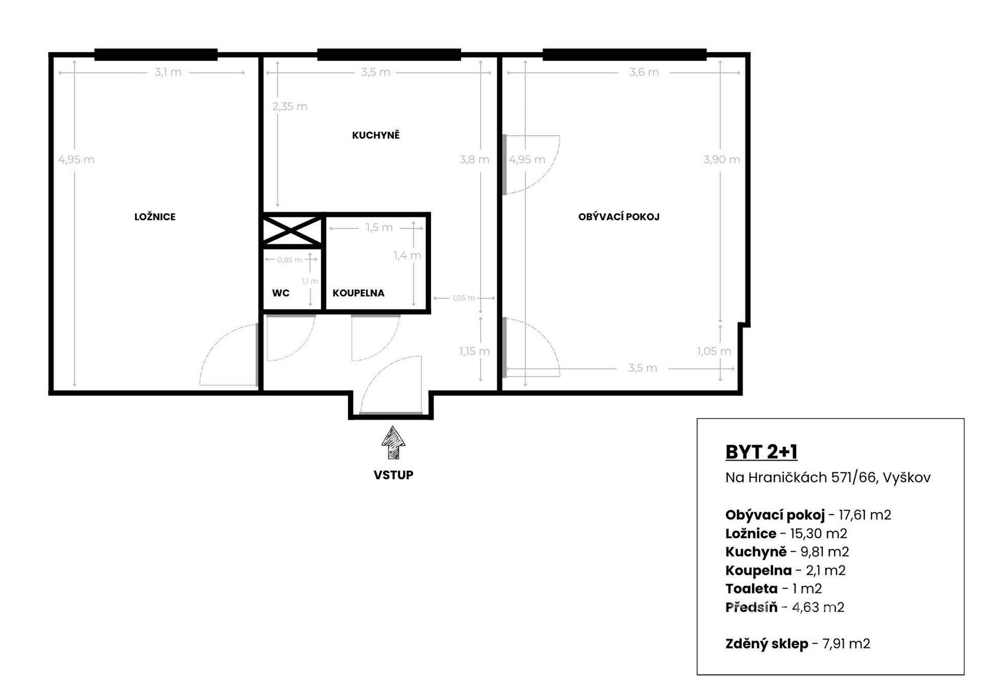
Dispozice bytu se skládá ze vstupní chodby, dvou pokojů, kuchyně, koupelny s vanou a oddělené toalety. Jednou z hlavních výhod bytu jsou bezesporu dva prostorné neprůchozí pokoje, díky kterým je efektivně využita celková plocha. Centrální bytové jádro s kuchyní pak nabízí možnost snadné úpravy dispozice při případné rekonstrukci. Díky orientaci na jihovýchod je byt zároveň dostatečně světlý.
Topení a ohřev vody je zajištěno centrálně dálkově. Dle aktuálního předpisu plateb činí platby spojené s bytem celkem 3.964 Kč měsíčně včetně fondu oprav. Zálohové platby se skládají z 850 Kč elektřina, 700 Kč teplo, 340 Kč teplá voda, 200 Kč studená voda, 1.329 Kč příspěvek do fondu oprav, 545 Kč ostatní náklady.
Byt, který dává smysl dnes a zároveň nabízí prostor pro vlastní vizi do budoucna – a právě v tom spočívá jeho největší hodnota. Ať už hledáte první bydlení, klidné místo pro život, nebo investici s potenciálem dalšího zhodnocení, tady můžete začít. Zavolejte mi a domluvte si prohlídku – byt je k dispozici ihned.
| Cena: | 4 490 000 Kč |
| Poznámka: | včetně provize RK |
| Datum k nastěhování: | 23.02.2026 |
| Dispozice/podlahová plocha: | 2+1/58 m² |
| Číslo zakázky: | REALITYMIX-18004DG |
Podrobné informace
- Dispozice bytu: 2+1
- Číslo podlaží v domě: 3
- Počet podlaží objektu: 3
- Celková podlahová plocha: 58 m²
- Druh objektu: cihlová
- Stav objektu: velmi dobrý
- Vlastnictví: osobní
- Sklep: 8 m²
- Elektřina: Elektro - 230 V
- Voda: Zdroj pro celý objekt, Voda - dálkový vodovod
- Energetická náročnost budovy: G - Mimořádně nehospodárná
Právní rádce
-
Detail
V tomto článku shrneme nejdůležitější věci, které byste si měli promyslet, pokud se chystáte prodat svou nemovitost a chcete, abyste s kupujícím nemusel následně řešit vzniklé problémy.
Jako prodávající nesete rizika spojená nejen se samotným obchodem, ale i se stavem nemovitosti v době prodeje a pro minimalizaci rizik, je dobré se zamyslet nad uvedenými oblastmi.
-
Detail
Realitní makléř má své nezastupitelné místo v realitním obchodu. Realitním makléřem nemyslím nevzdělané jelito, které absolvovalo dvoudenní školení a ví, jak se nahraje inzerát na inzertní portál.
Realitním makléřem, který se Vám skutečně vyplatí, je zkušený profesionál, který je schopen Vám dobře poradit jak prodat za co nejvíc a s nejmenším rizikem a hlavně je Vás schopen obratně provést celým realitním obchodem.