Prodej - chata/rekreační objekt, 146 m²
Branišov, Prachatice
5 350 000 KčProdej - chata/rekreační objekt, 146 m²
Branišov, Prachatice
Prodej chalupy 146 m² s pozemkem 371 m²
Ve výhradním zastoupení majitelů vám nabízíme k prodeji kompletně zrekonstruovanou chalupu na polosamotě v Branišově u Zdíkova (okr. Prachatice).
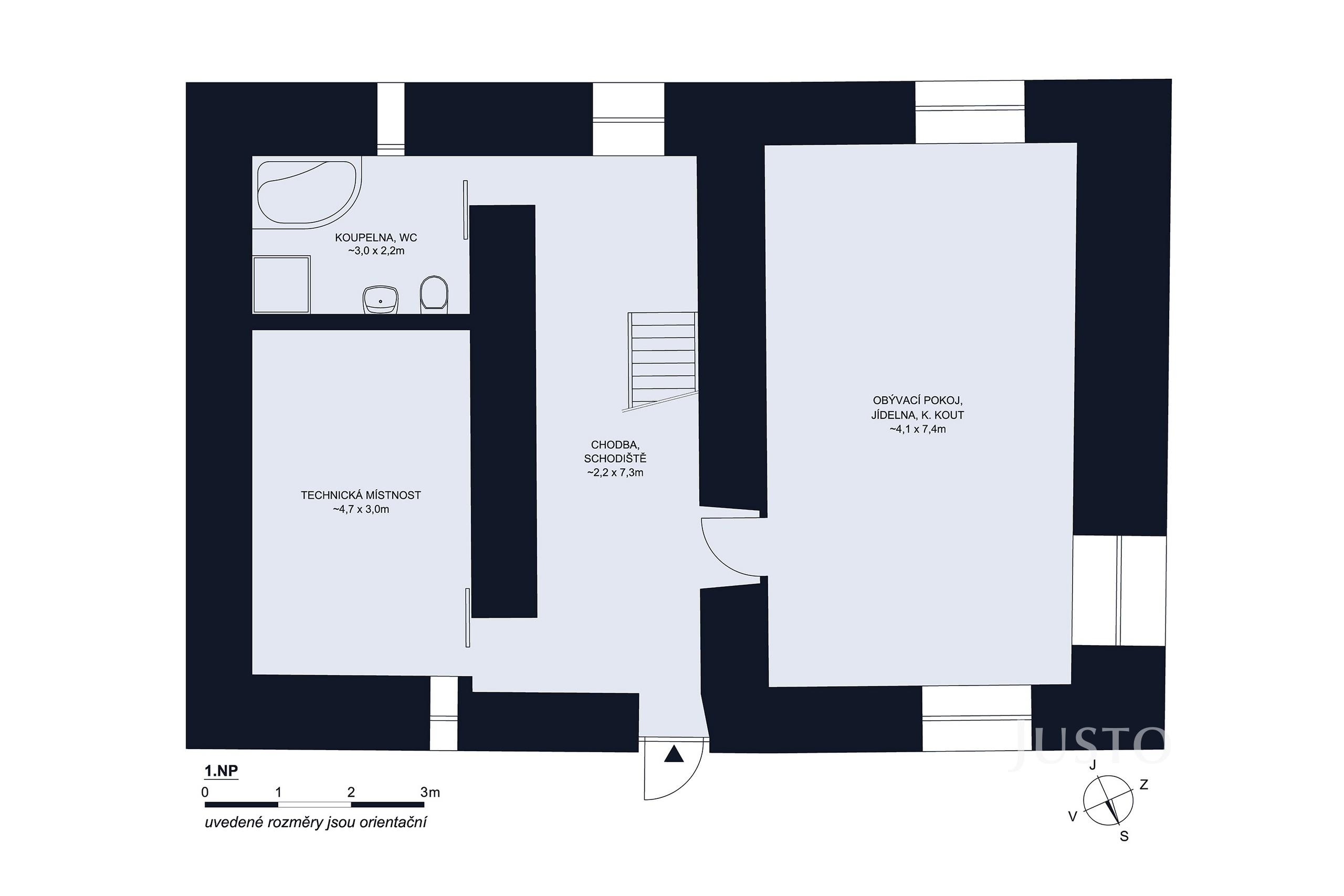
• celková užitná plocha ve dvou podlažích 146 m²
• zastavěná plocha a nádvoří 137 m²
• celková plocha pozemků 371 m²
• přízemí: velká technická místnost, koupelna, obývák/světnice
• podkroví: 3 samostatné neprůchozí pokoje, toaleta
• venku nedokončená pergola, která čeká, co s ní vymyslíte
V roce 2025 majitelé chalupu citlivě zrekonstruovali:
• podlahové vytápění, zateplení minerální vatou, okna s trojskly
• tepelné čerpadlo „vduch-voda“, 200l akumulační nádrž (možnost ovládání vytápění na dálku přes mobil)
• vyvážecí jímka, obecní vodovod s pitnou vodou, nová elektřina
• zateplená střecha, plechová krytina, trámové stropy atd.
Rodina, přátelé, anebo třeba nájemníci budou bydlet samostatně ve třech velkých podkrovních pokojích. Na patře je navíc ještě toaleta.
V přízemí využijete technickou místnost třeba pro lyže/lyžáky a kola.
Z obýváku uděláte to nejútulnější místo pro zimní zasněžené večery i teplé letní dny, kdy naplno využijete potenciál okolní přírody.
Chalupa stojí na polosamotě obce Branišov. V okolí jsou lesy a louky. V obci a blízkém okolí najdete základní občanskou vybavenost, několik restaurací, cukrárnu, supermarket, a zejména řadu turistických a sportovních atrakcí – například Klostermannovu rozhlednu, lyžařský areál Zadov nebo státní zámek Vimperk.
Pokud hledáte místo, kde si vaše rodina užije klidné bydlení s možností aktivního odpočinku v přírodě, anebo nemovitost vhodnou k rekreaci a „úniku z civilizace“, chalupa v Branišově vás zaujme.
Na koupi chalupy vám pomůžeme sjednat financování.
Napište nám skrze formulář u inzerátu. Dostanete odpověď s veškerými informacemi do 20 minut na e-mail, který uvedete. (Zkontrolujte si, prosím správnost zadaného e-mailu, a po odeslání také složky "Spam" a "Nevyžádaná pošta". Občas se tam e-mail může zatoulat.).
| Cena: | 5 350 000 Kč |
| Datum k nastěhování: | 01.06.2025 |
| Plocha: | 146 m² |
| Číslo zakázky: | REALITYMIX-J12524 |
Podrobné informace
- Celková plocha: 146 m²
- Zastavěná plocha: 137 m²
- Užitná plocha: 146 m²
- Plocha parcely: 371 m²
- Druh objektu: smíšená
- Stav objektu: po rekonstrukci
- Počet podlaží objektu: 2
- Umístění objektu: polosamota
- Doprava: silnice, autobus
- Komunikace: neupravená
- Elektřina: Elektro - 230 V, Elektro - 400 V
- Voda: Voda - dálkový vodovod
- Energetická náročnost budovy: D - Méně úsporná
- Ukazatel energetické náročnosti budovy: 114 kWh/m²
- Energetický ukazatel podle vyhlášky: č. 264/2020 Sb.
Právní rádce
-
Detail
V tomto článku shrneme nejdůležitější věci, které byste si měli promyslet, pokud se chystáte prodat svou nemovitost a chcete, abyste s kupujícím nemusel následně řešit vzniklé problémy.
Jako prodávající nesete rizika spojená nejen se samotným obchodem, ale i se stavem nemovitosti v době prodeje a pro minimalizaci rizik, je dobré se zamyslet nad uvedenými oblastmi.
-
Detail
Realitní makléř má své nezastupitelné místo v realitním obchodu. Realitním makléřem nemyslím nevzdělané jelito, které absolvovalo dvoudenní školení a ví, jak se nahraje inzerát na inzertní portál.
Realitním makléřem, který se Vám skutečně vyplatí, je zkušený profesionál, který je schopen Vám dobře poradit jak prodat za co nejvíc a s nejmenším rizikem a hlavně je Vás schopen obratně provést celým realitním obchodem.