Hospodářské noviny
Hledat Přihlásit seMůj účet Předplatné
Přihlásit seMůj účet Předplatné
  • Home
  • Byznys
  • Zprávy
  • Názory
  • Tech
  • Reality
  • Investice
  • Podcasty
  • Hry
  • PročNe
  • Archiv
  • Další
  • Jak nastartovat sever
  • Speciály HN
  • Víkend
  • Magazín Stavba
  • Knihy HN
  • Eventy
  • Green Deal
  • Inovátoři roku
  • Top ženy
  • Nej banka / Nej pojišťovna
  • Předplatné
  • Redakce
  • Inzerce
  • Kontakty
  • Newslettery
  • Ekonom
  • Logistika
  • Právní rádce
  • Hry
  • Economia
  • BeNative
  • Nastavení účtu
  • Moje předplatné
  • Odhlásit se

Reality

  • Reality
  • Vyhledávání nemovitostí
  • Top realitní fondy
  • Magazín Stavba
Prodej bytu, 3+1, 65 m²

Prodej bytu, 3+1, 65 m²

K. Světlé, Prštné, Zlín

4 990 000 Kč
  • RealityMIX
  • Byty
  • Prodej
  • Zlínský kraj
  • Zlín
0 z 5 (0 hodnocení)

Prodej bytu, 3+1, 65 m²

K. Světlé, Prštné, Zlín

4 990 000 Kč
C
Vyhovující
Výpis
Předchozí inzerát Další inzerát
1765468205-oslbatjhea-8
1765468204-jcfmtrjgla-1
1765468196-qmzyxjdzql-2-2

Prodej bytu 3+1 65 m²

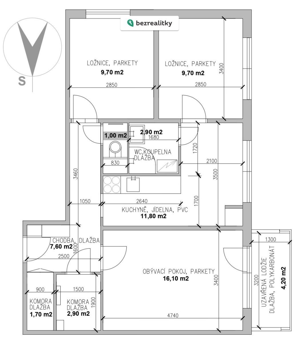
K prodeji nabízíme světlý byt 3+1 o podlahové ploše 65 m² s uzavřenou lodžií 4,2 m² a sklepem 2 m² v oblíbené zlínské lokalitě Podhoří. Byt se nachází ve 13. patře panelového domu s výtahem a díky jihozápadní orientaci nabízí dostatek denního světla a velmi příjemný výhled na Zlín a okolní krajinu.

Byt je v udržovaném stavu, s rekonstruovaným zděným jádrem (koupelna a samostatné WC jsou po rekonstrukci – obklady, dlažba, sprchový kout, umyvadlová skříňka), ostatní části bytu jsou vhodné k modernizaci podle vkusu nového majitele. Díky tomu je možné byt přetvořit přesně podle vlastních představ.

Mezi přednosti patří uzavíratelná lodžie o rozloze 4,2 m², která dodá prostoru svěžest a možnost relaxace a sklep o ploše 2 m², který je ideální pro uložení sezónních věcí či sportovních potřeb.

V obytných místnostech jsou původní dřevěné parkety, v předsíni a sanitě keramická dlažba, v kuchyni pvc. V bytě jsou plastová okna, topení je centrální dálkové. Vaření na plynu. Bytový dům je zateplený.

Parkování je zajištěno před domem, což výrazně usnadňuje každodenní pohodlí a mobilitu. Nemovitost se prodává v osobním vlastnictví. Energetický štítek budovy má hodnotu G (bude upřesněno).

Náklady na bydlení:

měsíční zálohy do SVJ činní cca 4.100 Kč (správa domu, fond oprav, teplo, teplá a studená voda, společná elektřina, služby správce)
zálohy na elektřinu a plyn jsou nyní nastaveny cca 800 Kč/měsíc
(byt je v současné době neobývaný)

Lokalita Podhoří patří mezi vyhledávané části Zlína díky kompletní občanské vybavenosti v docházkové vzdálenosti:

zastávky MHD
základní škola a mateřská škola
potraviny a další obchody a služby
lékaři, pošta, sportoviště
dětská hřiště a zeleň v okolí domu

Dobrá dostupnost centra Zlína i napojení na hlavní tahy dělá z bytu vhodnou volbu jak pro rodinné bydlení, tak jako investici k pronájmu.

Pokud Vás nabídka zaujala, kontaktujte mě prosím skrze zprávy či komunikační platformu. Tato nemovitost je určena výhradně přímým zájemcům o koupi. Na inzerát můžete také reagovat přímo na webu Bezrealitky: https://www.bezrealitky.cz/nemovitosti-byty-domy/972681-nabidka-prodej-bytu-k-svetle-zlin
Cena: 4 990 000 Kč  
Dispozice/podlahová plocha: 3+1/65 m²
Číslo zakázky: REALITYMIX-972681

Podrobné informace

  • Dispozice bytu: 3+1
  • Číslo podlaží v domě: 13
  • Počet podlaží objektu: 13
  • Celková podlahová plocha: 65 m²
  • Druh objektu: panelová
  • Stav objektu: dobrý
  • Vlastnictví: osobní
  • Lodžie: 4 m²
  • Sklep: 2 m²
  • Umístění objektu: sídliště
  • Energetická náročnost budovy: C - Vyhovující

Sdílej na:

Facebook     Twitter

Tisk nabídky (pdf)

  • (A4)
  • (A4)
  • (A4)
  • (A4)
  • (A5)

Poslat odkaz:

Právní rádce

Právní rádce
  • V tomto článku shrneme nejdůležitější věci, které byste si měli promyslet, pokud se chystáte prodat svou nemovitost a chcete, abyste s kupujícím nemusel následně řešit vzniklé problémy.

    Jako prodávající nesete rizika spojená nejen se samotným obchodem, ale i se stavem nemovitosti v době prodeje a pro minimalizaci rizik, je dobré se zamyslet nad uvedenými oblastmi.

    Detail
  • Realitní makléř má své nezastupitelné místo v realitním obchodu. Realitním makléřem nemyslím nevzdělané jelito, které absolvovalo dvoudenní školení a ví, jak se nahraje inzerát na inzertní portál.

    Realitním makléřem, který se Vám skutečně vyplatí, je zkušený profesionál, který je schopen Vám dobře poradit jak prodat za co nejvíc a s nejmenším rizikem a hlavně je Vás schopen obratně provést celým realitním obchodem.

    Detail
  • Detail
Chci vědět víc
Právní rádce

Prodáváte nemovitost a potřebujete zjistit její reálnou hodnotu?

Zjistit reálnou cenu

Vývoj průměrné ceny za m2 v lokalitě Zlín

Ceny uvedené v grafu, jsou průměrnými cenami ze sledované lokality a nezohledňují stav, stáří ani vybavení nemovitosti.
1Q 2022 66913
1Q 2022
Průměrná nabídková cena 66 913 Kč/m²

Aktuální nabídka: 76 769 Kč/m²
2Q 2022 75288
2Q 2022
Průměrná nabídková cena 75 288 Kč/m²

Aktuální nabídka: 76 769 Kč/m²
3Q 2022 75995
3Q 2022
Průměrná nabídková cena 75 995 Kč/m²

Aktuální nabídka: 76 769 Kč/m²
4Q 2022 74346
4Q 2022
Průměrná nabídková cena 74 346 Kč/m²

Aktuální nabídka: 76 769 Kč/m²
1Q 2023 70943
1Q 2023
Průměrná nabídková cena 70 943 Kč/m²

Aktuální nabídka: 76 769 Kč/m²
2Q 2023 70488
2Q 2023
Průměrná nabídková cena 70 488 Kč/m²

Aktuální nabídka: 76 769 Kč/m²
3Q 2023 72968
3Q 2023
Průměrná nabídková cena 72 968 Kč/m²

Aktuální nabídka: 76 769 Kč/m²
4Q 2023 74706
4Q 2023
Průměrná nabídková cena 74 706 Kč/m²

Aktuální nabídka: 76 769 Kč/m²
1Q 2024 76736
1Q 2024
Průměrná nabídková cena 76 736 Kč/m²

Aktuální nabídka: 76 769 Kč/m²
2Q 2024 74245
2Q 2024
Průměrná nabídková cena 74 245 Kč/m²

Aktuální nabídka: 76 769 Kč/m²
3Q 2024 71721
3Q 2024
Průměrná nabídková cena 71 721 Kč/m²

Aktuální nabídka: 76 769 Kč/m²
4Q 2024 66688
4Q 2024
Průměrná nabídková cena 66 688 Kč/m²

Aktuální nabídka: 76 769 Kč/m²
1Q 2025 70899
1Q 2025
Průměrná nabídková cena 70 899 Kč/m²

Aktuální nabídka: 76 769 Kč/m²
2Q 2025 78385
2Q 2025
Průměrná nabídková cena 78 385 Kč/m²

Aktuální nabídka: 76 769 Kč/m²
3Q 2025 79131
3Q 2025
Průměrná nabídková cena 79 131 Kč/m²

Aktuální nabídka: 76 769 Kč/m²
4Q 2025 79144
4Q 2025
Průměrná nabídková cena 79 144 Kč/m²

Aktuální nabídka: 76 769 Kč/m²

Prodáváte nemovitost a potřebujete zjistit její reálnou hodnotu?

Zjistit reálnou cenu

Mapa

* Umístění na mapě je na základě GPS informací dodaných realitní kanceláří.
* Pozice na mapě je pouze orientační.

Souhlas se zpracováním osobních údajů

Uživatel serveru Reality.hn.cz (dále jen „Server“) dostupného na internetové adrese (URL) https://realitymix.hn.cz, který provozuje společnost DALTEN media s.r.o., se sídlem Na Harfě 916/9a, Praha 9, 190 00, IČO: 271 35 306 (dále jen „Správce“) jako provozovateli tohoto Serveru uděluje svůj výslovný souhlas v souladu s ustanovením § 5 zákona č. 101/2000 Sb. O ochraně osobních údajů a o změně některých zákonů, v platném znění (dále jen „zákon o ochraně osobních údajů“), se zpracováním uživatelem poskytnutých osobních údajů a dalších dat.

Uživatel poskytuje Správci osobní údaje v rozsahu: jméno, příjmení, e-mailová adresa, telefonický kontakt a další data, a to z důvodu projeveného zájmu o nemovitost, kde prostřednictvím služby Serveru Správce osloví Uživatel inzerenta uvedeného v detailu nemovitosti - Bezrealitky s.r.o. (IČ 08063168) se zájmem o jeho služby.

Uživatel tyto osobní údaje poskytuje dobrovolně a bere na vědomí, že součástí služeb Správce, které Správce Uživateli poskytuje, je vyhledání všech Uživateli vyhovujících (dle parametrů - cena, typ nemovitosti, lokalita atd.) nemovitostí. Správce za tímto účelem provozuje aplikace Hlídací pes a newsletter. Tyto služby je možné z každého zaslaného emailu odhlásit. Souhlas se zpracováním osobních údajů Uživatel poskytuje Správci na dobu neurčitou s tím, že svůj udělený souhlas může Uživatel kdykoliv na drese správce info@realitymix.cz odvolat. Správce garantuje Uživateli i další práva uvedené v ustanovení §11 a §21 zákoba č. 101/200 Sb. Ve znění pozdějších předpisů. Více informací o zpracování údajů získáte zde (realitymix.cz/zasady-ochrany-osobnich-udaju)

Podobné nemovitosti

Prodej bytu, 3+1, 70 m² obrázek

Prodej bytu, 3+1, 70 m²

Na Honech II, Zlín

5 400 000 Kč
Prodej bytu, 2+kk, 46 m² obrázek

Prodej bytu, 2+kk, 46 m²

Všemina, Zlín

3 490 000 Kč
Prodej bytu, 3+kk, 72 m² obrázek

Prodej bytu, 3+kk, 72 m²

Všemina, Zlín

4 990 000 Kč
Prodej bytu, 3+kk, 70 m² obrázek

Prodej bytu, 3+kk, 70 m²

Všemina, Zlín

4 990 000 Kč

Napsat zprávu prodejci

Prodej bytu, 3+1, 65 m²

Prodej bytu, 3+1, 65 m²

K. Světlé, Prštné, Zlín

4 990 000 Kč

Hospodářské noviny

© 1996-2025 Economia, a.s.

Hospodářské noviny (print)   ISSN 0862-9587
Hospodářské noviny (online) ISSN 2787-950X

Certifikováno
jti
Sledujte nás
Stáhněte si aplikaci HN
  • Kontakty
  • Tiráž redakce HN
  • Economia
  • Kariéra v HN
  • Ceník inzerce
  • Ochrana osobních údajů
  • Prohlášení o cookies
  • Nastavení soukromí
  • Všeobecné smluvní podmínky
  • Koupit / darovat předplatné
  • Eventy
  • Newslettery
  • RSS kanály
Autorská práva vykonává vydavatel. Bez písemného svolení vydavatele je zakázáno jakékoli užití částí nebo celku díla, zejména rozmnožování a šíření jakýmkoli způsobem, mechanickým nebo elektronickým, v českém nebo jiném jazyce. Bez souhlasu vydavatele je zakázáno též rozmnožování obsahu pro účely automatizované analýzy textů nebo dat podle ustanovení § 39c autorského zákona.