Prodej - jiné
Albrechtice, Ústí nad Orlicí
Cena na vyžádáníProdej - jiné
Albrechtice, Ústí nad Orlicí
Prodej zavedené komerční nemovitosti, Albrechtice u Lanškrouna
Základní informace o nemovitosti
Pozemek: 3.942 m² (možnost další výstavby)
Zastavěná plocha hlavní budovy: 390 m²
Užitná plocha: 930 m²
Budova má 3 nadzemní podlaží
Součástí jsou také nebytové prostory a samostatná garsoniéra (2+1, cca 40 m²)
Nemovitost prošla rekonstrukcí
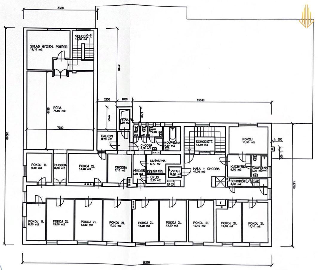
Dispozice a provoz
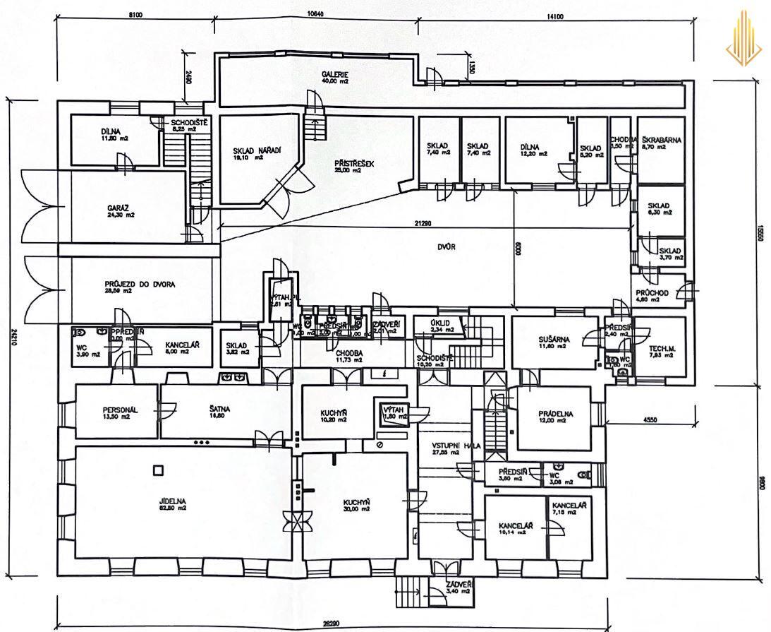
1. nadzemní podlaží:
jídelna
kuchyně
technické zázemí
kanceláře a šatny
2. a 3. podlaží:
pokoje klientů
umývárny
společenské místnosti
Objekt je plně vybaven, včetně pokojů se speciálními zdravotnickými lůžky a zázemím pro péči.
Technické parametry
Vytápění: infrapanely
Voda: 2 vrtané studny s čerpadly
Plyn: není zaveden
Vnitřní výtah pro komfort klientů
Bezbariérový přístup + venkovní rampa až do nejvyššího patra
Další zázemí
Součástí objektu je garsoniéra (2+1, cca 40 m²) vhodná pro:
majitele
správce objektu
personál
Vytápění zde zajišťuje elektrokotel, v obývacím pokoji jsou navíc kamna pro příjemnou atmosféru.
Investiční potenciál
Zavedený provoz s možností okamžitého převzetí včetně personálu
Stabilní a rostoucí segment (sociální služby)
Možnost dalšího rozšíření díky velikosti pozemku
Nemovitost však není vázána pouze na provoz domova seniorů:
lze ji přestavět na bytové jednotky,
případně po větších úpravách i na apartmánový dům či ubytovací zařízení.
Lokalita
6 km od Lanškrouna
31 km od Žamberka
70 km od Olomouce
Klidná lokalita s dobrou dostupností, ideální pro sociální služby i rezidenční využití.
| Cena: | Cena na vyžádání |
| Poznámka: | Informace v RK |
| Číslo zakázky: | REALITYMIX-N00001 |
Podrobné informace
- Druh objektu: cihlová
- Stav objektu: po rekonstrukci
- Druh prostor: Jiné
- Umístění objektu: samota
- Doprava: silnice, autobus
- Komunikace: asfaltová
- Elektřina: Elektro - 230 V
- Voda: Zdroj pro celý objekt
- Telekomunikace: Telefon, Internet
- Topení: Lokální - elektrické
- Odpad: ČOV pro celý objekt
- Ostatní rozvody: Satelit, Kabelová televize
- Energetická náročnost budovy: G - Mimořádně nehospodárná
- Energetický ukazatel podle vyhlášky: č. 264/2020 Sb.
Právní rádce
-
Detail
V tomto článku shrneme nejdůležitější věci, které byste si měli promyslet, pokud se chystáte prodat svou nemovitost a chcete, abyste s kupujícím nemusel následně řešit vzniklé problémy.
Jako prodávající nesete rizika spojená nejen se samotným obchodem, ale i se stavem nemovitosti v době prodeje a pro minimalizaci rizik, je dobré se zamyslet nad uvedenými oblastmi.
-
Detail
Realitní makléř má své nezastupitelné místo v realitním obchodu. Realitním makléřem nemyslím nevzdělané jelito, které absolvovalo dvoudenní školení a ví, jak se nahraje inzerát na inzertní portál.
Realitním makléřem, který se Vám skutečně vyplatí, je zkušený profesionál, který je schopen Vám dobře poradit jak prodat za co nejvíc a s nejmenším rizikem a hlavně je Vás schopen obratně provést celým realitním obchodem.