Prodej - dům/vila, 117 m²
Blešno, Hradec Králové
10 990 000 KčProdej - dům/vila, 117 m²
Blešno, Hradec Králové
Prodej rodinného domu 117 m² s pozemkem 1389 m²
Dřevostavba byla realizována s důrazem na kvalitu zpracování, použité materiály a nadčasový design exteriéru. Nemovitost se nachází ve vyhledávané oblasti v blízkosti řeky Orlice v obci Blešno sousedící s městem Hradec Králové.
✅ Klíčové informace k nemovitosti:
- Dispozice 4+kk s velmi praktickým půdorysem
- Velmi dobrý stav nemovitosti
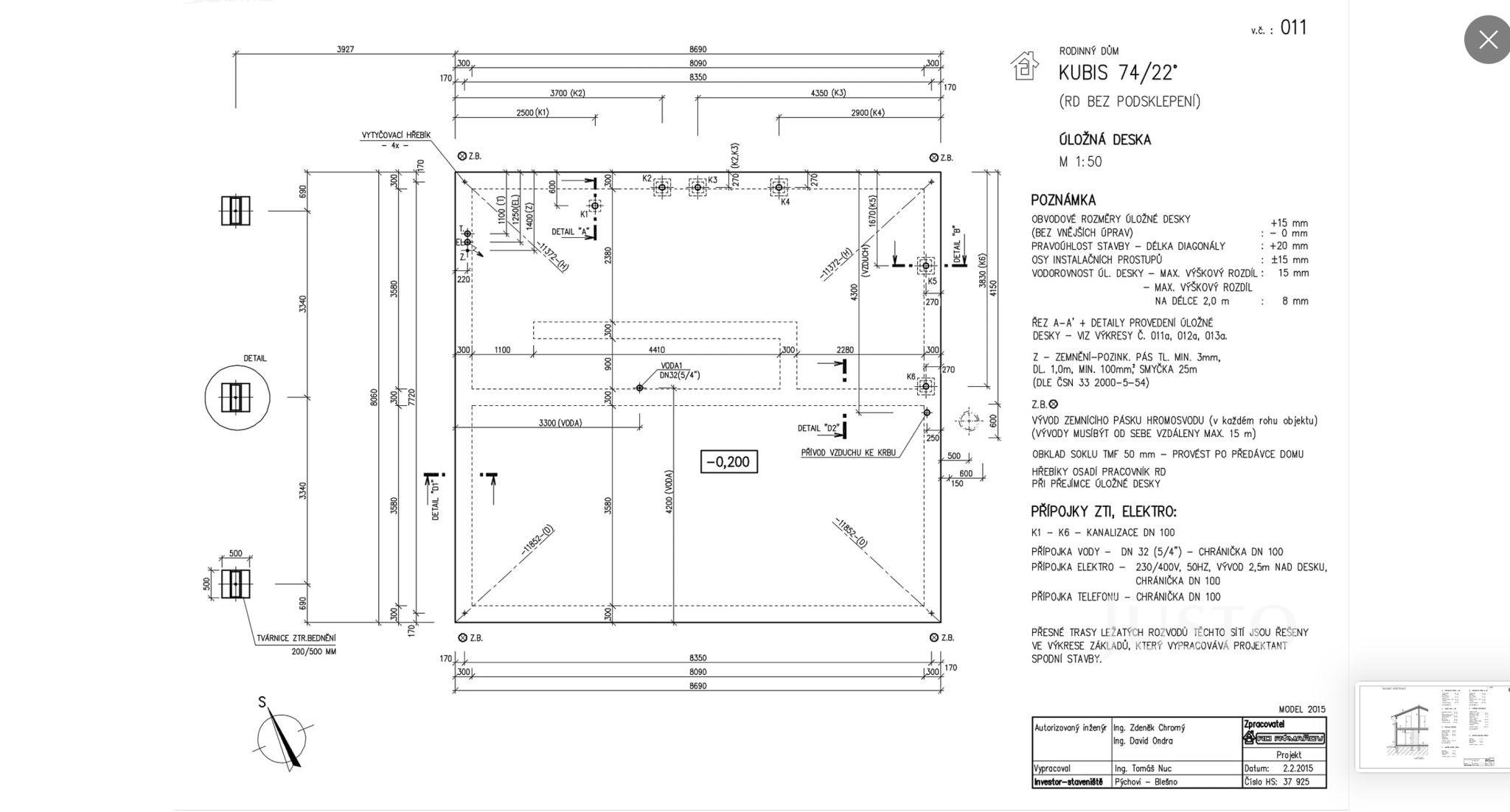
- Dřevostavba od RD Rýmařov (projekt Kubis) z roku 2019
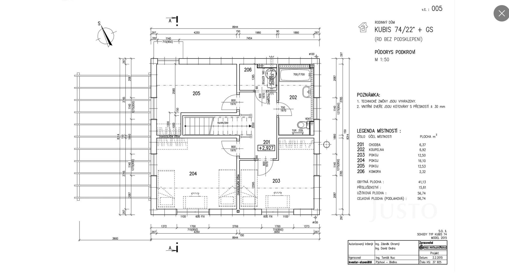
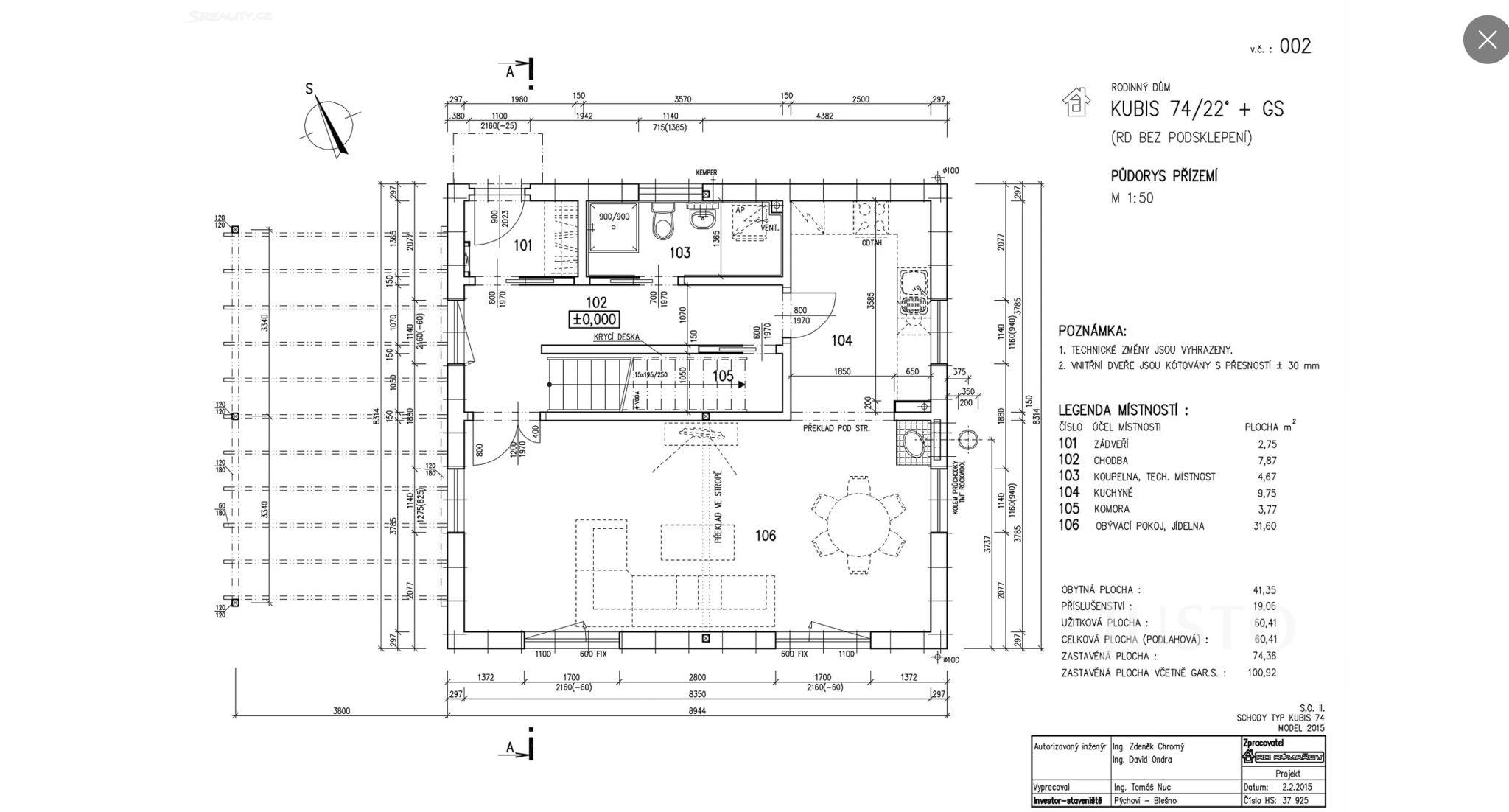
- Celková podlahová plocha domu 117 m²
- Plocha přízemí 60,4 m²
- Plocha prvního patra 56,7 m²
- Celková plocha pozemku 1 389 m²
- Vzrostlá a udržovaná zahrada
- PENB A dle předchozí vyhlášky č. 78/2013 Sb., PENB dle aktuální vyhlášky se zajišťuje
- Pergola, kryté parkovací stání, zahradní domek
- Způsob vytápění elektrokotel a prostřednictvím kamen na pevná paliva
- Klimatizace
- Všechna okna jsou opatřena předokenními roletami
- Dům je připraven k okamžitému nastěhování bez nutnosti dalších investic
✅ Klíčové informace k lokalitě:
- Vynikající občanská vybavenost sousedícího města Hradec Králové
- Autobusová zastávka Podhůrská je vzdálena 350 m od budovy
- Přímá návaznost autobusem na Hradec Králové
- V obci je vlaková zastávka
- Ke kvalitě bydlení přispívá i lesů které jsou ideální k relaxaci i aktivnímu odpočinku
✅ Důležité informace k prodeji:
- Zájemce nehradí provizi RK!
- Možnost zprostředkování atraktivního financování
- K nemovitosti je kompletní technická dokumentace
- Majitelé si vyhrazují právo výběru nejvýhodnější nabídky v případě více zájemců
Pokud Vás tato nemovitost zaujala, neváhejte mě kontaktovat, rád Vám tento příjemný a atraktivní dům osobně představím.
| Cena: | 10 990 000 Kč |
| Datum k nastěhování: | 01.06.2026 |
| Číslo zakázky: | REALITYMIX-J12499 |
Podrobné informace
- Poloha objektu: samostatný
- Druh objektu: dřevěná
- Stav objektu: velmi dobrý
- Počet podlaží objektu: 2
- Typ domu: patrový
- Plocha parcely: 1389 m²
- Užitná plocha: 117 m²
- Umístění objektu: klidná část obce
- Doprava: vlak, silnice, autobus
- Voda: Voda - dálkový vodovod
- Topení: Lokální - tuhá paliva, Ústřední - elektrické
- Odpad: Kanalizace
- Energetická náročnost budovy: A - Mimořádně úsporná
Právní rádce
-
Detail
V tomto článku shrneme nejdůležitější věci, které byste si měli promyslet, pokud se chystáte prodat svou nemovitost a chcete, abyste s kupujícím nemusel následně řešit vzniklé problémy.
Jako prodávající nesete rizika spojená nejen se samotným obchodem, ale i se stavem nemovitosti v době prodeje a pro minimalizaci rizik, je dobré se zamyslet nad uvedenými oblastmi.
-
Detail
Realitní makléř má své nezastupitelné místo v realitním obchodu. Realitním makléřem nemyslím nevzdělané jelito, které absolvovalo dvoudenní školení a ví, jak se nahraje inzerát na inzertní portál.
Realitním makléřem, který se Vám skutečně vyplatí, je zkušený profesionál, který je schopen Vám dobře poradit jak prodat za co nejvíc a s nejmenším rizikem a hlavně je Vás schopen obratně provést celým realitním obchodem.
Mapa
Podobné nemovitosti
Prodej - dům/vila, 427 m²
Polánky nad Dědinou, Třebechovice pod Orebem, Hradec Králové
11 990 000 Kč
Prodej - dům/vila, 500 m²
Třída B. Smetany, Nový Bydžov, Hradec Králové
9 980 000 Kč
Prodej - dům/vila, 145 m²
Převýšov, Hradec Králové
8 499 000 Kč
Prodej - dům/vila, 115 m²
Trávní, Slezské Předměstí, Hradec Králové
10 390 000 Kč