Prodej - dům/vila, 395 m²
Přerovská, Bochoř, Přerov
7 990 000 KčProdej - dům/vila, 395 m²
Přerovská, Bochoř, Přerov
Prodej rodinného domu
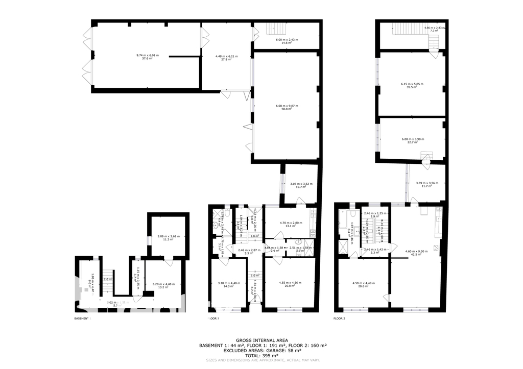
Nemovitost disponuje dvěma samostatnými bytovými jednotkami o dispozici 2+1(52m2) a 3+kk (105,9m2) a také nebytovým prostorem 1+kk (21,8m2), který je vhodný například pro menší kancelář, kosmetické nebo masážní studio, případně jako provozovna služeb. Tento prostor tak může generovat stabilní vedlejší příjem. Nebytový prostor nabízí také možnost změny užívání na bytovou jednotku. Jednotlivé byty jsou po rekonstrukci a bez nutných investic.
Součástí domu je prostorná garáž, která pohodlně pojme 4 automobily. Rodinný dům je navíc kompletně podsklepen, což poskytuje další úložný prostor. Dům nabízí také možnost rozšíření – součástí prodeje je také návrh projektové dokumentace na vybudování dalších dvou malometrážních bytových jednotek, což podstatně navyšuje investiční hodnotu celé nemovitosti. (projektová dokumentace je součástí ceny nemovitosti)
Významnou předností je strategická poloha. Ve fázi dokončení je nový úsek dálnice D1 (otevření 19.12. 2025), přičemž nejbližší nájezd od domu na dálnici je vzdálený přibližně 1,5 km. Díky tomu bude zajištěna rychlá a pohodlná dostupnost do Ostravy, Brna, Olomouce, Kroměříže i Prahy – velký benefit jak pro bydlení, tak budoucí podnikání.
Každá bytová jednotka má vlastní měřicí zařízení pro pohodlný a transparentní odečet energií. Veškerá elektroinstalace je v mědi, rozvody vody v plastu a odpadní vody jsou svedeny do kanalizace.
Nemovitost představuje skvělou příležitost s vysokým potenciálem růstu hodnoty. Pro více informací kontaktujte makléře.
| Cena: | 7 990 000 Kč |
| Číslo zakázky: | REALITYMIX-1743 |
Podrobné informace
- Poloha objektu: řadový
- Druh objektu: smíšená
- Stav objektu: po rekonstrukci
- Počet podlaží objektu: 2
- Typ domu: přízemní
- Zastavěná plocha: 218 m²
- Plocha parcely: 263 m²
- Užitná plocha: 395 m²
- Sklep: 41 m²
- Komunikace: asfaltová
- Voda: Voda - dálkový vodovod
- Plyn: Individuální
- Odpad: Kanalizace, ČOV pro celý objekt
- Energetická náročnost budovy: G - Mimořádně nehospodárná
- Energetický ukazatel podle vyhlášky: č. 264/2020 Sb.
Právní rádce
-
Detail
V tomto článku shrneme nejdůležitější věci, které byste si měli promyslet, pokud se chystáte prodat svou nemovitost a chcete, abyste s kupujícím nemusel následně řešit vzniklé problémy.
Jako prodávající nesete rizika spojená nejen se samotným obchodem, ale i se stavem nemovitosti v době prodeje a pro minimalizaci rizik, je dobré se zamyslet nad uvedenými oblastmi.
-
Detail
Realitní makléř má své nezastupitelné místo v realitním obchodu. Realitním makléřem nemyslím nevzdělané jelito, které absolvovalo dvoudenní školení a ví, jak se nahraje inzerát na inzertní portál.
Realitním makléřem, který se Vám skutečně vyplatí, je zkušený profesionál, který je schopen Vám dobře poradit jak prodat za co nejvíc a s nejmenším rizikem a hlavně je Vás schopen obratně provést celým realitním obchodem.
Mapa
Podobné nemovitosti
Prodej - dům/vila, 94 m²
Na Výsluní, Lipník nad Bečvou I-Město, Přerov
6 486 000 Kč
Prodej - dům/vila, 243 m²
Čsl. legií, Kojetín I-Město, Přerov
8 050 000 Kč
Prodej - dům/vila, 92 m²
Svobody, Týn nad Bečvou, Přerov
8 214 000 Kč
Prodej - dům/vila, 350 m²
Sumínova, Přerov I-Město, Přerov
7 955 000 Kč