Prodej - dům/vila, 104 m²
Borkovany, Břeclav
3 715 000 KčProdej - dům/vila, 104 m²
Borkovany, Břeclav
Prodej rodinného domu s velkým potenciálem k rekonstrukci – Borkovany, okr. Břeclav
Základní informace o nemovitosti:
• Celková plocha pozemku: 852 m²
• Zastavěná plocha a nádvoří: 353 m²
• Podlahová plocha domu: 171 m²
• Užitná plocha obytné části: 104 m²
• Zahrada (do mírného svahu): 332 m²
Dispozice domu:
Rodinný dům má převážně přízemní dispozici s rozsáhlým technickým zázemím a přístavky. Je vhodný pro rekonstrukci dle vlastních představ – ideální jak pro trvalé bydlení, bydlení spojené s podnikáním, tak pro rekreační účely.
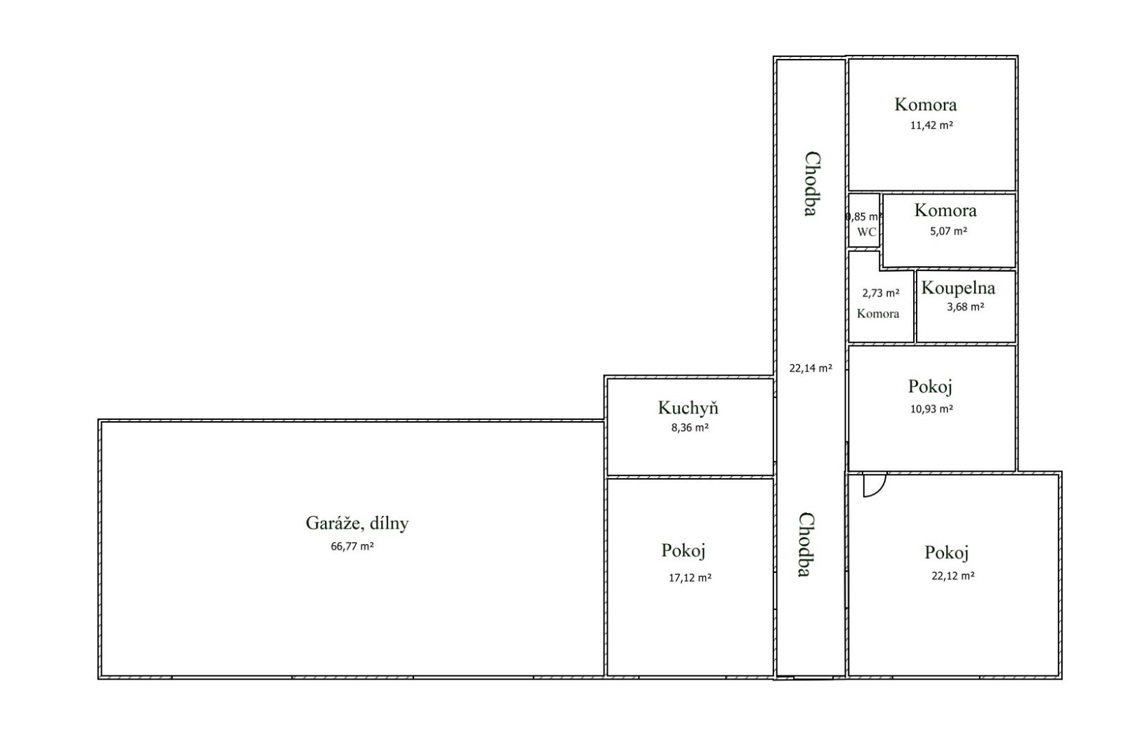
Vnitřní prostory:
• Chodba: 22,14 m²
• Pokoj 1: 17,20 m²
• Pokoj 2: 22,12 m²
• Kuchyně: 8,36 m²
• Jídelna: 10,93 m²
• Komora: 2,73 m²
• Koupelna: 3,68 m²
• WC: 0,85 m²
• Druhá komora/sklad: 5,07 m²
• Letní komora: 11,42 m²
Vedlejší stavby a hospodářské části:
• Garáže a dílny: 66,77 m²
• Chlévy, sýpka a další technické prostory – vhodné pro přestavbu na ateliér, sklad, dílnu nebo hobby prostor.
Exteriér a zahrada:
Zahrada o ploše 332 m² navazuje na prostorný dvůr, je ve svahu nabízí možnost terasového uspořádání nebo menšího sadu, vinice či okrasné zahrady. Pozemek je oplocený a poskytuje dostatek soukromí.
Lokalita – Borkovany:
Obec Borkovany leží v mírně zvlněné krajině Jižní Moravy, cca 15 minut autem od Hustopečí a nájezdu na dálnici D2 (Brno – Břeclav). Je zde základní občanská vybavenost – obchod, školka, škola, restaurace, autobusová zastávka, knihovna a kulturní dům. V obci a okolí panuje klidná atmosféra s přírodními scenériemi a vinicemi, ideálními pro pěší výlety a cykloturistiku.
Shrnutí:
• Rodinný dům s technickým zázemím a hospodářskou částí
• Velká zahrada, soukromí, potenciál pro přestavbu
• Výborná lokalita pro klidné bydlení nebo chalupaření
• Možnost rozdělení prostor i pro podnikání (dílna, sklad)
Pro více informací nebo domluvu prohlídky mě neváhejte kontaktovat.
| Cena: | 3 715 000 Kč |
| Číslo zakázky: | REALITYMIX-00037 |
Podrobné informace
- Poloha objektu: řadový
- Druh objektu: smíšená
- Stav objektu: před rekonstrukcí
- Počet podlaží objektu: 1
- Typ domu: přízemní
- Zastavěná plocha: 353 m²
- Plocha parcely: 852 m²
- Zahrada: 332 m²
- Užitná plocha: 104 m²
- Umístění objektu: centrum obce
- Komunikace: asfaltová
- Elektřina: Elektro - 230 V, Elektro - 400 V
- Voda: Voda - dálkový vodovod
- Topení: Lokální - tuhá paliva
- Odpad: Kanalizace
- Energetická náročnost budovy: G - Mimořádně nehospodárná
- Energetický ukazatel podle vyhlášky: č. 264/2020 Sb.
Právní rádce
-
Detail
V tomto článku shrneme nejdůležitější věci, které byste si měli promyslet, pokud se chystáte prodat svou nemovitost a chcete, abyste s kupujícím nemusel následně řešit vzniklé problémy.
Jako prodávající nesete rizika spojená nejen se samotným obchodem, ale i se stavem nemovitosti v době prodeje a pro minimalizaci rizik, je dobré se zamyslet nad uvedenými oblastmi.
-
Detail
Realitní makléř má své nezastupitelné místo v realitním obchodu. Realitním makléřem nemyslím nevzdělané jelito, které absolvovalo dvoudenní školení a ví, jak se nahraje inzerát na inzertní portál.
Realitním makléřem, který se Vám skutečně vyplatí, je zkušený profesionál, který je schopen Vám dobře poradit jak prodat za co nejvíc a s nejmenším rizikem a hlavně je Vás schopen obratně provést celým realitním obchodem.