Prodej - dům/vila, 140 m²
Boleslavská, Stará Boleslav, Praha-východ
9 490 000 KčProdej - dům/vila, 140 m²
Boleslavská, Stará Boleslav, Praha-východ
Prodej rodinného domu 130 m², zahrádka, komerční prostor
Dům o dispozici 2+1 je ve výborném technickém stavu a nevyžaduje žádné úpravy.
Pro více informací se podívejte na webové stránky uvedené na fotografiích a videu.
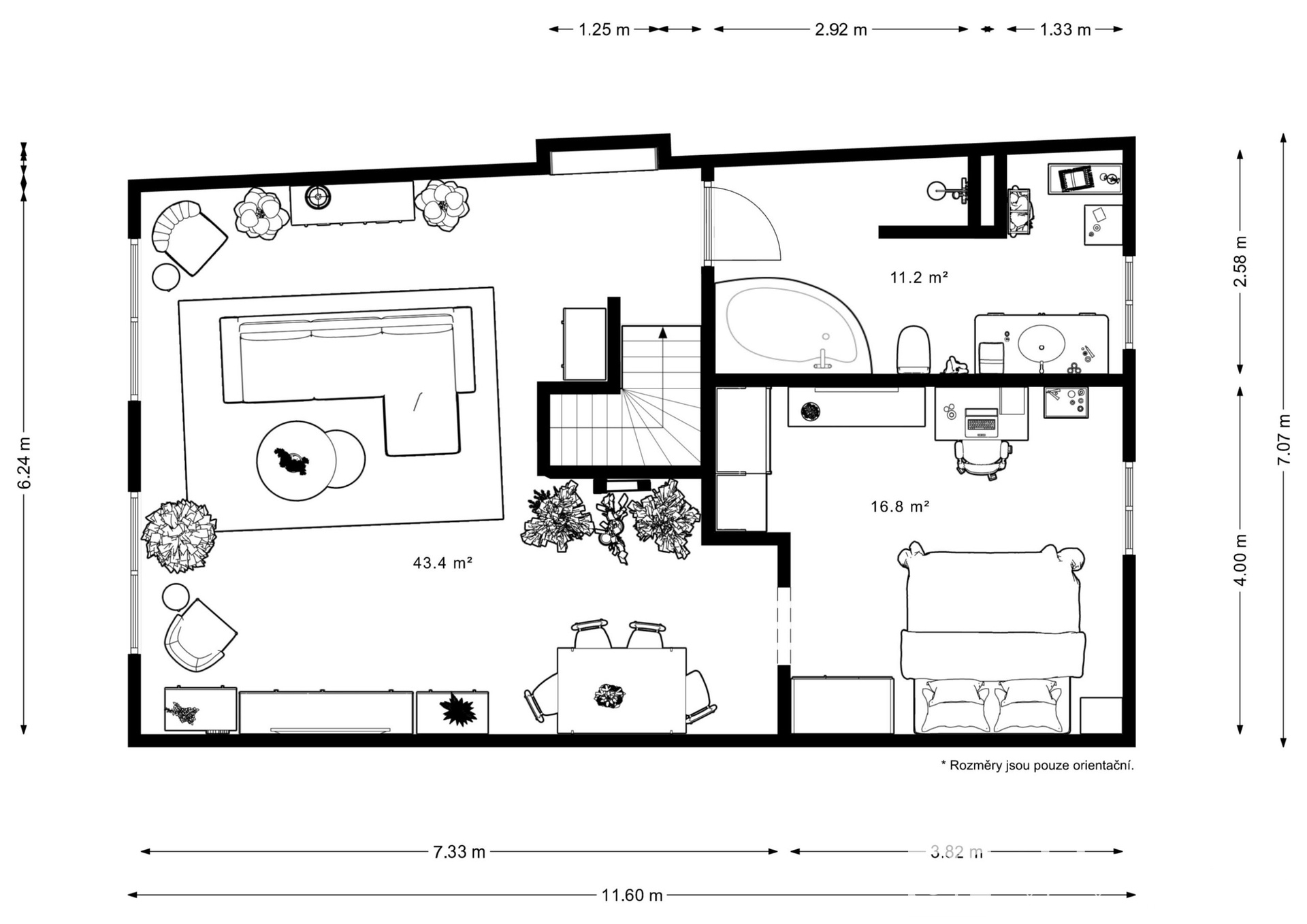
Přízemí
V přízemí se nachází vstupní chodba, technická místnost s prostorem pro pračku a sušičku, toaleta, špajz a kuchyně s jídelnou orientovaná do zahrádky.
Patro
Po dřevěném schodišti vystoupáte do patra, kde vás čeká prostorný obývací pokoj s krbovými kamny, ložnice a koupelna se sprchovým koutem i vanou. Dům nabízí mnoho dispozičních možností – díky rozvodům vody a odpadu v obývacím pokoji je možné vytvořit druhou kuchyni nebo prostor rozdělit na dvě samostatné bytové jednotky.
Komerční prostor
Součástí domu je také komerční prostor o velikosti 35 m² s vlastním sociálním zázemím a skladem. V současnosti je pronajat stabilnímu nájemci – optice – s ročním výnosem 180 000 Kč. Prostor má samostatný vstup i elektroměr, což zajišťuje přehledné oddělení od obytné části.
Vytápění a ohřev vody zajišťuje kondenzační plynový kotel (stáří 6 let). Za domem se nachází uzavřená zahrádka s terasou a studnou, ideální pro klidné posezení a soukromí. Z terasy se otevírá jedinečný výhled na historické centrum města.
- dispozice 2+1 s možností úprav
- komerční prostor 35 m², výnos 180 000 Kč/rok
- kondenzační plynový kotel (6 let)
- uzavřený dvorek, terasa, studna
- výhled na kostel Nanebevzetí Panny Marie
- centrum Staré Boleslavi
- dům nevyžaduje žádné úpravy
Lokalita domu je naprosto výjimečná – v pěší vzdálenosti se nachází obchody, restaurace, školy, školky i autobusové nádraží. Okolí nabízí široké možnosti pro aktivní odpočinek, cyklostezky a procházky podél Labe. Do Prahy se pohodlně dostanete autem do 20 minut.
Tento dům je ideální volbou pro ty, kteří hledají stylové bydlení s duší minulosti, ale zároveň chtějí praktickou investici s jistým výnosem.
Možnost financování hypotečním úvěrem.
| Cena: | 9 490 000 Kč |
| Poznámka: | cena je uvedena včetně poplatků a odměny RK |
| Číslo zakázky: | REALITYMIX-25201 |
Podrobné informace
- Poloha objektu: řadový
- Druh objektu: smíšená
- Stav objektu: dobrý
- Počet podlaží objektu: 1
- Typ domu: patrový
- Zastavěná plocha: 140 m²
- Plocha parcely: 148 m²
- Užitná plocha: 140 m²
- Energetická náročnost budovy: G - Mimořádně nehospodárná
Právní rádce
-
Detail
V tomto článku shrneme nejdůležitější věci, které byste si měli promyslet, pokud se chystáte prodat svou nemovitost a chcete, abyste s kupujícím nemusel následně řešit vzniklé problémy.
Jako prodávající nesete rizika spojená nejen se samotným obchodem, ale i se stavem nemovitosti v době prodeje a pro minimalizaci rizik, je dobré se zamyslet nad uvedenými oblastmi.
-
Detail
Realitní makléř má své nezastupitelné místo v realitním obchodu. Realitním makléřem nemyslím nevzdělané jelito, které absolvovalo dvoudenní školení a ví, jak se nahraje inzerát na inzertní portál.
Realitním makléřem, který se Vám skutečně vyplatí, je zkušený profesionál, který je schopen Vám dobře poradit jak prodat za co nejvíc a s nejmenším rizikem a hlavně je Vás schopen obratně provést celým realitním obchodem.
Mapa
Podobné nemovitosti
Prodej - dům/vila, 138 m²
Petra Jilemnického, Brandýs nad Labem, Praha-východ
8 900 000 Kč
Prodej - dům/vila, 275 m²
Chomutovice, Popovičky, Praha-východ
9 950 000 Kč
Prodej - dům/vila, 80 m²
Formanská, Veltěž, Praha-východ
9 990 000 Kč
Prodej - dům/vila, 141 m²
Krátká, Třemblat, Praha-východ
7 290 000 Kč