Prodej - dům/vila, 143 m²
Zlín
12 120 000 KčProdej - dům/vila, 143 m²
Zlín
Moderní úsporná dřevostavba 4+kk s dvojgaráží, pozemek 1003 m²
Tato nabídka zahrnuje prostorný pozemek o velikosti 1003 m² včetně zajištění kompletní výstavby.
Co je zahrnuto v ceně?
Pozemek i dům s kompletním dokončením interiéru, včetně projektové dokumentace, ČOV, retenční nádrže, přípojek a základních terénních úprav.
Vybavené koupelny a WC – včetně sanitární výbavy.
Vnitřní dveře, podlahové krytiny, obklady a dlažby – vše ve vysoké kvalitě.
Moderní design a praktické řešení pro pohodlné bydlení.
Upozornění: Kuchyňská linka není součástí dodávky, abyste si ji mohli přizpůsobit svým představám.
Proč si vybrat právě tento dům?
✅ Nízké náklady na bydlení: Úsporná dřevostavba s kvalitním zateplením.
✅ Komfortní teplo: Teplovodní podlahové vytápění s tepelným čerpadlem a TUV nádrží.
✅ Kompletní infrastruktura: Napojení na všechny inženýrské sítě.
✅ Ekologické řešení: Retenční nádrž na dešťovou vodu.
✅ Připraveno k životu: Včetně základních terénních úprav.
Přizpůsobte si ho podle sebe!
Máte možnost ovlivnit vzhled svého nového domova:
Vyberte si odstíny vinylových podlah, koupelnových obkladů a dekorů dveří.
Zvolte si ze dvou odstínů venkovní fasády, které se vám nejvíce líbí.
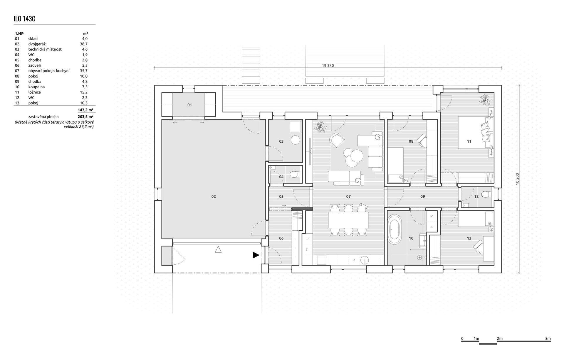
Dispozice a parametry:
Typ domu: Bungalov
Dispozice: 4+kk + dvojgaráž
Užitná plocha: 143 m²
Zastavěná plocha: 204 m²
Rozměry domu: 19,4 x 10,5m
Nenechte si ujít tuto jedinečnou šanci na moderní a úsporné bydlení!
Podrobný popis dřevostavby a půdorys naleznete v galerii.
Zaujala vás tato nabídka? Kontaktujte nás ještě dnes a domluvte si prohlídku!
| Cena: | 12 120 000 Kč |
| Datum k nastěhování: | 02.06.2025 |
| Číslo zakázky: | REALITYMIX-972274 |
Podrobné informace
- Poloha objektu: samostatný
- Druh objektu: dřevěná
- Stav objektu: novostavba
- Počet podlaží objektu: 1
- Typ domu: přízemní
- Zastavěná plocha: 204 m²
- Plocha parcely: 1003 m²
- Zahrada: 968 m²
- Užitná plocha: 143 m²
- Elektřina: Elektro - 230 V
- Voda: Zdroj pro celý objekt, Voda - dálkový vodovod
- Odpad: Kanalizace
- Energetická náročnost budovy: B - Úsporná
- Popis vybavení: .
Právní rádce
-
Detail
V tomto článku shrneme nejdůležitější věci, které byste si měli promyslet, pokud se chystáte prodat svou nemovitost a chcete, abyste s kupujícím nemusel následně řešit vzniklé problémy.
Jako prodávající nesete rizika spojená nejen se samotným obchodem, ale i se stavem nemovitosti v době prodeje a pro minimalizaci rizik, je dobré se zamyslet nad uvedenými oblastmi.
-
Detail
Realitní makléř má své nezastupitelné místo v realitním obchodu. Realitním makléřem nemyslím nevzdělané jelito, které absolvovalo dvoudenní školení a ví, jak se nahraje inzerát na inzertní portál.
Realitním makléřem, který se Vám skutečně vyplatí, je zkušený profesionál, který je schopen Vám dobře poradit jak prodat za co nejvíc a s nejmenším rizikem a hlavně je Vás schopen obratně provést celým realitním obchodem.