Prodej - dům/vila, 150 m²
ulice 1. května, Brno-Tuřany, Brno, Brno-město
10 099 000 KčProdej - dům/vila, 150 m²
ulice 1. května, Brno-Tuřany, Brno, Brno-město
Prodej městského RD se zahradou a potenciálem 150m2 Tuřany
Celková podlahová plocha domu je přibližně 150 m2. Nemovitost je průběžně udržovaná a díky praktickému uspořádání nabízí široké možnosti využití - ať už pro rodinné bydlení, nebo jako dvougenerační dům.
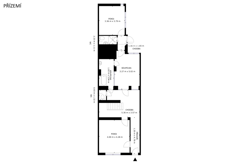
V přízemí se nachází byt o dispozici 2+1, který je vhodný k modernizaci dle vlastních představ. Horní byt 2+kk je naopak ve velmi dobrém stavu a připraven k okamžitému užívání. Ve třetím podlaží je k dispozici samostatný pokoj a půda.
Technický stav domu zahrnuje novější rozvody, plynový kotel, plastová okna instalovaná v roce 2014 a zateplený strop.
Dispozice domu:
1.NP (přízemí): vstupní chodba, schodiště, kuchyně s jídelním koutem, obývací pokoj, ložnice, dvě koupelny, samostatná toaleta.
2.NP (1. patro): obývací pokoj, kuchyně s jídelním koutem a spíží, ložnice a terasa.
3.NP (půda): samostatný pokoj s lodžií s pěkným výhledem do zahrady, půdní prostor v dobrém technickém stavu.
Na dvoře je umístěn obyvatelný přístavek. Další přístavek lze využít jako dílnu nebo sklad.
Samozřejmostí je sklep pod částí domu. Vytápění i zajišťuje plynový kotel.
Lokalita nabízí příjemné a klidné bydlení s výbornou dostupností do centra a kompletní občanskou vybaveností - školy, školky, zdravotnické služby, pošta, restaurace i další obchody. V blízkosti se nachází sportovní hřiště a zastávka MHD je vzdálena jen pár minut chůze.
Zaujala Vás tato nemovitost? Zavolejte mi pro více informací nebo domluvení prohlídky.
| Cena: | 10 099 000 Kč |
| Poznámka: | Cena včetně provize RK a právních služeb |
| Datum k nastěhování: | 01.03.2026 |
| Číslo zakázky: | REALITYMIX-234132 |
Podrobné informace
- Poloha objektu: řadový
- Druh objektu: cihlová
- Stav objektu: dobrý
- Počet podlaží objektu: 3
- Typ domu: patrový
- Zastavěná plocha: 113 m²
- Plocha parcely: 233 m²
- Užitná plocha: 150 m²
- Umístění objektu: klidná část obce
- Doprava: vlak, dálnice, silnice, MHD, autobus
- Komunikace: asfaltová
- Elektřina: Elektro - 230 V, Elektro - 380 V
- Voda: Voda - dálkový vodovod
- Telekomunikace: Telefon, Internet
- Topení: Ústřední - plynové
- Odpad: Kanalizace
- Ostatní rozvody: Kabelová televize, Ostatní rozvody
- Energetická náročnost budovy: G - Mimořádně nehospodárná
Právní rádce
-
Detail
V tomto článku shrneme nejdůležitější věci, které byste si měli promyslet, pokud se chystáte prodat svou nemovitost a chcete, abyste s kupujícím nemusel následně řešit vzniklé problémy.
Jako prodávající nesete rizika spojená nejen se samotným obchodem, ale i se stavem nemovitosti v době prodeje a pro minimalizaci rizik, je dobré se zamyslet nad uvedenými oblastmi.
-
Detail
Realitní makléř má své nezastupitelné místo v realitním obchodu. Realitním makléřem nemyslím nevzdělané jelito, které absolvovalo dvoudenní školení a ví, jak se nahraje inzerát na inzertní portál.
Realitním makléřem, který se Vám skutečně vyplatí, je zkušený profesionál, který je schopen Vám dobře poradit jak prodat za co nejvíc a s nejmenším rizikem a hlavně je Vás schopen obratně provést celým realitním obchodem.
Mapa
Podobné nemovitosti
Prodej - dům/vila, 150 m²
Scheinerova, Brno-Líšeň, Brno, Brno-město
9 250 000 Kč
Prodej - dům/vila, 156 m²
Brno-Bohunice, Brno, Brno-město
7 000 000 Kč
Prodej - dům/vila, 260 m²
Brno-Bystrc, Brno, Brno-město
Cena na vyžádání
Prodej - dům/vila, 179 m²
Malínská, Brno-Tuřany, Brno, Brno-město
12 560 000 Kč