Prodej - dům/vila, 220 m²
Klíny, Brno-Židenice, Brno, Brno-město
12 900 000 KčProdej - dům/vila, 220 m²
Klíny, Brno-Židenice, Brno, Brno-město
Prodej řadového třípodlažního rodinného domu s předzahrádkou a zahradou ulice Klíny Brno Židenice
Dům má tři podlaží a suterén, podlaží jsou spojená vnitřním schodištěm. V domě jsou čtyři obytné místnosti a kuchyň a dvě koupelny a dvě wc. Současný majitel jej v průběhu užívání částečně rekonstruoval a vystavěl v podkroví další obytnou část (kolaudace 2012). Dům o celkové podlahové ploše cca 220 m² je situován na pozemku o výměře 286 m² (z toho zahrada 170 m²) a je napojen na veškeré inženýrské sítě. Dům má pět obytných místností, kuchyni, dvě koupelny a sklep.
Navazující zahrada ve vnitrobloku rodinných domů je oplocená, její součástí je dvůr s pergolou a posezením a zahradní domek. Zahrada je částečně travnatá s okrasnými prvky a částečně využívaná jako užitková se záhony.
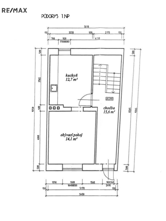
Do domu se vstupuje z předzahrádky hlavní chodbou v přízemí, na kterou navazuje schodiště spojující všechna podlaží, chodbou je možné rovněž vstoupit na zahradu domu.
Součástí vstupního přízemí domu (1. NP) je:
- kuchyně orientovaná do dvora a zahrady& spíž, součástí je kuchyňská linka s vestavnými spotřebiči
- obývací pokoj orientovaný do předzahrádky s kachlovými kamny
- vstupní chodba s možností průchodu na zahradu a do dalších podlaží domu
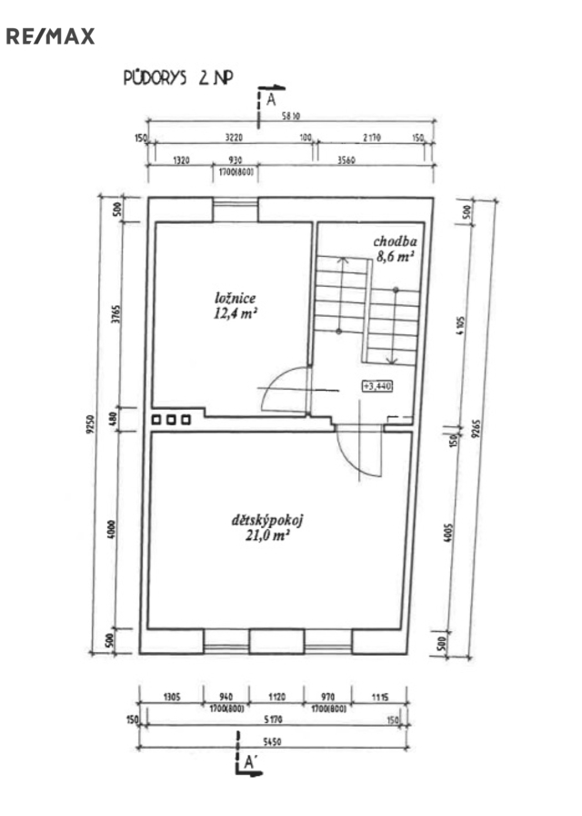
V patře domu (2. NP) jsou dva pokoje:
- velký pokoj orientovaný do ulice západním směrem, pokoj má vestavěné skříně,
- ložnice s vestavěnými skříněmi orientovaná východním směrem do vnitrobloku,
- v mezipatře u schodiště je koupelna se sprchovým koutem a WC.
V podkroví domu (3. NP) je jeho nejnovější obytná část:
- dva propojené neoddělené pokoje s vestavnými skříněmi, pokoje jsou orientované do ulice i zahrady
V suterénu domu (1. PP) se nachází:
- technická místnost – sklep
- velká koupelna s rohovou vanou, místem pro pračku, v koupelně je rovněž kondenzační kotel se zásobníkem na teplou vodu, který vytápí celý dům,
- malý odvětrávaný sklep sloužící ke skladování ovoce a zeleniny, fungující rovněž jako vinný sklípek,
- u schodiště do suterénu je umístěno samostatné WC.
Technické informace: Dům je zděný, fasáda zateplená, objekt má plastová okna a vstupní dveře, v domě je elektroinstalace v mědi, byly provedeny nové izolace proti vodě, dům nejeví známky vlhkosti. Schodiště dřevěné, dvouramenné. Vestavba do střechy včetně nové střechy provedena a kolaudována v roce 2012. Vytápění a ohřev vody zajišťuje plynový kondenzační kotel Thermona se zásobníkem na teplou vodu umístěný v suterénu.
Výměry: Šíře domu 5,6 m, hloubka domu 9,3 m. Zastavěná plocha domu: 55 m². Celková podlahová plocha: 220 m². Pozemek: zastavěná plocha domu 55 m2, zastavěná plocha a nádvoří 116 m² (plocha předzahrádky 36 m2, dvůr 25 m2, zahrada 170 m².
Dům je vhodný pro rodinné bydlení, je ihned obyvatelný, udržovaný a připravený na nového majitele.
Na domě nevázne žádné zástavní právo, koupi je možné financovat hypotečním úvěrem. Pro více informací a prohlídky nemovitosti nás kontaktujte.
| Cena: | 12 900 000 Kč |
| Číslo zakázky: | REALITYMIX-425554 |
Podrobné informace
- Poloha objektu: řadový
- Druh objektu: cihlová
- Stav objektu: velmi dobrý
- Počet podlaží objektu: 4
- Typ domu: patrový
- Zastavěná plocha: 116 m²
- Plocha parcely: 286 m²
- Zahrada: 170 m²
- Užitná plocha: 220 m²
- Sklep: 55 m²
- Umístění objektu: klidná část obce
- Doprava: vlak, silnice, MHD, autobus
- Komunikace: asfaltová
- Elektřina: Elektro - 230 V, Elektro - 400 V
- Voda: Voda - dálkový vodovod
- Plyn: Plynovod
- Odpad: Kanalizace
- Energetická náročnost budovy: E - Nehospodárná
- Energetický ukazatel podle vyhlášky: č. 264/2020 Sb.
Právní rádce
-
Detail
V tomto článku shrneme nejdůležitější věci, které byste si měli promyslet, pokud se chystáte prodat svou nemovitost a chcete, abyste s kupujícím nemusel následně řešit vzniklé problémy.
Jako prodávající nesete rizika spojená nejen se samotným obchodem, ale i se stavem nemovitosti v době prodeje a pro minimalizaci rizik, je dobré se zamyslet nad uvedenými oblastmi.
-
Detail
Realitní makléř má své nezastupitelné místo v realitním obchodu. Realitním makléřem nemyslím nevzdělané jelito, které absolvovalo dvoudenní školení a ví, jak se nahraje inzerát na inzertní portál.
Realitním makléřem, který se Vám skutečně vyplatí, je zkušený profesionál, který je schopen Vám dobře poradit jak prodat za co nejvíc a s nejmenším rizikem a hlavně je Vás schopen obratně provést celým realitním obchodem.
Mapa
Podobné nemovitosti
Prodej - dům/vila, 179 m²
Malínská, Brno-Tuřany, Brno, Brno-město
12 560 000 Kč
Prodej - dům/vila, 180 m²
Vranovská, Brno-sever, Brno, Brno-město
11 600 000 Kč
Prodej - dům/vila, 144 m²
V aleji, Brno-Tuřany, Brno, Brno-město
12 990 000 Kč
Prodej - dům/vila, 126 m²
Šámalova, Brno-Židenice, Brno, Brno-město
13 600 000 Kč