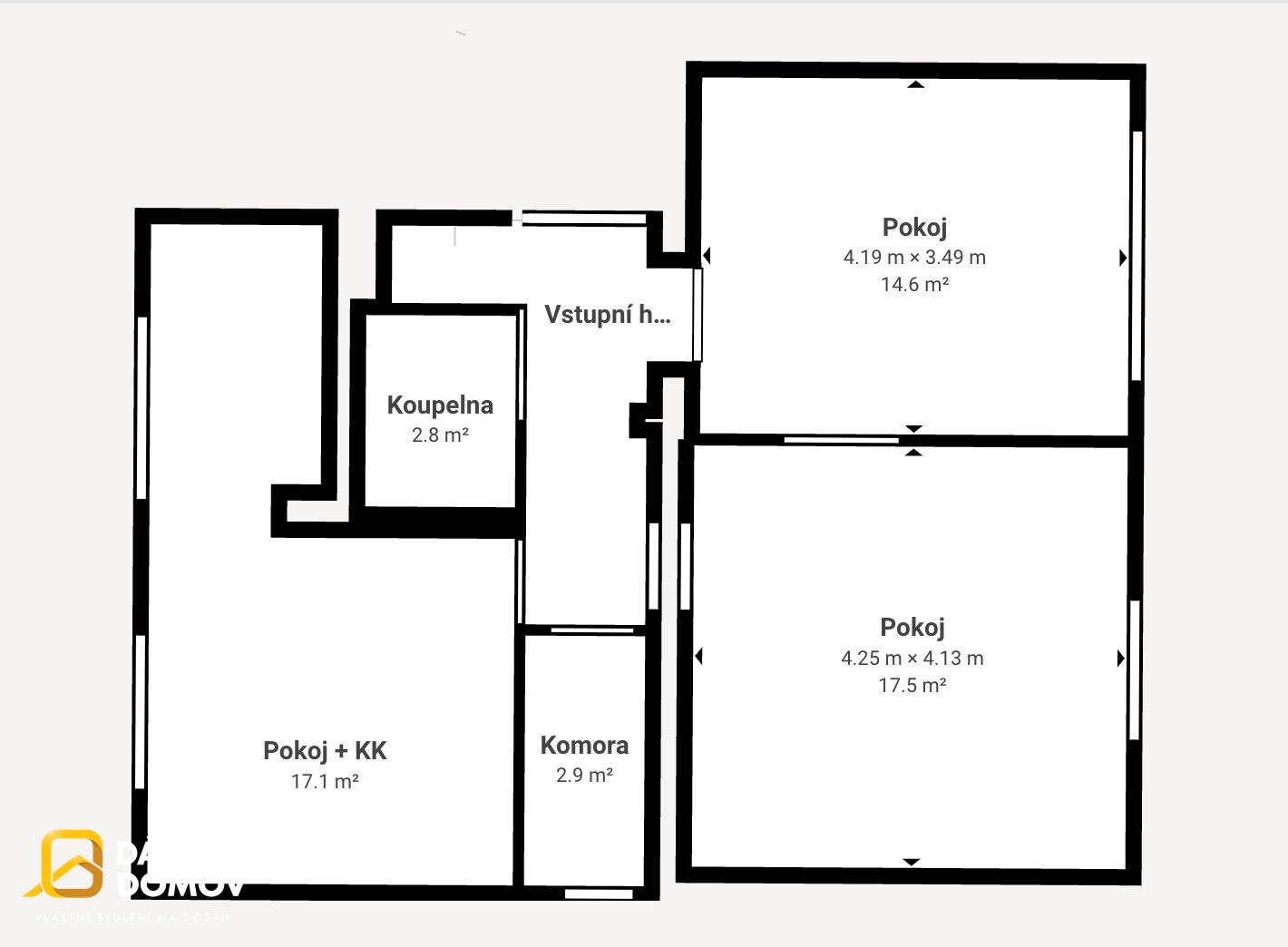
Prodej bytu, 3+kk, 83 m²
Prostějov
2 200 000 KčProdej bytu, 3+kk, 83 m²
Prostějov
Prodej bytu 3+kk, 60 m², Brodek u Konice
Nabízíme ke koupi světlý byt 3+kk o ploše 60 m² s balkónem, umístěný v 1. patře menšího bytového domu se čtyřmi jednotkami. Byt je v původním, udržovaném stavu a je ideální pro ty, kteří hledají možnost vytvořit si domov přesně podle svých představ – je určen ke kompletní rekonstrukci.
Byt je v osobním vlastnictví a jeho součástí jsou také dva prostorné sklepy, které poskytují dostatek úložného prostoru. K bytu je navíc zajištěno parkování pro dvě vozidla před domem, což zaručuje komfortní a bezproblémové parkování i pro vícečlennou domácnost. V současnosti je byt vytápěný krbovými kamny, avšak do bytu je zaveden plyn a k dispozici je původní plynový kotel, který je možné znovu zprovoznit podle preferencí nového majitele.
Dům se nachází v klidné části obce, na jejím okraji, v prostředí s dostatkem zeleně a minimálním provozem. K domu je možné využívat zahrádku, která nabízí příjemné posezení nebo prostor pro pěstování.
Tento byt představuje skvělou příležitost pro vlastní bydlení i investici – vhodný pro rodinu, pár či jednotlivce, kteří hledají klid, prostor a možnost přizpůsobit si interiér podle svého vkusu.
Zavolejte si na prohlídku, těším se na Vás, Silvie Skotková & dáme domov.
| Cena: | 2 200 000 Kč |
| Dispozice/podlahová plocha: | 3+kk/83 m² |
| Číslo zakázky: | REALITYMIX-14342 |
Podrobné informace
- Dispozice bytu: 3+kk
- Číslo podlaží v domě: 2
- Počet podlaží objektu: 2
- Celková podlahová plocha: 83 m²
- Druh objektu: cihlová
- Stav objektu: dobrý
- Vlastnictví: osobní
- Umístění objektu: okraj obce
- Voda: Zdroj pro celý objekt
- Topení: Lokální - tuhá paliva, Ústřední - plynové
- Odpad: Kanalizace
- Energetická náročnost budovy: G - Mimořádně nehospodárná
Právní rádce
-
Detail
V tomto článku shrneme nejdůležitější věci, které byste si měli promyslet, pokud se chystáte prodat svou nemovitost a chcete, abyste s kupujícím nemusel následně řešit vzniklé problémy.
Jako prodávající nesete rizika spojená nejen se samotným obchodem, ale i se stavem nemovitosti v době prodeje a pro minimalizaci rizik, je dobré se zamyslet nad uvedenými oblastmi.
-
Detail
Realitní makléř má své nezastupitelné místo v realitním obchodu. Realitním makléřem nemyslím nevzdělané jelito, které absolvovalo dvoudenní školení a ví, jak se nahraje inzerát na inzertní portál.
Realitním makléřem, který se Vám skutečně vyplatí, je zkušený profesionál, který je schopen Vám dobře poradit jak prodat za co nejvíc a s nejmenším rizikem a hlavně je Vás schopen obratně provést celým realitním obchodem.