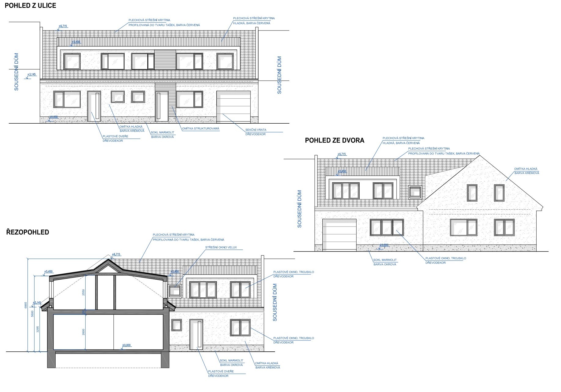
Prodej - dům/vila, 188 m²
Brumovice, Břeclav
2 863 350 KčProdej - dům/vila, 188 m²
Brumovice, Břeclav
Prodej RD 188 m² se stavebním pozemkem, Brumovice
| Cena: | 2 863 350 Kč |
| Číslo zakázky: | REALITYMIX-120098JV |
Podrobné informace
- Poloha objektu: řadový
- Druh objektu: cihlová
- Stav objektu: špatný
- Počet podlaží objektu: 1
- Typ domu: přízemní
- Zastavěná plocha: 188 m²
- Plocha parcely: 858 m²
- Užitná plocha: 188 m²
- Doprava: silnice, autobus
- Komunikace: asfaltová
- Voda: Voda - dálkový vodovod
- Odpad: Kanalizace
- Energetická náročnost budovy: G - Mimořádně nehospodárná
Právní rádce
-
Detail
V tomto článku shrneme nejdůležitější věci, které byste si měli promyslet, pokud se chystáte prodat svou nemovitost a chcete, abyste s kupujícím nemusel následně řešit vzniklé problémy.
Jako prodávající nesete rizika spojená nejen se samotným obchodem, ale i se stavem nemovitosti v době prodeje a pro minimalizaci rizik, je dobré se zamyslet nad uvedenými oblastmi.
-
Detail
Realitní makléř má své nezastupitelné místo v realitním obchodu. Realitním makléřem nemyslím nevzdělané jelito, které absolvovalo dvoudenní školení a ví, jak se nahraje inzerát na inzertní portál.
Realitním makléřem, který se Vám skutečně vyplatí, je zkušený profesionál, který je schopen Vám dobře poradit jak prodat za co nejvíc a s nejmenším rizikem a hlavně je Vás schopen obratně provést celým realitním obchodem.