Prodej - dům/vila, 200 m²
Cajthamlova, Teplice
5 990 000 KčProdej - dům/vila, 200 m²
Cajthamlova, Teplice
Rodinný dům s nádherným výhledem na hrad Doubravka Ideální pro vícegenerační bydlení nebo investici
Rádi bychom vám představili jedinečnou příležitost ke koupi rodinného domu s možností vícegeneračního bydlení, nacházejícího se v klidné lokalitě na adrese Cajthamlova, Bystřany. Tento dům je ideální volbou jak pro rodiny hledající prostorné a pohodlné bydlení, tak pro investory, kteří chtějí využít potenciál nemovitosti jako více bytových jednotek.
Popis nemovitosti:
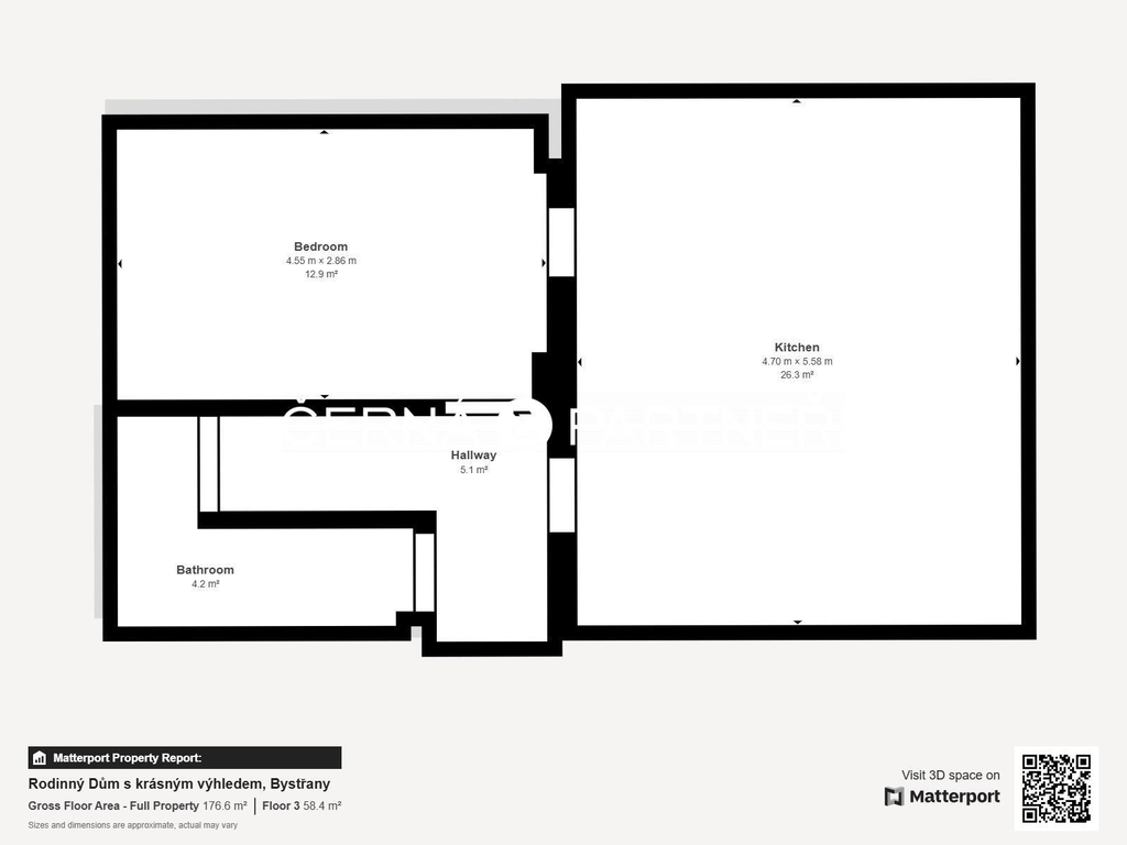
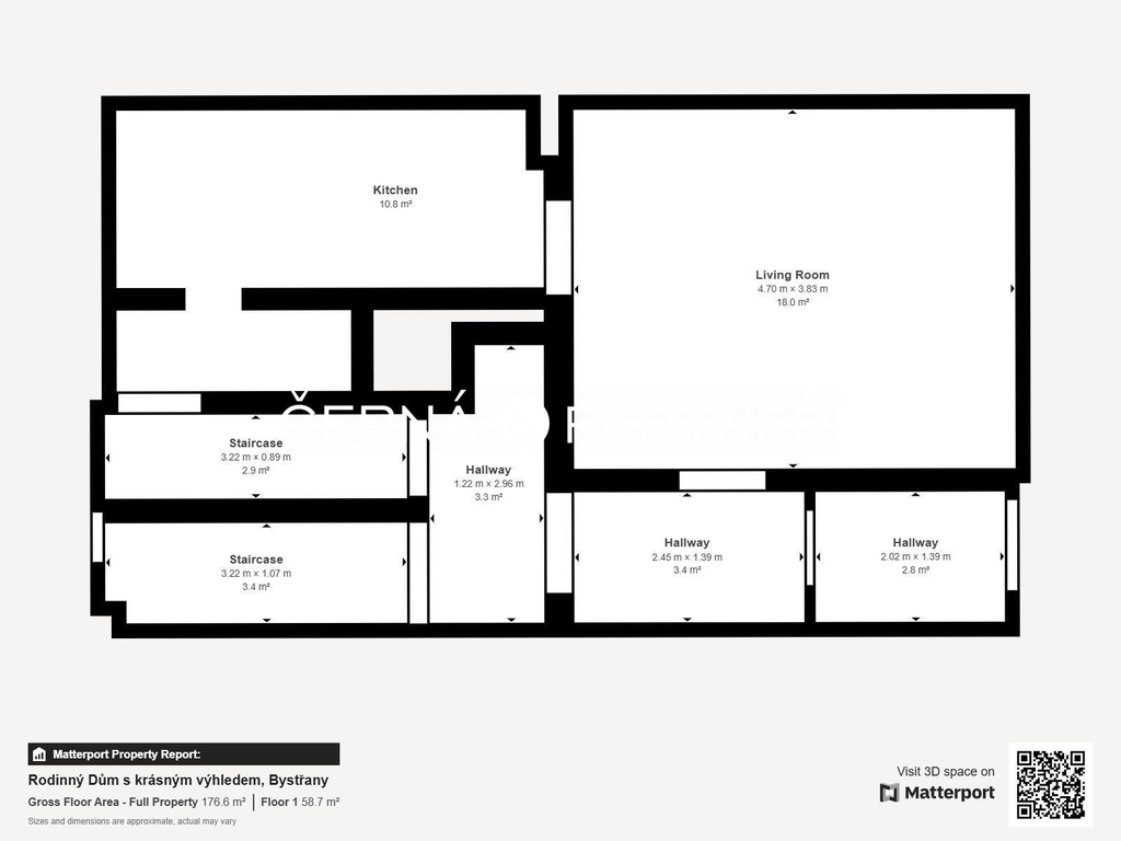
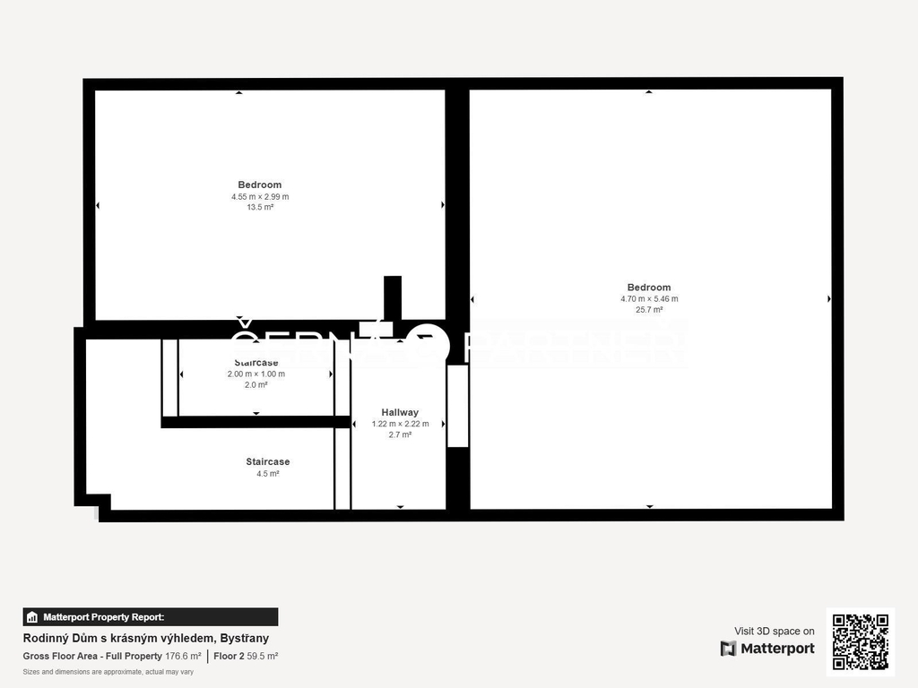
Rodinný dům nabízí celkem tři bytové jednotky, které zaručují dostatek prostoru a soukromí pro všechny obyvatele. V přízemí se nachází útulná jednotka 1+1, která je ideální pro prarodiče nebo jako startovací byt pro mladé páry. Na prvním patře najdete prostornou dispozici 2+0, která nabízí dostatek prostoru. Druhé patro pak disponuje moderní jednotkou 2+kk s krásným výhledem na okolní krajinu.
Celková užitná plocha domu činí 200 m a je připravena ihned k nastěhování.
Zahrada a okolí:
Jedním z největších lákadel této nemovitosti je rozlehlá zahrada o výměře 470 m, která nabízí nespočet možností pro využití. Ať už toužíte po okrasné zahradě, místu pro dětské hry nebo vlastní zeleninové zahrádce, zde se vaše přání stane skutečností. Na zahradě se nachází i pergola, ideální pro letní posezení s rodinou a přáteli, a kůlna na nářadí, která poskytuje dostatek úložného prostoru.
Technické vybavení:
Dům je vybaven plynovým vytápěním, což zajišťuje efektivní a úsporný provoz. Pro ohřev vody je k dispozici bojler, který zajistí dostatek teplé vody pro všechny bytové jednotky.
Lokalita:
Nemovitost se nachází v blízkosti centra, avšak v klidné oblasti, což zajišťuje komfortní bydlení s veškerou občanskou vybaveností na dosah ruky. Ať už potřebujete nakoupit, zajít na kávu, nebo se vydat na procházku po okolí, vše máte nadosah.
Pokud hledáte domov, který nabízí klid, prostor a skvělé zázemí pro více generací nebo výhodnou investici, neváhejte nás kontaktovat pro více informací nebo sjednání prohlídky. Tato nemovitost je připravena splnit vaše sny o dokonalém bydlení.
| Cena: | 5 990 000 Kč |
| Číslo zakázky: | REALITYMIX-0071 |
Podrobné informace
- Poloha objektu: řadový
- Druh objektu: cihlová
- Stav objektu: dobrý
- Počet podlaží objektu: 3
- Typ domu: patrový
- Zastavěná plocha: 80 m²
- Plocha parcely: 550 m²
- Zahrada: 470 m²
- Užitná plocha: 200 m²
- Doprava: vlak, dálnice, silnice, MHD, autobus
- Komunikace: asfaltová
- Elektřina: Elektro - 230 V
- Voda: Voda - dálkový vodovod
- Plyn: Plynovod
- Odpad: Kanalizace
- Energetický ukazatel podle vyhlášky: č. 264/2020 Sb.
Právní rádce
-
Detail
V tomto článku shrneme nejdůležitější věci, které byste si měli promyslet, pokud se chystáte prodat svou nemovitost a chcete, abyste s kupujícím nemusel následně řešit vzniklé problémy.
Jako prodávající nesete rizika spojená nejen se samotným obchodem, ale i se stavem nemovitosti v době prodeje a pro minimalizaci rizik, je dobré se zamyslet nad uvedenými oblastmi.
-
Detail
Realitní makléř má své nezastupitelné místo v realitním obchodu. Realitním makléřem nemyslím nevzdělané jelito, které absolvovalo dvoudenní školení a ví, jak se nahraje inzerát na inzertní portál.
Realitním makléřem, který se Vám skutečně vyplatí, je zkušený profesionál, který je schopen Vám dobře poradit jak prodat za co nejvíc a s nejmenším rizikem a hlavně je Vás schopen obratně provést celým realitním obchodem.