Prodej - dům/vila, 122 m²
Cerhonice, Písek
8 390 000 KčProdej - dům/vila, 122 m²
Cerhonice, Písek
Prodej rodinného domu 5+kk, 122 m², pozemek 1048 m², Cerhonice okres Písek
Tato moderní dřevostavba splňuje vysoké standardy současného bydlení – nabízí skvělou tepelnou úspornost, příjemné vnitřní klima a nadčasový design. Dům je kompletně nový a nezařízený, což umožňuje budoucím majitelům vytvořit si interiér přesně podle vlastních představ a životního stylu, jako inspirace slouží vizualizace místností.
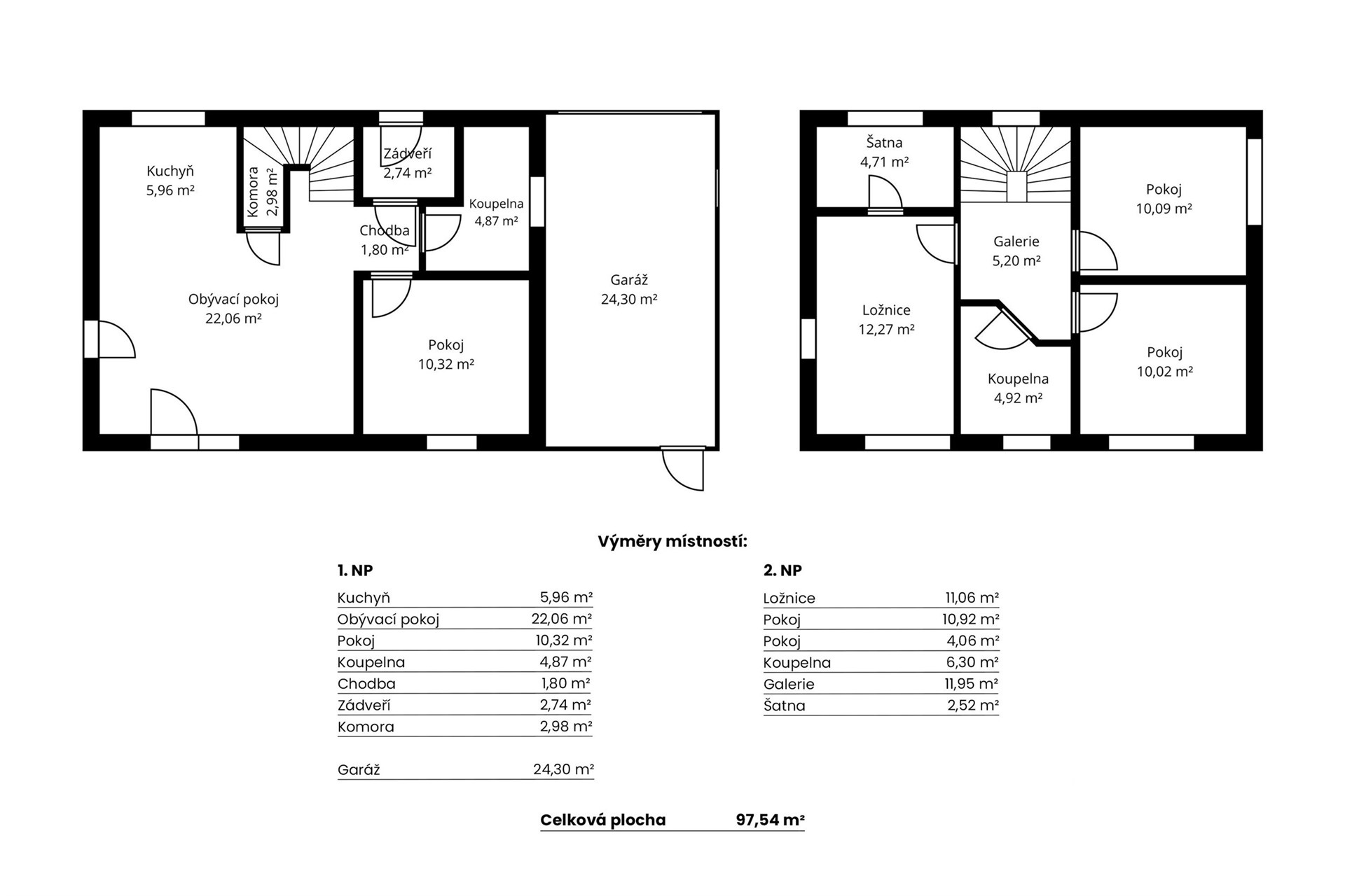
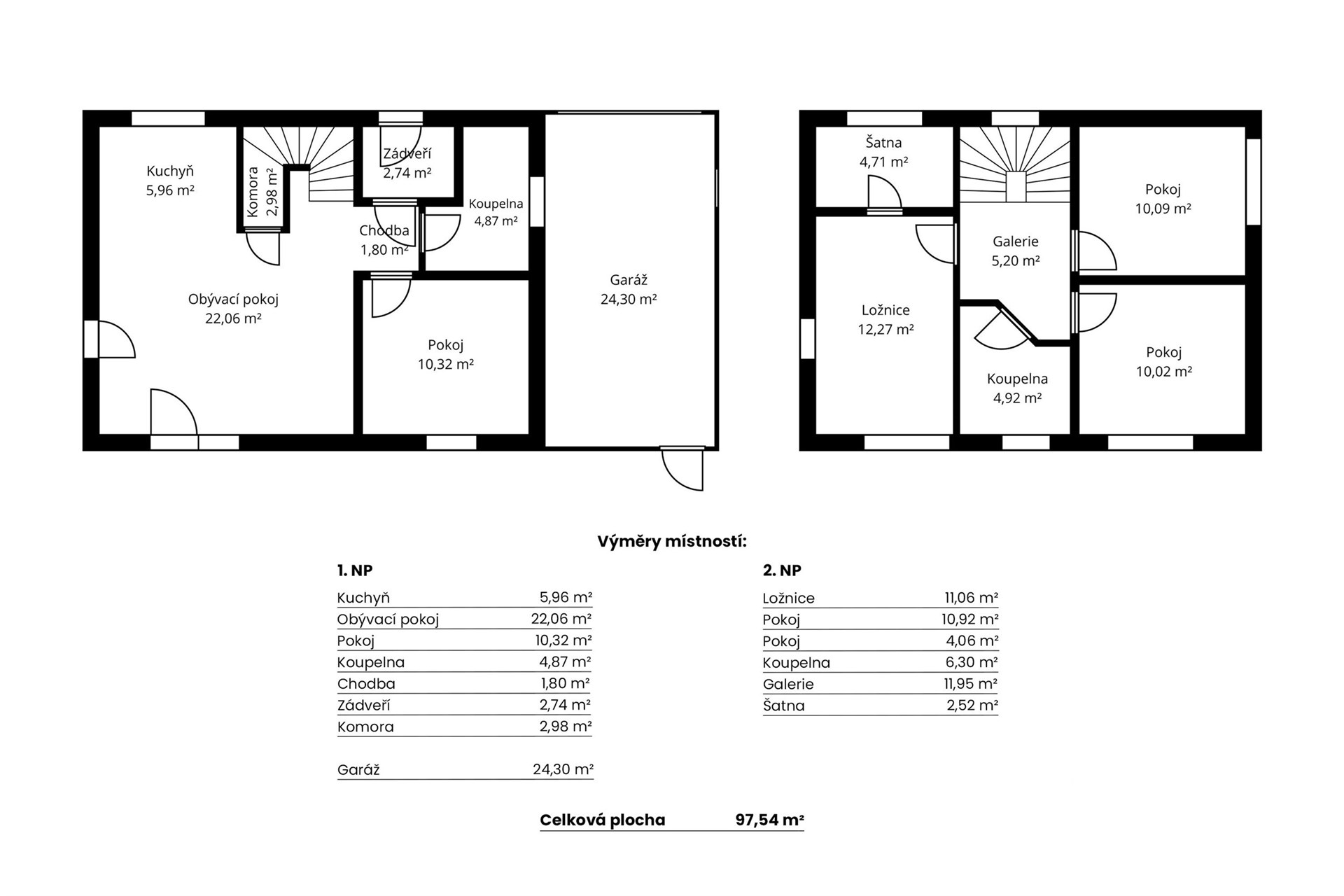
Dům je koncipován v dispozici 5+kk, obsahuje pět obytných místností, 2 koupelny, spíž plus kuchyň s jídelním prostorem, který je ideálním místem pro rodinné stolování. Obývací pokoj je dostatečně prostorný a díky velkým francouzským oknům je plný denního světla, což prostor činí velmi příjemným. V horním patře jsou 3 světlé pokoje z čehož 1 obsahuje vlastní šatnu. Nemovitost je situována na krásném, slunném pozemku o rozloze 1048 m², jenž poskytuje dostatek prostoru pro rodinný život, volnočasové aktivity i budoucí zahradní úpravy.
Dům je postaven z kvalitních materiálů, což zaručuje nízkou energetickou náročnost (energetický štítek C). Je vytápěný tepelným čerpadlem vzduch/vzduch, ohřev vody zajišťuje přímotopy zásobník Ariston Nuos Primo o objemu 200 litrů. V domě je také klimatizace, která může sloužit i jako doplňkový zdroj tepla. Kanalizace je řešena vlastní ČOV. Na pozemku je vrt a uvnitř domu je čistička vody.
Cerhonice jsou malebná jihočeská obec obklopená přírodou, která nabízí klidné bydlení mimo ruch města. Zároveň zde najdete veškerou potřebnou občanskou vybavenost v dosahu několika minut jízdy. Pro rodiny s dětmi i milovníky přírody jde o ideální místo. Také dopravní dostupnost je velmi dobrá díky autobusovému spojení a blízkosti větších měst, jako je Písek.
Pro ty, kteří hledají klidné a příjemné bydlení v srdci Jihočeského kraje, je tento dům ideální volbou. Relaxe v rozlehlé zahradě, moderní vybavení domu a dostatek prostoru pro život činí z tohoto domova opravdu výjimečnou nabídku na trhu.
| Cena: | 8 390 000 Kč |
| Datum k nastěhování: | 20.02.2026 |
| Číslo zakázky: | REALITYMIX-970975 |
Podrobné informace
- Poloha objektu: samostatný
- Druh objektu: dřevěná
- Stav objektu: novostavba
- Počet podlaží objektu: 1
- Typ domu: přízemní
- Zastavěná plocha: 89 m²
- Plocha parcely: 1048 m²
- Zahrada: 959 m²
- Užitná plocha: 122 m²
- Terasa: ano
- Ostatní: Garáž
- Doprava: silnice, MHD
- Elektřina: Elektro - 230 V
- Voda: Zdroj pro celý objekt, Voda - dálkový vodovod
- Odpad: Kanalizace
- Energetická náročnost budovy: C - Úsporná
- Energetický ukazatel podle vyhlášky: č. 264/2020 Sb.
Právní rádce
-
Detail
V tomto článku shrneme nejdůležitější věci, které byste si měli promyslet, pokud se chystáte prodat svou nemovitost a chcete, abyste s kupujícím nemusel následně řešit vzniklé problémy.
Jako prodávající nesete rizika spojená nejen se samotným obchodem, ale i se stavem nemovitosti v době prodeje a pro minimalizaci rizik, je dobré se zamyslet nad uvedenými oblastmi.
-
Detail
Realitní makléř má své nezastupitelné místo v realitním obchodu. Realitním makléřem nemyslím nevzdělané jelito, které absolvovalo dvoudenní školení a ví, jak se nahraje inzerát na inzertní portál.
Realitním makléřem, který se Vám skutečně vyplatí, je zkušený profesionál, který je schopen Vám dobře poradit jak prodat za co nejvíc a s nejmenším rizikem a hlavně je Vás schopen obratně provést celým realitním obchodem.