Prodej - dům/vila, 387 m²
Ropická, Dolní Žukov, Karviná
10 490 000 KčProdej - dům/vila, 387 m²
Ropická, Dolní Žukov, Karviná
Rodinný dům 3+1 a 3+kk, pozemek 1952 m²
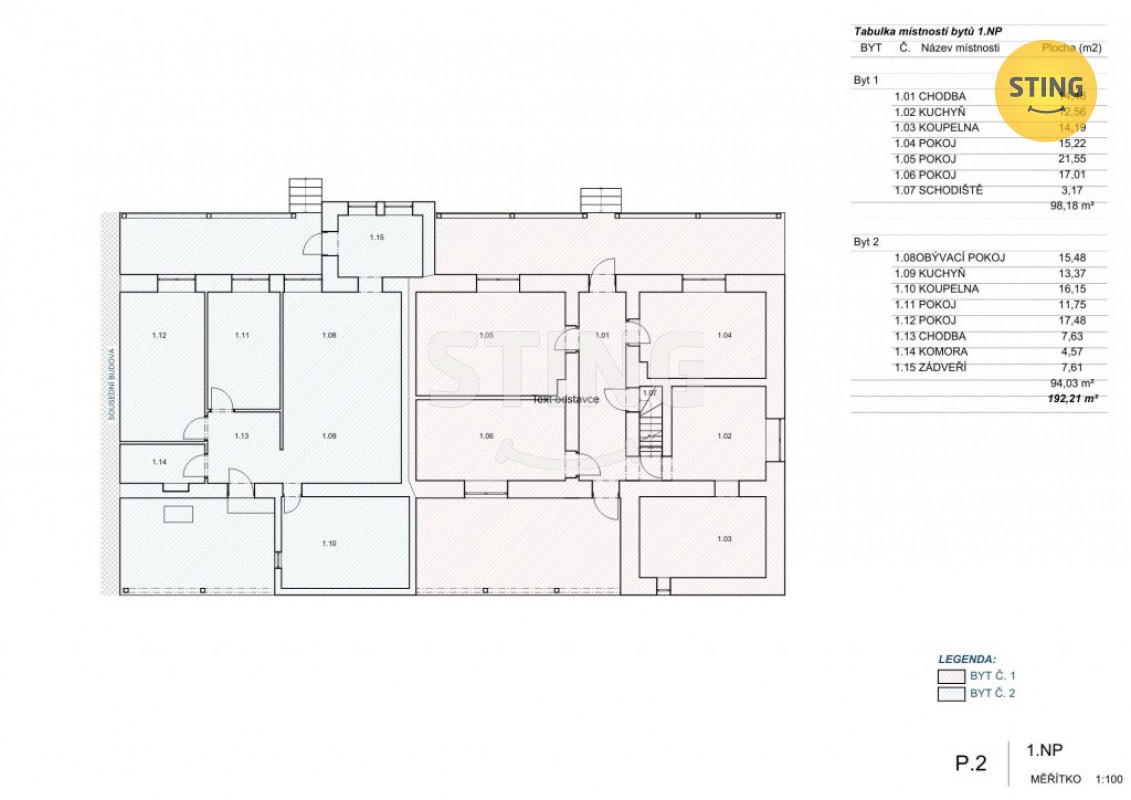
Nabízíme k prodeji rodinný dům o celkové obytné ploše 192 m² se dvěma samostatnými bytovými jednotkami, situovaný v klidné části Dolního Žukova. Dům nabízí výjimečnou kombinaci soukromí, prostoru a flexibility využití – ideální jak pro vícegenerační bydlení, tak jako investice k pronájmu.
V domě se nachází pouze dvě bytové jednotky, každá s vlastním vstupem, což zajišťuje vysoký komfort a nezávislost bydlení. Pozemek o velikosti 1952 m².
Byt 3+1 o užitné ploše 98 m² nabízí dvě zastřešené terasy, půdní prostor, garáž, parkovací stání, velmi prostornou koupelnu a pozemek o výměře 416 m² určený k užívání k této jednotce.
Byt 3+kk o užitné ploše 94,2 m² disponuje dvěma zastřešenými terasami, dvěma vstupy, půdním prostorem, přístřeškem pro dvě vozidla, zahradním domkem a venkovním zázemím před i za domem.
Rodinný dům i obě bytové jednotky prošly kompletní rekonstrukcí v roce 2025, která zahrnovala nové rozvody, podlahy, omítky, modernizaci koupelen, novou fasádu, plastová okna i plechovou střešní krytinu.
Nemovitost nabízí široké možnosti využití – komfortní rodinné bydlení, vícegenerační soužití, kombinaci vlastního bydlení a pronájmu, případně čistě investiční záměr. Lokalita poskytuje klidné prostředí s výbornou dostupností a kompletní občanskou vybaveností v dosahu.
Tento dům je ideální volbou pro klienty, kteří hledají nemovitost s nadstandardním prostorem, soukromím a variabilitou využití, a zároveň chtějí zůstat v rámci města.
Pro více informací nebo domluvení prohlídky mě neváhejte kontaktovat.
| Cena: | 10 490 000 Kč |
| Číslo zakázky: | REALITYMIX-134268 |
Podrobné informace
- Poloha objektu: řadový
- Druh objektu: cihlová
- Stav objektu: velmi dobrý
- Počet podlaží objektu: 2
- Typ domu: přízemní
- Zastavěná plocha: 257 m²
- Plocha parcely: 1952 m²
- Užitná plocha: 387 m²
- Umístění objektu: okraj obce
- Energetická náročnost budovy: G - Mimořádně nehospodárná
- Energetický ukazatel podle vyhlášky: č. 148/2007 Sb.
Právní rádce
-
Detail
V tomto článku shrneme nejdůležitější věci, které byste si měli promyslet, pokud se chystáte prodat svou nemovitost a chcete, abyste s kupujícím nemusel následně řešit vzniklé problémy.
Jako prodávající nesete rizika spojená nejen se samotným obchodem, ale i se stavem nemovitosti v době prodeje a pro minimalizaci rizik, je dobré se zamyslet nad uvedenými oblastmi.
-
Detail
Realitní makléř má své nezastupitelné místo v realitním obchodu. Realitním makléřem nemyslím nevzdělané jelito, které absolvovalo dvoudenní školení a ví, jak se nahraje inzerát na inzertní portál.
Realitním makléřem, který se Vám skutečně vyplatí, je zkušený profesionál, který je schopen Vám dobře poradit jak prodat za co nejvíc a s nejmenším rizikem a hlavně je Vás schopen obratně provést celým realitním obchodem.