Prodej - dům/vila, 156 m²
Václavská, Chomutov
12 200 000 KčProdej - dům/vila, 156 m²
Václavská, Chomutov
Dvougenerační rodinný dům, dvojgaráž, zahrada, Václavská, Chomutov
Na první pohled zaujme svou nadčasovou architekturou, kterou v roce 1975 navrhl známý architekt Odon Brumeisen. Ten byl proslulý osobitým stylem a netradičními řešeními a přesně takový je i tento dům: vysoké stropy, čisté linie, velkorysé prosvětlení a moderní funkcionalistická kostka, která působí překvapivě současně i po desítkách let.
Výjimečná lokalita
Dům stojí na klidném a velmi praktickém místě.
V bezprostřední blízkosti je škola, školka, centrum města a zároveň je jen pár minut pěšky do krásného Bezručova údolí, ideálního pro procházky, sport i relax. Rodiny s dětmi zde najdou skutečně vše, co pro pohodový každodenní život potřebují.
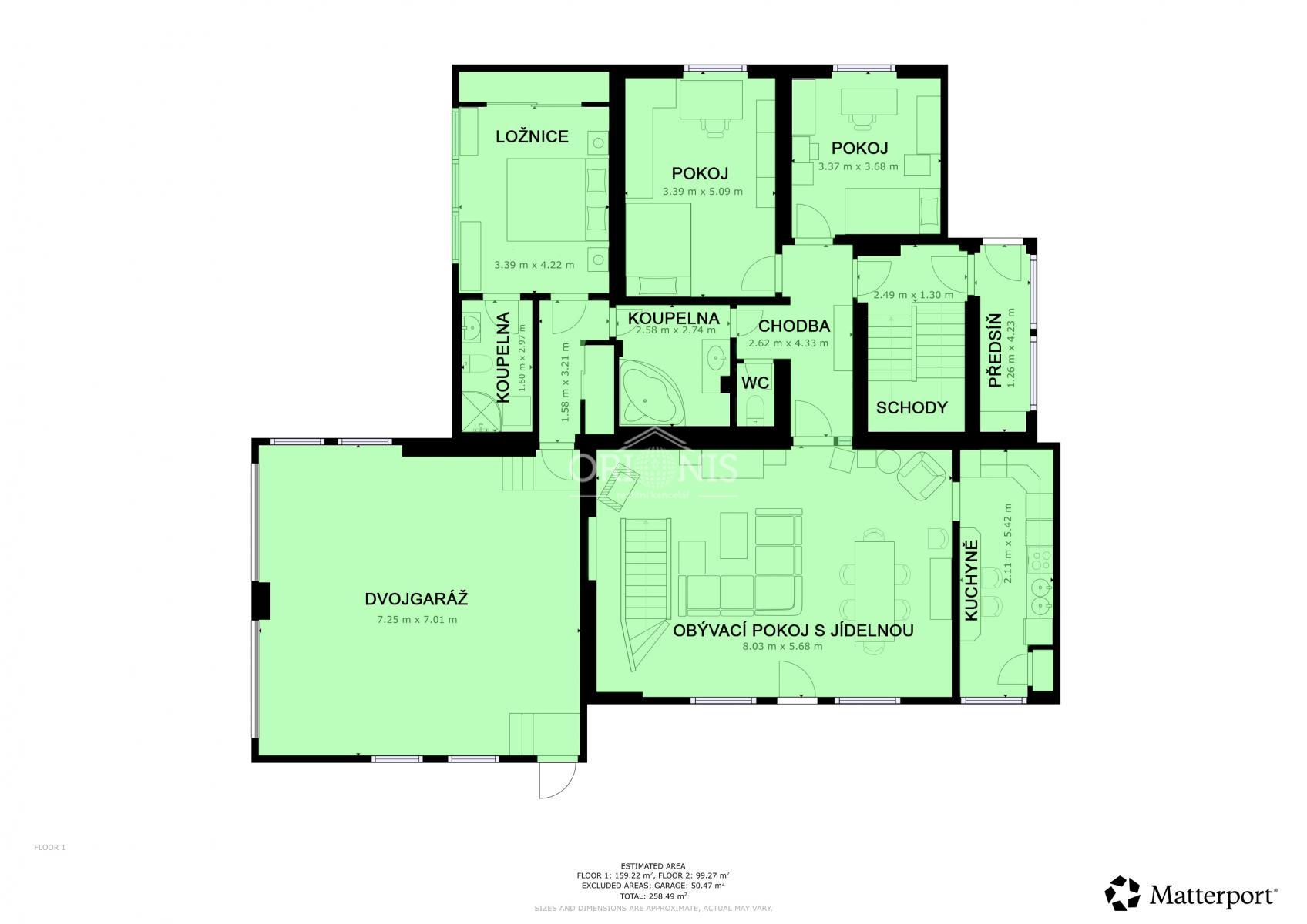
Dispozice a využití
Dům je plně dvougenerační a celý podsklepený, což výrazně zvyšuje jeho využitelnost.
Velkou výhodou je přímý vstup z dvojgaráže přímo do domu, což oceníte zejména v zimě a dešti.
Přízemí tvoří prostorný a světlý byt s velkým obývacím pokojem a přímým vstupem na zahradu.
1. nadzemní podlaží nabízí samostatnou bytovou jednotku původně využívanou rodiči, ideální pro děti, prarodiče, hosty nebo jako spojení bydlení a podnikání.
K dispozici jsou také víceúčelové místnosti jako technická místnost, sklad, pracovna/kancelář, a několik koupelen i samostatných toalet.
Technický stav a rekonstrukce
1985 přístavba dvojgaráže
20052006 kompletní rekonstrukce domu
2010 zateplení a nová fasáda
Vytápění domu: nový kondenzační plynový kotel, krb v obývacím pokoji
Celková zastavěná plocha činí 236 m, zahrada má 453 m a je přístupná přímo z obývacího pokoje ideální pro rodinné posezení, relax i dětské hry. Pozemek je přitom velmi příjemně oddělený od okolí, takže nabízí soukromí.
| Cena: | 12 200 000 Kč |
| Poznámka: | cena včetně právnického servisu |
| Číslo zakázky: | REALITYMIX-6259 |
Podrobné informace
- Poloha objektu: samostatný
- Druh objektu: cihlová
- Stav objektu: po rekonstrukci
- Počet podlaží objektu: 2
- Typ domu: patrový
- Zastavěná plocha: 236 m²
- Plocha parcely: 689 m²
- Užitná plocha: 156 m²
- Umístění objektu: centrum obce
- Doprava: MHD
- Elektřina: Elektro - 400 V
- Voda: Zdroj pro celý objekt
- Telekomunikace: Internet
- Plyn: Individuální
- Topení: Ústřední - plynové
- Odpad: Kanalizace
- Energetická náročnost budovy: D - Nevyhovující
Právní rádce
-
Detail
V tomto článku shrneme nejdůležitější věci, které byste si měli promyslet, pokud se chystáte prodat svou nemovitost a chcete, abyste s kupujícím nemusel následně řešit vzniklé problémy.
Jako prodávající nesete rizika spojená nejen se samotným obchodem, ale i se stavem nemovitosti v době prodeje a pro minimalizaci rizik, je dobré se zamyslet nad uvedenými oblastmi.
-
Detail
Realitní makléř má své nezastupitelné místo v realitním obchodu. Realitním makléřem nemyslím nevzdělané jelito, které absolvovalo dvoudenní školení a ví, jak se nahraje inzerát na inzertní portál.
Realitním makléřem, který se Vám skutečně vyplatí, je zkušený profesionál, který je schopen Vám dobře poradit jak prodat za co nejvíc a s nejmenším rizikem a hlavně je Vás schopen obratně provést celým realitním obchodem.