Prodej - dům/vila, 406 m²
Na Bělidle, Chomutov
8 800 000 KčProdej - dům/vila, 406 m²
Na Bělidle, Chomutov
Prodej bytového domu v centru Chomutova
Hledáte zajímavou příležitost k investici, bydlení nebo obojí? Nabízíme vám ke koupi bytový dům s velkým potenciálem v atraktivní lokalitě města Chomutov, na adrese Na Bělidle 1066. Tento dům představuje ideální kombinaci prostoru, možností přestavby a kvalitní polohy.
Základní informace o nemovitosti:
- Typ nemovitosti: Bytový dům
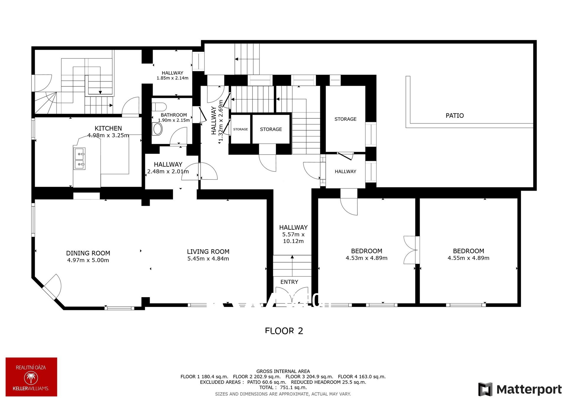
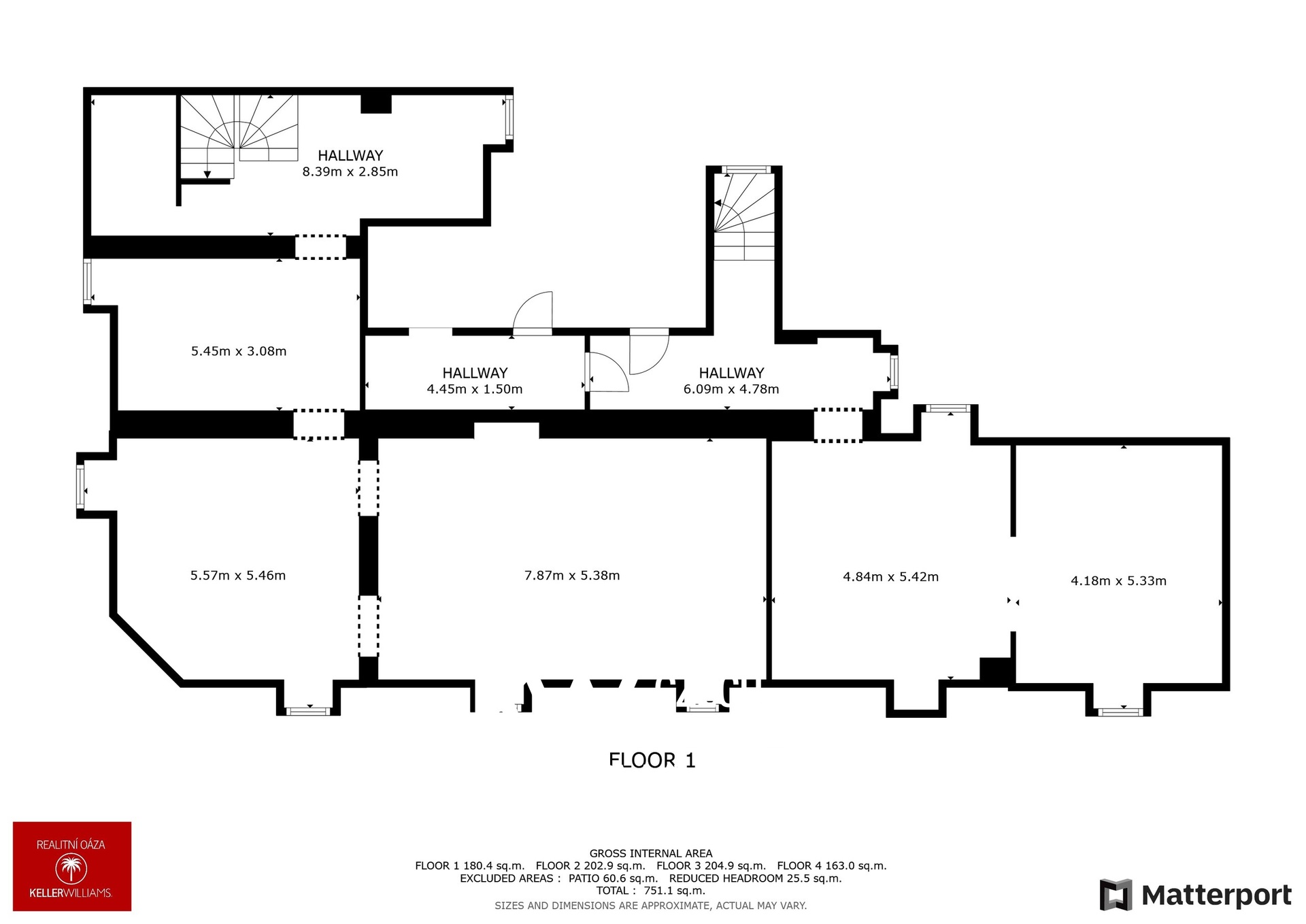
- Dispozice: 3 bytové jednotky, 1 nebytová jednotka, sklepy, půda, dvorek
- Aktuální užitná plocha 406 m², možnost rozšíření
- Lokalita: Chomutov, Na Bělidle 1066
- Stav objektu: Před rekonstrukcí
Tento bytový dům je ideální volbou pro investory, kteří hledají zajímavou nemovitost s možností úprav a dalšího využití. Dům nabízí tři bytové jednotky, z nichž jedna je aktuálně pronajata s platnou nájemní smlouvou do konce roku 2025. Navíc je k dispozici nebytová jednotka, která může být využita například jako komerční prostor nebo kancelář.
Dům má k dispozici také sklepní prostory, rozlehlou půdu, která skýtá potenciál pro vestavbu dalších bytů, a dvorek, který lze využít pro rekreační účely.
Stav a možnosti využití:
Nemovitost je v současném stavu před rekonstrukcí, což vám umožňuje přizpůsobit dům přesně vašim požadavkům – ať už jde o kompletní renovaci stávajících bytů, vybudování nových obytných prostor na půdě nebo využití nebytové jednotky pro podnikání. Pro zájemce máme připravené předběžné informace o možném dalším využití této jedinečné nemovitosti. Stačí nás kontaktovat a rádi vám je zašleme.
Výhody a lokalita:
- Nemovitost se nachází v klidné části Chomutova s veškerou občanskou vybaveností v blízkém okolí – školy, obchody, restaurace, zdravotnická zařízení i dopravní spojení.
- Díky dispozicím objektu a stavu před rekonstrukcí je dům ideální pro investory hledající nemovitost s možností dalšího rozvoje.
- Dům bude při předání vyklizený – včetně sklepů, půdy a společných prostor.
Virtuální a video prohlídka:
Pro lepší představu o nemovitosti jsme pro vás připravili virtuální prohlídku, kterou zašleme na vyžádání.
Pro zájemce můžeme zajistit hypoteční úvěr za nejvýhodnějších podmínek, případně bez prokazování příjmů.
Neváhejte nás kontaktovat pro více informací, sjednání osobní prohlídky nebo získání předběžných informací o možnostech dalšího využití. Tato nemovitost je příležitostí, kterou byste si neměli nechat ujít.
Vaše budoucnost začíná tady – Na Bělidle 1066, Chomutov.
| Cena: | 8 800 000 Kč |
| Číslo zakázky: | REALITYMIX-28140 |
Podrobné informace
- Poloha objektu: v bloku
- Druh objektu: cihlová
- Stav objektu: před rekonstrukcí
- Počet podlaží objektu: 3
- Typ domu: patrový
- Zastavěná plocha: 406 m²
- Plocha parcely: 294 m²
- Užitná plocha: 406 m²
- Umístění objektu: centrum obce
- Energetická náročnost budovy: F - Velmi nehospodárná
- Ukazatel energetické náročnosti budovy: 525 kWh/m²
- Energetický ukazatel podle vyhlášky: č. 78/2013 Sb.
Právní rádce
-
Detail
V tomto článku shrneme nejdůležitější věci, které byste si měli promyslet, pokud se chystáte prodat svou nemovitost a chcete, abyste s kupujícím nemusel následně řešit vzniklé problémy.
Jako prodávající nesete rizika spojená nejen se samotným obchodem, ale i se stavem nemovitosti v době prodeje a pro minimalizaci rizik, je dobré se zamyslet nad uvedenými oblastmi.
-
Detail
Realitní makléř má své nezastupitelné místo v realitním obchodu. Realitním makléřem nemyslím nevzdělané jelito, které absolvovalo dvoudenní školení a ví, jak se nahraje inzerát na inzertní portál.
Realitním makléřem, který se Vám skutečně vyplatí, je zkušený profesionál, který je schopen Vám dobře poradit jak prodat za co nejvíc a s nejmenším rizikem a hlavně je Vás schopen obratně provést celým realitním obchodem.