Hospodářské noviny
Hledat Přihlásit seMůj účet Předplatné
Přihlásit seMůj účet Předplatné
  • Home
  • Byznys
  • Zprávy
  • Názory
  • Tech
  • Reality
  • Investice
  • Podcasty
  • Hry
  • PročNe
  • Archiv
  • Další
  • Jak nastartovat sever
  • Speciály HN
  • Víkend
  • Magazín Stavba
  • Knihy HN
  • Eventy
  • Green Deal
  • Inovátoři roku
  • Top ženy
  • Nej banka / Nej pojišťovna
  • Předplatné
  • Redakce
  • Inzerce
  • Kontakty
  • Newslettery
  • Ekonom
  • Logistika
  • Právní rádce
  • Hry
  • Economia
  • BeNative
  • Nastavení účtu
  • Moje předplatné
  • Odhlásit se

Reality

  • Reality
  • Vyhledávání nemovitostí
  • Top realitní fondy
  • Magazín Stavba
Prodej - dům/vila, 182 m²

Prodej - dům/vila, 182 m²

Dobříš, Příbram

14 600 000 Kč
  • RealityMIX
  • Domy a vily
  • Prodej
  • Středočeský kraj
  • Příbram
0 z 5 (0 hodnocení)

Prodej - dům/vila, 182 m²

Dobříš, Příbram

14 600 000 Kč
G
Mimořádně nehospodárná
Výpis
Předchozí inzerát Další inzerát
1776455145-pyvpfdauxa-260319-fotoface-32
1776455143-qfmaisuysp-260319-fotoface-14
1776455145-sbzuuvgrwd-260319-fotoface-12

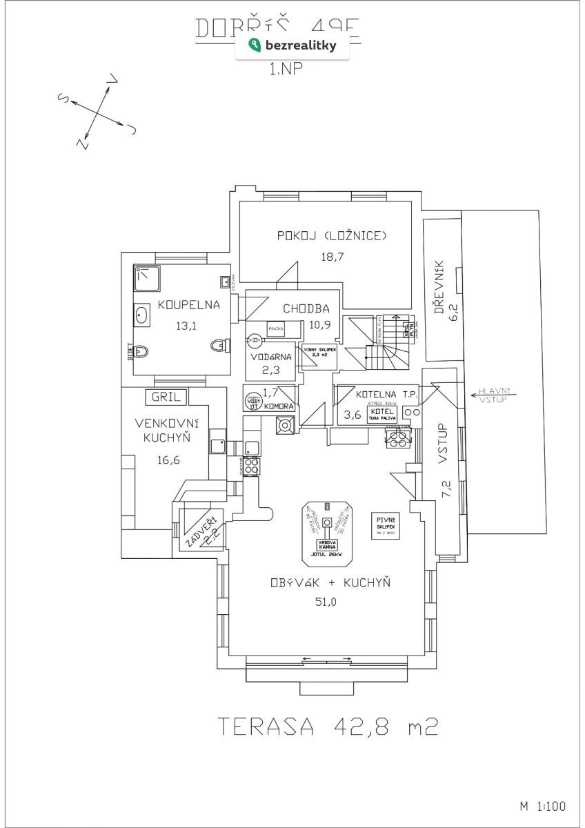
Prodej domu 182 m², pozemek 2.144 m²

Nabízíme prostorný rodinný dům 5+kk situovaný na okraji Dobříše v klidné lokalitě. Umístění na rozhraní zástavby a lesa přináší soukromí, výhledy do krajiny a každodenní kontakt s přírodou bez kompromisu v dostupnosti služeb – centrum Dobříše 8 minut, dálnice D4 5 minut, Praha (Barrandovský most) 30 minut. Nemovitost je velmi vhodná pro rodinu s dětmi díky bezpečnému prostředí, rozlehlému pozemku a zázemí pro každodenní život i volný čas.

Hlavní přednosti:
• zastavěná plocha 198 m²,
• udržovaná zahrada 1946 m²,
• velkorysá obytná místnost 51 m² + terasa 42 m² orientovaná na jihozápad,
• dvě koupelny, dvě kuchyňské zóny, relaxační místnost v nejvyšším patře,
• bazén, venkovní kuchyně, altán, dílna, kryté parkování, sklady,
• dvě studny, tři zdroje vytápění, septik, ČOV, retenční nádrž.

Původní chata prošla dvěma zásadními rekonstrukcemi s výrazným rozšířením. Výsledkem je domov, který působí útulně, ale zároveň překvapí svou velikostí a funkčností. Ve třech podlažích najdete atypické dispoziční řešení, dvě koupelny, dvě kuchyňské zóny a dokonce i relaxační místnost v nejvyšším patře. Dominantou domu je velká obytná místnost s kuchyní a vysokým stropem (51 m2), ze které je přímý vstup na velkou terasu (42 m2) orientovanou na jihozápad – ideální na dlouhé večery se sklenkou vína a výhledem do krajiny. Pozemek nabízí nejen soukromí, ale i bohaté zázemí: kryté parkování pro dva vozy, venkovní kuchyni s posezením a grilem, bazén (20 m³), altán, dětské hřiště, dílnu a prostorné sklady. Součástí domu je také vinný sklípek (2,3 m²) a malý pivní sklípek, oba přístupné zevnitř domu. Užitná plocha činí 183 m² bez venkovní kuchyně a zastřešené části.

Konstrukce domu kombinuje původní cihlové zdivo a novější část z Ytongu, obojí zateplené. Okna jsou dřevěná eurookna s dvojsklem. Střecha je částečně Bramac a částečně šindel, vše s kvalitní tepelnou izolací.

Vytápění radiátorů UT je řešeno dvěma zdroji: moderní kotel na tuhá paliva Atmos (účinnost 81-88 %) a plynový kotel Junkers (Pb). V obývací místnosti jsou krbová kamna Jotul s rozvodem tepla do patra.

Zásobování kvalitní pitnou vodou zajišťují dvě studny (vrtaná 23 m, kopaná 9 m). Odpad je veden do septiku (20 m³) s možností napojení na čističku a retenční nádrž (10 m³).

V oblasti je nově posílená elektrická infrastruktura vhodná pro další modernizaci (např. tepelné čerpadlo, elektromobilita).

V případě zájmu o prohlídku mě neváhejte kontaktovat.

Prosíme, realitní kanceláře nevolat.
Neplatíte žádné provize ani poplatky.
Nemovitost je v soukromém vlastnictví bez právních vad. Tato nemovitost je určena výhradně přímým zájemcům o koupi. Na inzerát můžete také reagovat přímo na webu Bezrealitky.
Cena: 14 600 000 Kč  
Číslo zakázky: REALITYMIX-1013718

Podrobné informace

  • Poloha objektu: samostatný
  • Druh objektu: cihlová
  • Stav objektu: velmi dobrý
  • Počet podlaží objektu: 1
  • Typ domu: přízemní
  • Zastavěná plocha: 182 m²
  • Plocha parcely: 2144 m²
  • Užitná plocha: 182 m²
  • Sklep: 2 m²
  • Terasa: 42 m²
  • Ostatní: Garáž, Parkoviště
  • Energetická náročnost budovy: G - Mimořádně nehospodárná

Sdílej na:

Facebook     Twitter

Tisk nabídky (pdf)

  • (A4)
  • (A4)
  • (A4)
  • (A4)
  • (A5)

Poslat odkaz:

Právní rádce

Právní rádce
  • V tomto článku shrneme nejdůležitější věci, které byste si měli promyslet, pokud se chystáte prodat svou nemovitost a chcete, abyste s kupujícím nemusel následně řešit vzniklé problémy.

    Jako prodávající nesete rizika spojená nejen se samotným obchodem, ale i se stavem nemovitosti v době prodeje a pro minimalizaci rizik, je dobré se zamyslet nad uvedenými oblastmi.

    Detail
  • Realitní makléř má své nezastupitelné místo v realitním obchodu. Realitním makléřem nemyslím nevzdělané jelito, které absolvovalo dvoudenní školení a ví, jak se nahraje inzerát na inzertní portál.

    Realitním makléřem, který se Vám skutečně vyplatí, je zkušený profesionál, který je schopen Vám dobře poradit jak prodat za co nejvíc a s nejmenším rizikem a hlavně je Vás schopen obratně provést celým realitním obchodem.

    Detail
  • Detail
Chci vědět víc
Právní rádce

Mapa

* Umístění na mapě je na základě GPS informací dodaných realitní kanceláří.
* Pozice na mapě je pouze orientační.

Souhlas se zpracováním osobních údajů

Uživatel serveru Reality.hn.cz (dále jen „Server“) dostupného na internetové adrese (URL) https://realitymix.hn.cz, který provozuje společnost DALTEN media s.r.o., se sídlem Na Harfě 916/9a, Praha 9, 190 00, IČO: 271 35 306 (dále jen „Správce“) jako provozovateli tohoto Serveru uděluje svůj výslovný souhlas v souladu s ustanovením § 5 zákona č. 101/2000 Sb. O ochraně osobních údajů a o změně některých zákonů, v platném znění (dále jen „zákon o ochraně osobních údajů“), se zpracováním uživatelem poskytnutých osobních údajů a dalších dat.

Uživatel poskytuje Správci osobní údaje v rozsahu: jméno, příjmení, e-mailová adresa, telefonický kontakt a další data, a to z důvodu projeveného zájmu o nemovitost, kde prostřednictvím služby Serveru Správce osloví Uživatel inzerenta uvedeného v detailu nemovitosti - Bezrealitky s.r.o. (IČ 08063168) se zájmem o jeho služby.

Uživatel tyto osobní údaje poskytuje dobrovolně a bere na vědomí, že součástí služeb Správce, které Správce Uživateli poskytuje, je vyhledání všech Uživateli vyhovujících (dle parametrů - cena, typ nemovitosti, lokalita atd.) nemovitostí. Správce za tímto účelem provozuje aplikace Hlídací pes a newsletter. Tyto služby je možné z každého zaslaného emailu odhlásit. Souhlas se zpracováním osobních údajů Uživatel poskytuje Správci na dobu neurčitou s tím, že svůj udělený souhlas může Uživatel kdykoliv na drese správce info@realitymix.cz odvolat. Správce garantuje Uživateli i další práva uvedené v ustanovení §11 a §21 zákoba č. 101/200 Sb. Ve znění pozdějších předpisů. Více informací o zpracování údajů získáte zde (realitymix.cz/zasady-ochrany-osobnich-udaju)

Podobné nemovitosti

Prodej - dům/vila, 120 m² obrázek

Prodej - dům/vila, 120 m²

Bukovany, Příbram

10 990 000 Kč
Prodej - dům/vila, 112 m² obrázek

Prodej - dům/vila, 112 m²

Vysoká Pec, Příbram

10 390 000 Kč
Prodej - dům/vila, 112 m² obrázek

Prodej - dům/vila, 112 m²

Vysoká Pec, Příbram

10 390 000 Kč
Prodej - dům/vila, 112 m² obrázek

Prodej - dům/vila, 112 m²

Vysoká Pec, Příbram

11 200 000 Kč

Napsat zprávu prodejci

Prodej - dům/vila, 182 m²

Prodej - dům/vila, 182 m²

Dobříš, Příbram

14 600 000 Kč

Hospodářské noviny

© 1996-2026 Economia, a.s.

Hospodářské noviny (print)   ISSN 0862-9587
Hospodářské noviny (online) ISSN 2787-950X

Certifikováno
jti
Sledujte nás
Stáhněte si aplikaci HN
  • Kontakty
  • Tiráž redakce HN
  • Economia
  • Kariéra v HN
  • Ceník inzerce
  • Ochrana osobních údajů
  • Prohlášení o cookies
  • Nastavení soukromí
  • Všeobecné smluvní podmínky
  • Koupit / darovat předplatné
  • Eventy
  • Newslettery
  • RSS kanály
Autorská práva vykonává vydavatel. Bez písemného svolení vydavatele je zakázáno jakékoli užití částí nebo celku díla, zejména rozmnožování a šíření jakýmkoli způsobem, mechanickým nebo elektronickým, v českém nebo jiném jazyce. Bez souhlasu vydavatele je zakázáno též rozmnožování obsahu pro účely automatizované analýzy textů nebo dat podle ustanovení § 39c autorského zákona.