Prodej - dům/vila, 250 m²
Dolní Rožínka, Žďár nad Sázavou
2 450 000 KčProdej - dům/vila, 250 m²
Dolní Rožínka, Žďár nad Sázavou
Prodej hrubé stavby vícegeneračního RD se zahradou v obci Dolní Rožínka
Nové Město na Moravě je vzdáleno 16km, Bystřice n. Pernštejnem 8km.
Celková plocha pozemku činí 798m2, z toho aktuálně zastavěná plocha domu je cca 120m2.
Dům je nyní ve fázi hrubé stavby - rekonstrukce / rozšíření.
Vydáno stavební povolení, v ceně je k dispozici projekt a stavební dokumentace vč. PENB.
Veškeré IS + Cetin.
Možnost dvougeneračního bydlení, nebo dvou samostatných bytových jednotek 3+1 (příp. další v podkroví).
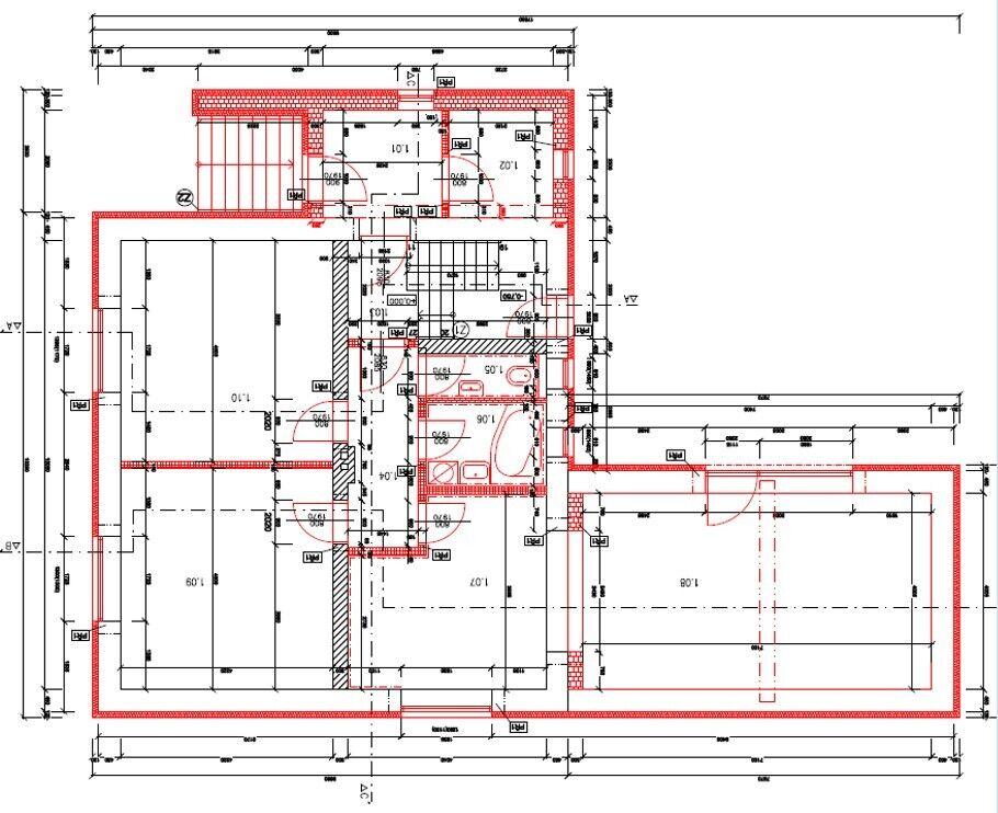
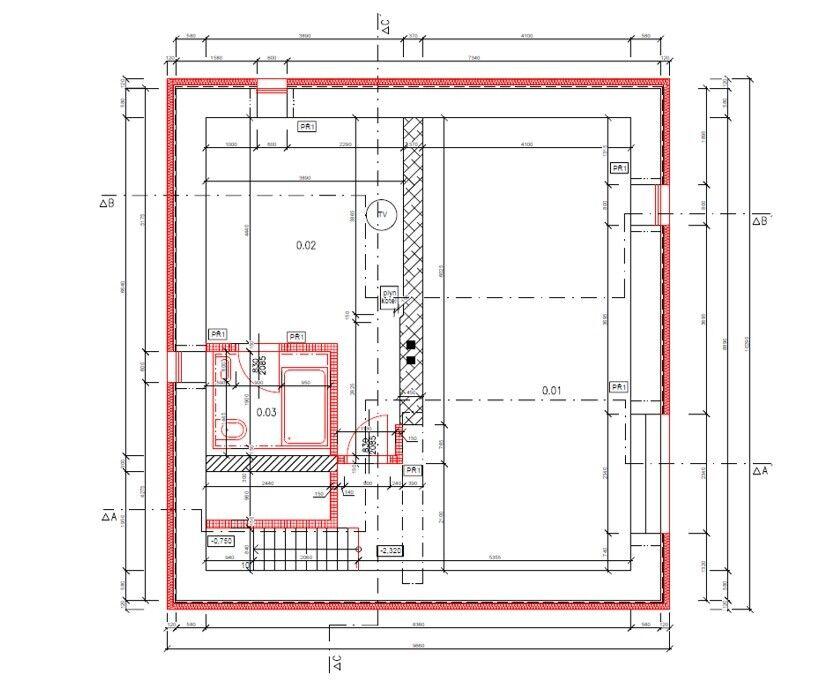
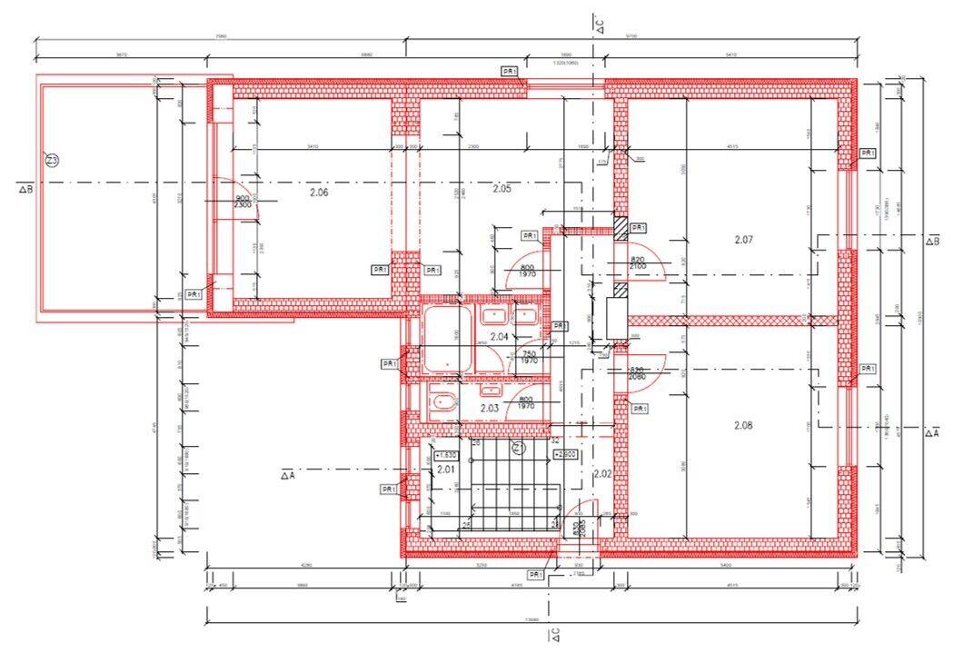
Dispozice :
1.PP 64m - kotelna 19,67m2, koupelna + WC 4,35m2, dílna / sklad 40m2
1.NP 112,2,m2 - schodiště 8,61m2, předsíň 5,34m2, šatna 4,66m2, hala 5,92m2, WC 2,07m2, koupelna 4,17m2, kuchyně 14,11m2 s výstupem na zahradu, obývací pokoj 28,44m2, 2x pokoj 19,44m2
2.NP 112,79m2m - schodiště 6,1m2, chodba 8,62m2, WC 2,52m2, koupelna 4,24m2, kuchyně 15,42m2 s výstupem na terasu 19,4m2, obývací pokoj 14,68m2, pokoj 21,15m2, pokoj 20,66m2.
3.NP (Podkroví) 45,5m2 - schodiště 9,5m2, koupelna / WC 3,7m2, prostor 32,3m2 (možnost využití herna / pracovna / úložný půdní prostor...)
Prohlídka možná po dohodě na tel. 605 931 999 nebo e-mailu holub@bravoreality.cz
| Cena: | 2 450 000 Kč |
| Poznámka: | Cena vč. včetně právního servisu |
| Datum k nastěhování: | 01.02.2026 |
| Číslo zakázky: | REALITYMIX-N00535 |
Podrobné informace
- Poloha objektu: samostatný
- Druh objektu: cihlová
- Stav objektu: ve výstavbě (hrubá stavba)
- Počet podlaží objektu: 4
- Typ domu: patrový
- Zastavěná plocha: 120100 m²
- Plocha parcely: 841 m²
- Užitná plocha: 250 m²
- Umístění objektu: klidná část obce
- Doprava: silnice, autobus
- Elektřina: Elektro - 230 V
- Voda: Voda - dálkový vodovod
- Telekomunikace: Internet
- Plyn: Plynovod
- Odpad: Kanalizace
- Energetická náročnost budovy: G - Mimořádně nehospodárná
- Energetický ukazatel podle vyhlášky: č. 264/2020 Sb.
Právní rádce
-
Detail
V tomto článku shrneme nejdůležitější věci, které byste si měli promyslet, pokud se chystáte prodat svou nemovitost a chcete, abyste s kupujícím nemusel následně řešit vzniklé problémy.
Jako prodávající nesete rizika spojená nejen se samotným obchodem, ale i se stavem nemovitosti v době prodeje a pro minimalizaci rizik, je dobré se zamyslet nad uvedenými oblastmi.
-
Detail
Realitní makléř má své nezastupitelné místo v realitním obchodu. Realitním makléřem nemyslím nevzdělané jelito, které absolvovalo dvoudenní školení a ví, jak se nahraje inzerát na inzertní portál.
Realitním makléřem, který se Vám skutečně vyplatí, je zkušený profesionál, který je schopen Vám dobře poradit jak prodat za co nejvíc a s nejmenším rizikem a hlavně je Vás schopen obratně provést celým realitním obchodem.