Prodej - dům/vila, 418 m²
J. A. Komenského, Duchcov, Teplice
10 990 000 KčProdej - dům/vila, 418 m²
J. A. Komenského, Duchcov, Teplice
Prodej dvoupatrového RD - Duchcov
Nabízíme k prodeji velkorysý rodinný dům o celkové užitné ploše 418,37 m2, nacházející se v klidné a bezpečné vilové čtvrti města Duchcov. Nemovitost stojí na pozemku o velikosti 1 050 m2, z toho 372 m2 tvoří zastavěná plocha a 640 m2 zahrada.
Dům je ve velmi dobrém stavu, je částečně podsklepen a nabízí hned několik možností využití:
- komfortní rodinné nebo vícegenerační bydlení,
- možnost kombinace bydlení a podnikání (ordinace, kanceláře, služby),
- investiční příležitost stabilní výnos z pronájmu,
- kombinace vlastního bydlení a částečného pronájmu (např. 1. patro a podkroví pro rodinu, přízemí k pronájmu).
Lokalita
Dům se nachází v prestižní části města Duchcov vilová čtvrť v ulici J. A. Komenského. Tiché, bezpečné prostředí s výbornou občanskou vybaveností: v těsné blízkosti nemocnice, obchodů a parku.
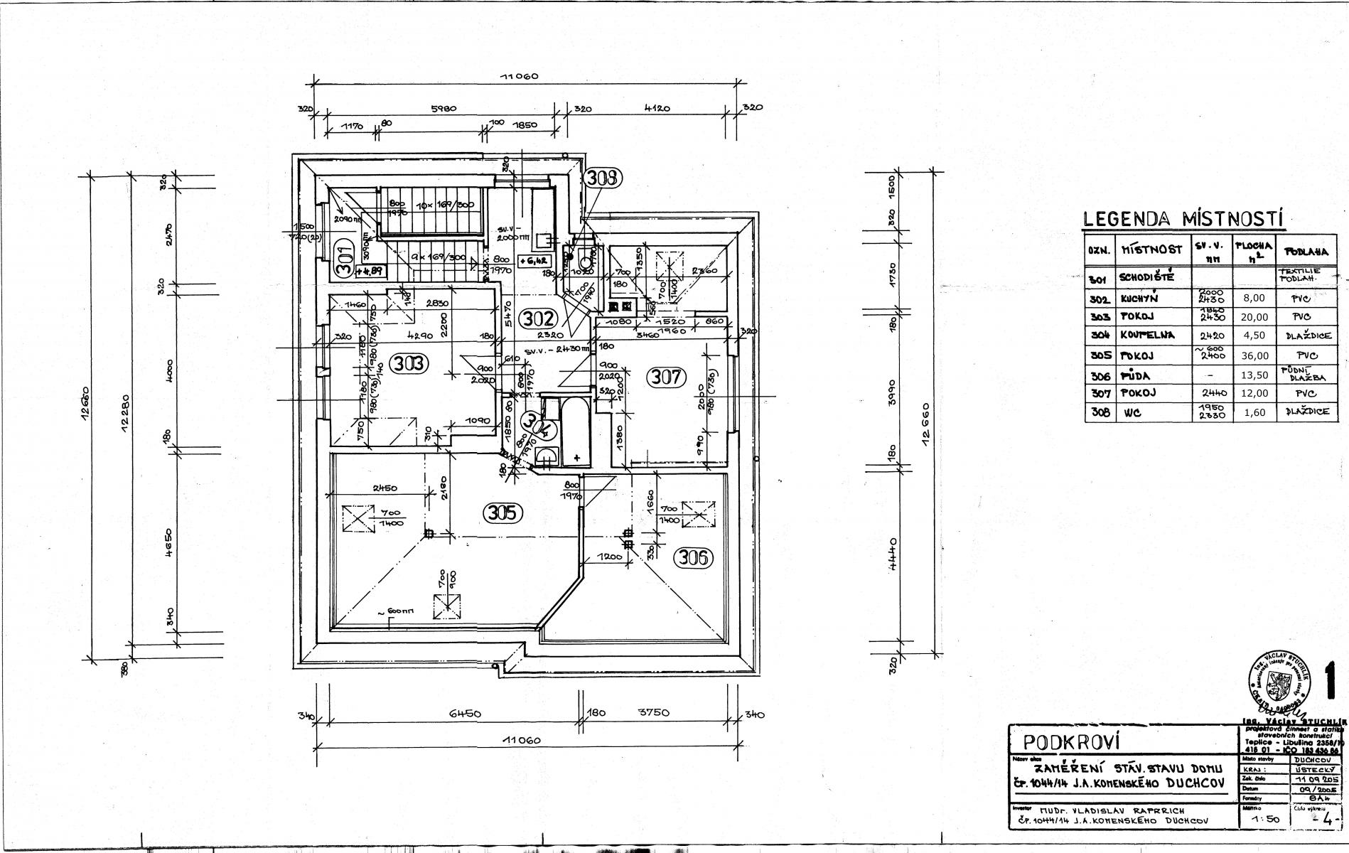
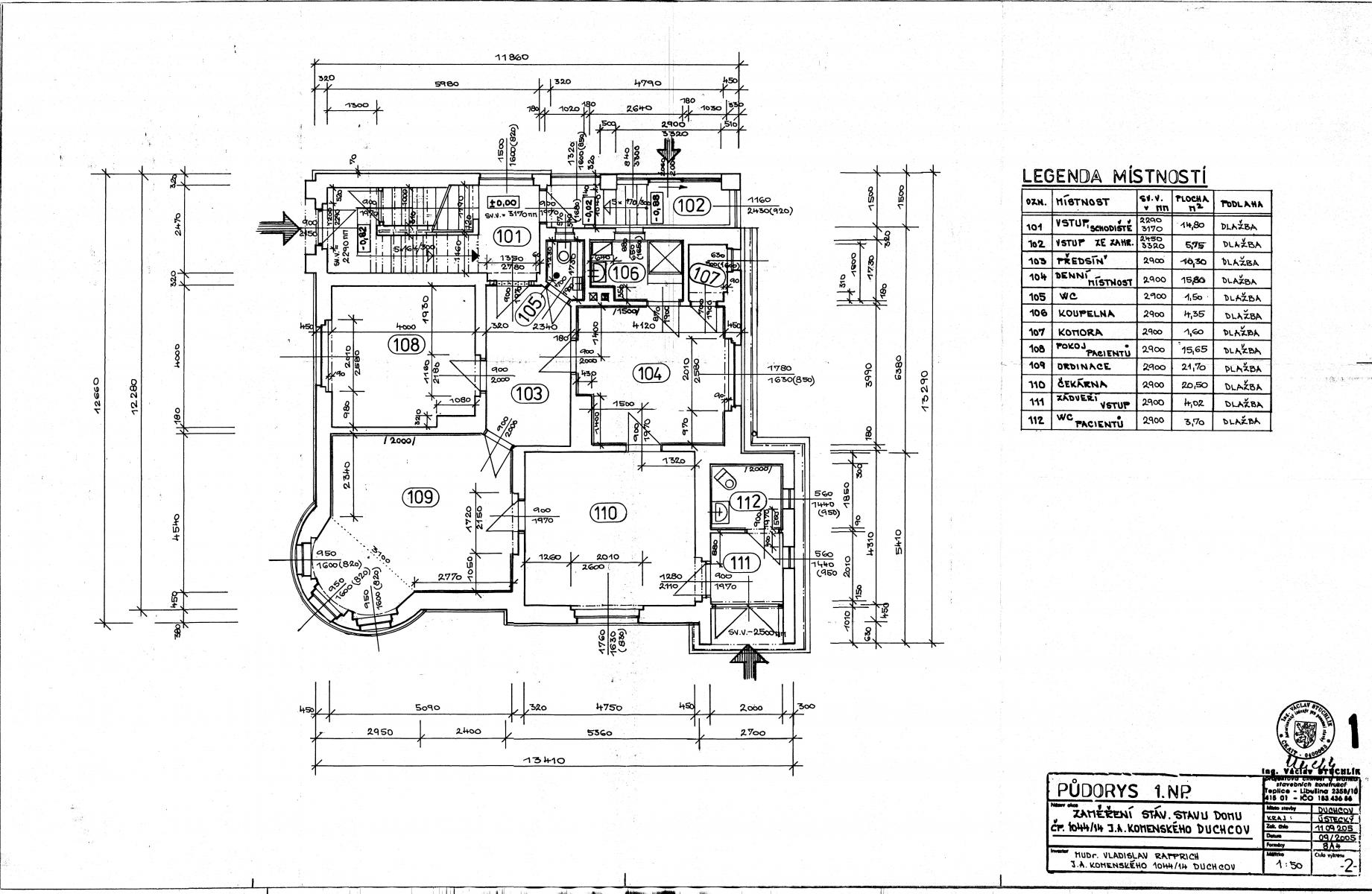
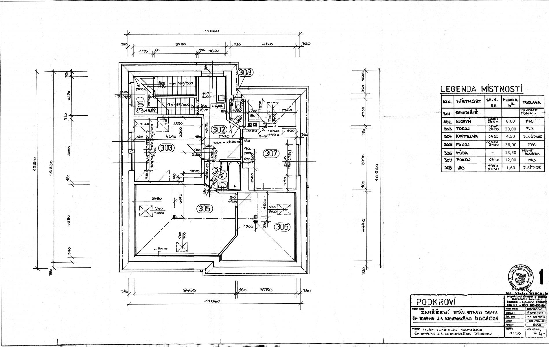
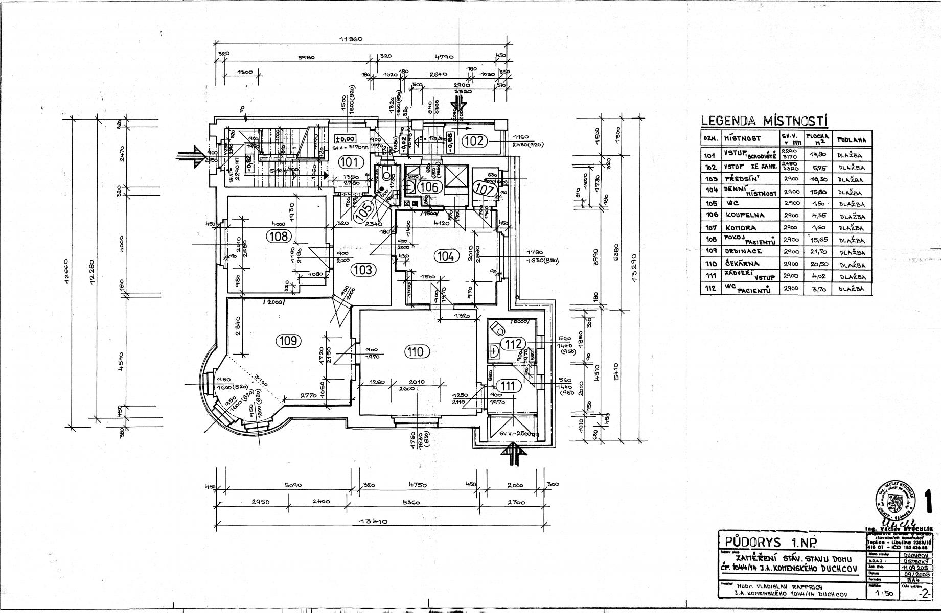
Dispozice
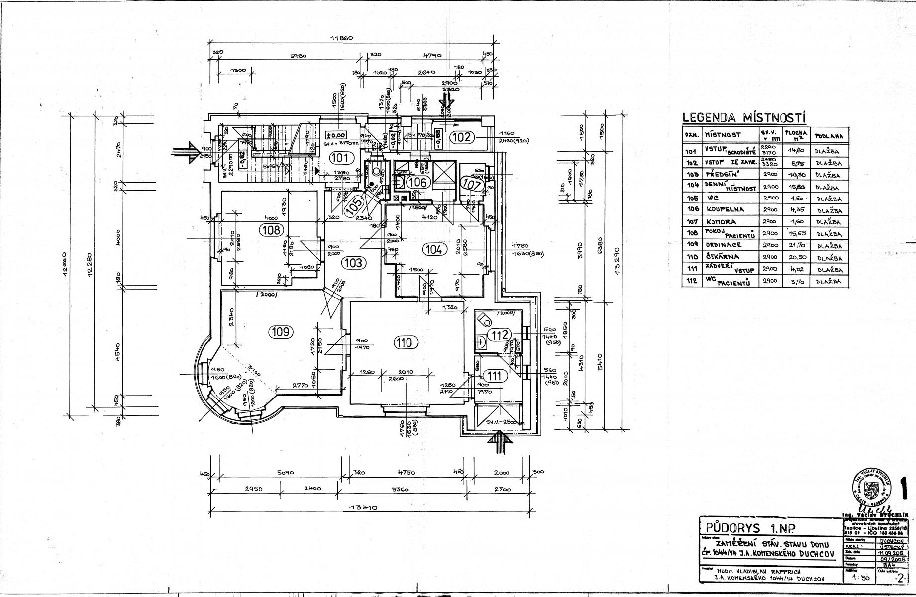
- sklep (46 m2): 3 místností.
- přízemí (119,7 m2): 4 místnosti, 2x WC, koupelna, chodba, komora, zimní zahrada. Dlouhodobě sloužilo jako ordinace se samostatným vstupem (možnost ponechat vybavení).
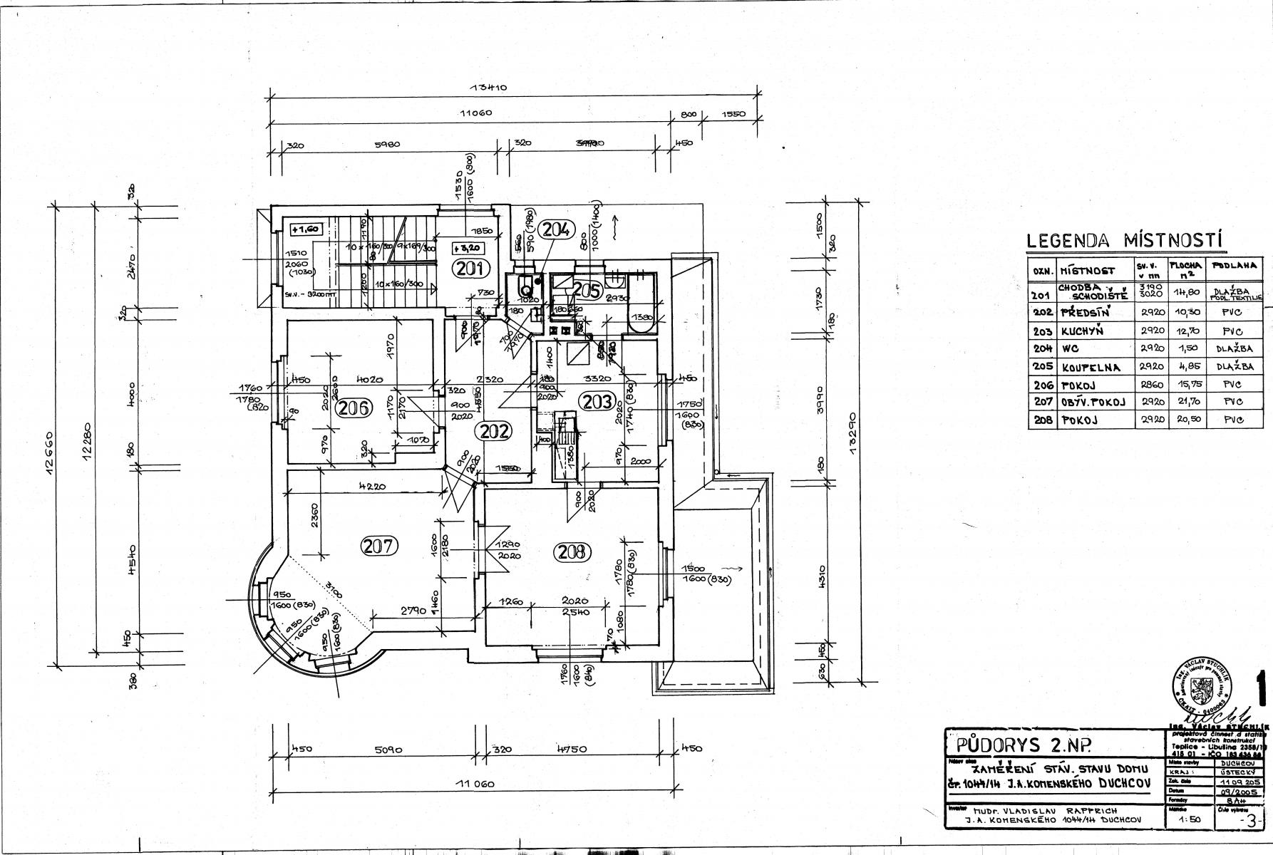
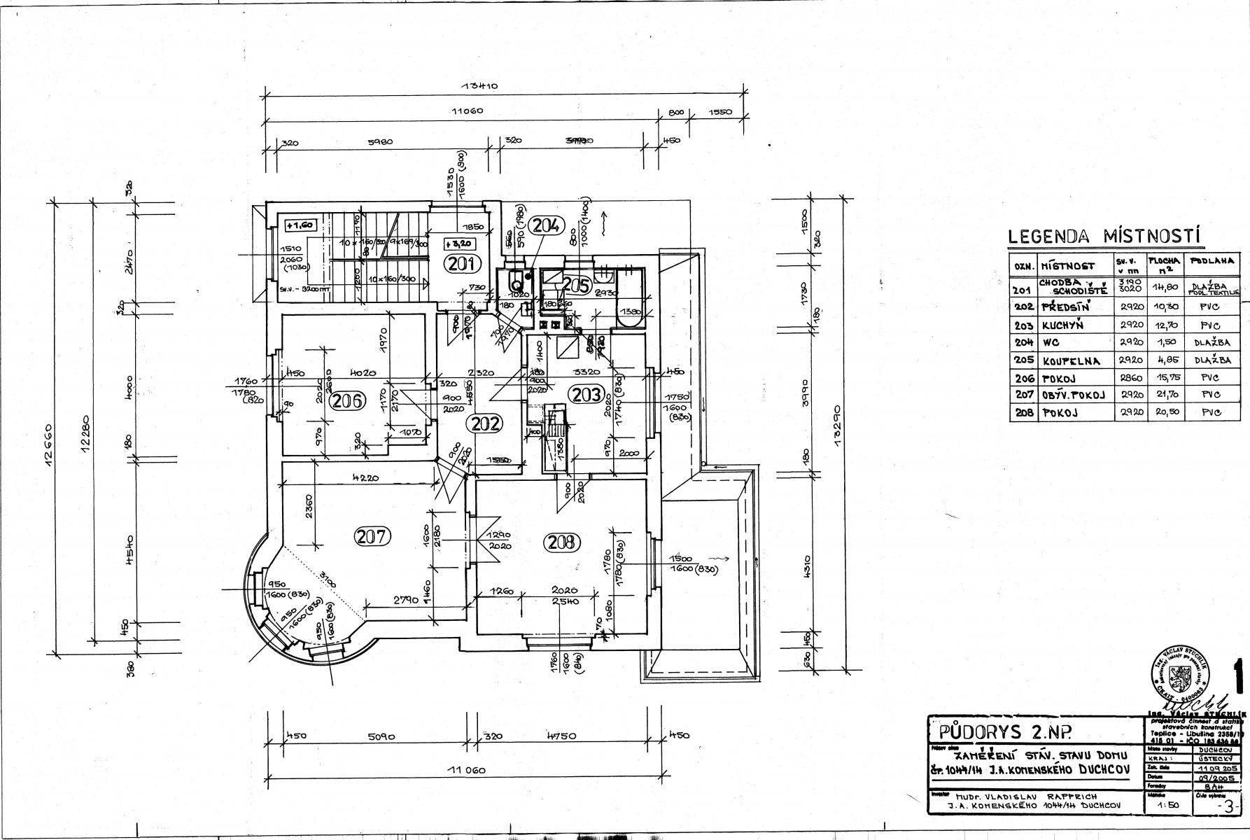
- 1. patro (102,1 m2): 3 místnosti, kuchyně, koupelna, WC, chodba plnohodnotná bytová jednotka.
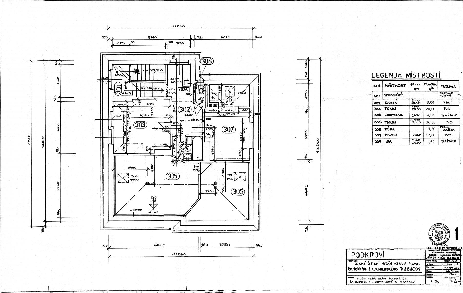
- podkroví (95,6 m2): 4 místnosti, kuchyňský kout v chodbě, koupelna, WC další samostatná bytová jednotka.
Součástí prodeje jsou také dvě garáže dvougaráž (40 m2) s vraty na dálkové ovládání a samostatná garáž (15 m2).
Na zahradě o ploše 640 m2 se nachází skleník a bazén (vyžadující renovaci), vzrostlé stromy a okrasné keře.
Celková obytná plocha činí 317 m2, podlahová 363,37 m2.
Vybavení a technické údaje
- přípojky: elektřina, plyn, vodovodní řád, kanalizace,
- 2 plynoměry (samostatně pro přízemí a pro zbytek domu),
- 2 elektroměry,
- klimatizace v přízemí a podkroví,
- dům ve velmi dobrém technickém stavu, bez zásadních závad.
Náklady
- přízemí: cca 5 000 Kč/měs. plyn, 2 000 Kč/měs. elektřina, 2 000 Kč/měs. voda (orientační částky dle aktuálního způsobu využití),
- 1. patro a podkroví: cca 5 000 Kč/měs. plyn, 1 800 Kč/měs. elektřina, 1 000 Kč/měs. voda.
Výnos z pronájmu
- přízemí: 16 000 Kč/měs.,
- první patro: 16 000 Kč/měs.,
- podkroví: 14 000 Kč/měs.
Celkový roční výnos činí cca 552 000 Kč, což pokryje podstatnou část případné hypoteční splátky.
| Cena: | 10 990 000 Kč |
| Číslo zakázky: | REALITYMIX-5389MI |
Podrobné informace
- Poloha objektu: samostatný
- Druh objektu: cihlová
- Stav objektu: velmi dobrý
- Počet podlaží objektu: 3
- Typ domu: patrový
- Zastavěná plocha: 372 m²
- Plocha parcely: 1052 m²
- Užitná plocha: 418 m²
- Sklep: 46 m²
- Umístění objektu: klidná část obce
- Elektřina: Elektro - 230 V, Elektro - 400 V
- Voda: Zdroj pro celý objekt
- Telekomunikace: Telefon, Internet
- Plyn: Individuální, Plynovod
- Topení: Ústřední - plynové
- Odpad: Kanalizace
- Energetická náročnost budovy: D - Nevyhovující
Právní rádce
-
Detail
V tomto článku shrneme nejdůležitější věci, které byste si měli promyslet, pokud se chystáte prodat svou nemovitost a chcete, abyste s kupujícím nemusel následně řešit vzniklé problémy.
Jako prodávající nesete rizika spojená nejen se samotným obchodem, ale i se stavem nemovitosti v době prodeje a pro minimalizaci rizik, je dobré se zamyslet nad uvedenými oblastmi.
-
Detail
Realitní makléř má své nezastupitelné místo v realitním obchodu. Realitním makléřem nemyslím nevzdělané jelito, které absolvovalo dvoudenní školení a ví, jak se nahraje inzerát na inzertní portál.
Realitním makléřem, který se Vám skutečně vyplatí, je zkušený profesionál, který je schopen Vám dobře poradit jak prodat za co nejvíc a s nejmenším rizikem a hlavně je Vás schopen obratně provést celým realitním obchodem.