Prodej - dům/vila, 155 m²
Mladá Boleslav
6 180 000 KčProdej - dům/vila, 155 m²
Mladá Boleslav
Rodinný dům s velkým zázemím a pozemkem 906 m² v centru obce Horní Slivno
Nabízíme k prodeji původní rodinný dům v centru obce Horní Slivno (okres
Mladá Boleslav) s celkovou výměrou pozemků 906 m².
Nemovitost je určena ke kompletní rekonstrukci a není vhodná pro ty, kteří hledají hotové bydlení bez dalších investic. Pro nového majitele však může představovat zajímavou příležitost vytvořit si dům přesně podle vlastních představ. Dům nabízí zachované původní prvky a velkorysé místnosti s vysokými stropy, které dávají prostor pro citlivou rekonstrukci.
Nemovitost může být ideální také pro řemeslníky, podnikatele nebo milovníky
projektů s charakterem.
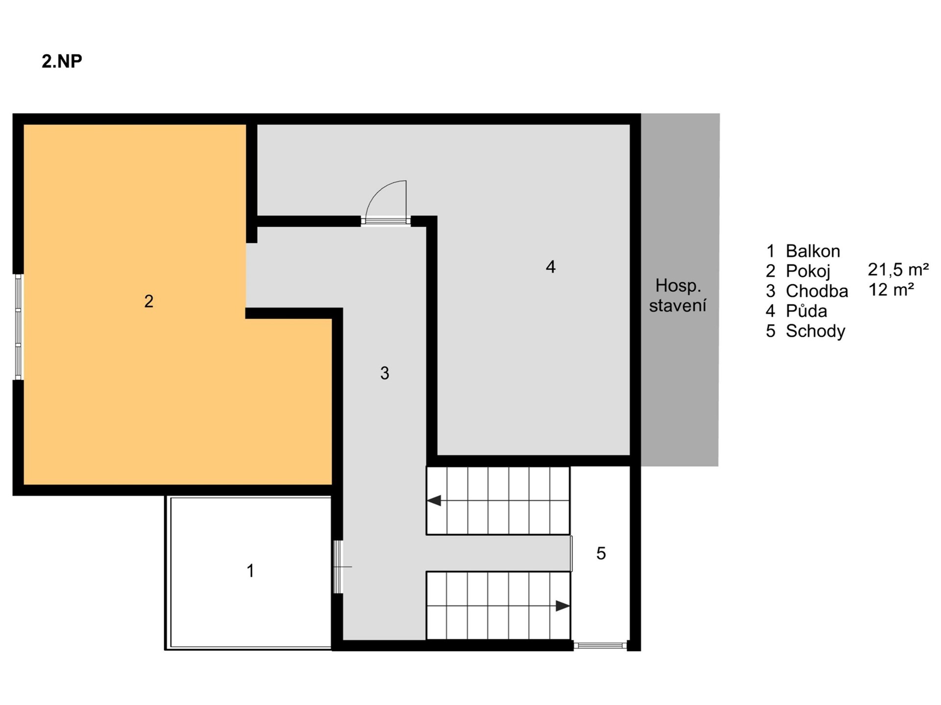
Obytná část domu nabízí přibližně 133 m² obytné plochy s dispozicí 4+1. Součástí je také půdní prostor o velikosti přibližně 40 m², který poskytuje další potenciál pro rozšíření obytné plochy.
Na obytnou část navazuje rozsáhlá hospodářská a technická část, která výrazně rozšiřuje možnosti využití celé nemovitosti. Dům díky velkorysé zastavěné ploše 225 m² nabízí zajímavý potenciál například pro vícegenerační bydlení nebo úpravu na dvě samostatné bytové jednotky.
Na pozemku se nachází také další samostatná historická stavba, kterou lze využít například jako dílnu, ateliér, sklad nebo zahradní domek.
Součástí nemovitosti je uzavřený dvůr, zahrada a navazující hospodářské
objekty, které poskytují dostatek prostoru pro bydlení, podnikání nebo realizaci vlastních projektů.
Pozemek má výhodnou rohovou polohu s možností dvou přístupů z místních komunikací, což rozšiřuje možnosti využití celé nemovitosti.
Technické informace:
• vodovodní přípojka
• vlastní studna
• vytápění kotlem na tuhá paliva
• ohřev vody elektrickým bojlerem
• elektřina v původním stavu
• plyn není do domu zaveden
Dům se nachází v centru obce, v klidné lokalitě s venkovským charakterem a
dobrou dostupností do Benátek nad Jizerou, Mladé Boleslavi i Prahy.
Výhodou je také občanská vybavenost v blízkém okolí, včetně školy v docházkové vzdálenosti.
Pokud hledáte nemovitost s charakterem, prostorem a potenciálem, může být
právě tato nabídka ideální příležitostí.
Pro více informací nebo sjednání prohlídky mě neváhejte kontaktovat.
| Cena: | 6 180 000 Kč |
| Poznámka: | včetně právního servisu a provize RK |
| Datum k nastěhování: | 28.05.2026 |
| Číslo zakázky: | REALITYMIX-976473 |
Podrobné informace
- Poloha objektu: samostatný
- Druh objektu: kamenná
- Stav objektu: před rekonstrukcí
- Počet podlaží objektu: 2
- Typ domu: patrový
- Zastavěná plocha: 225 m²
- Plocha parcely: 906 m²
- Zahrada: ano
- Užitná plocha: 155 m²
- Doprava: silnice
- Elektřina: Elektro - 230 V
- Voda: Zdroj pro celý objekt, Voda - dálkový vodovod
- Energetická náročnost budovy: G - Mimořádně nehospodárná
Právní rádce
-
Detail
V tomto článku shrneme nejdůležitější věci, které byste si měli promyslet, pokud se chystáte prodat svou nemovitost a chcete, abyste s kupujícím nemusel následně řešit vzniklé problémy.
Jako prodávající nesete rizika spojená nejen se samotným obchodem, ale i se stavem nemovitosti v době prodeje a pro minimalizaci rizik, je dobré se zamyslet nad uvedenými oblastmi.
-
Detail
Realitní makléř má své nezastupitelné místo v realitním obchodu. Realitním makléřem nemyslím nevzdělané jelito, které absolvovalo dvoudenní školení a ví, jak se nahraje inzerát na inzertní portál.
Realitním makléřem, který se Vám skutečně vyplatí, je zkušený profesionál, který je schopen Vám dobře poradit jak prodat za co nejvíc a s nejmenším rizikem a hlavně je Vás schopen obratně provést celým realitním obchodem.