Prodej - dům/vila, 84 m²
Šámalova, Horoušany, Praha-východ
8 800 000 KčProdej - dům/vila, 84 m²
Šámalova, Horoušany, Praha-východ
Prodej rodinného domu (bytové jednotky č. 2) 4+kk, Horoušany
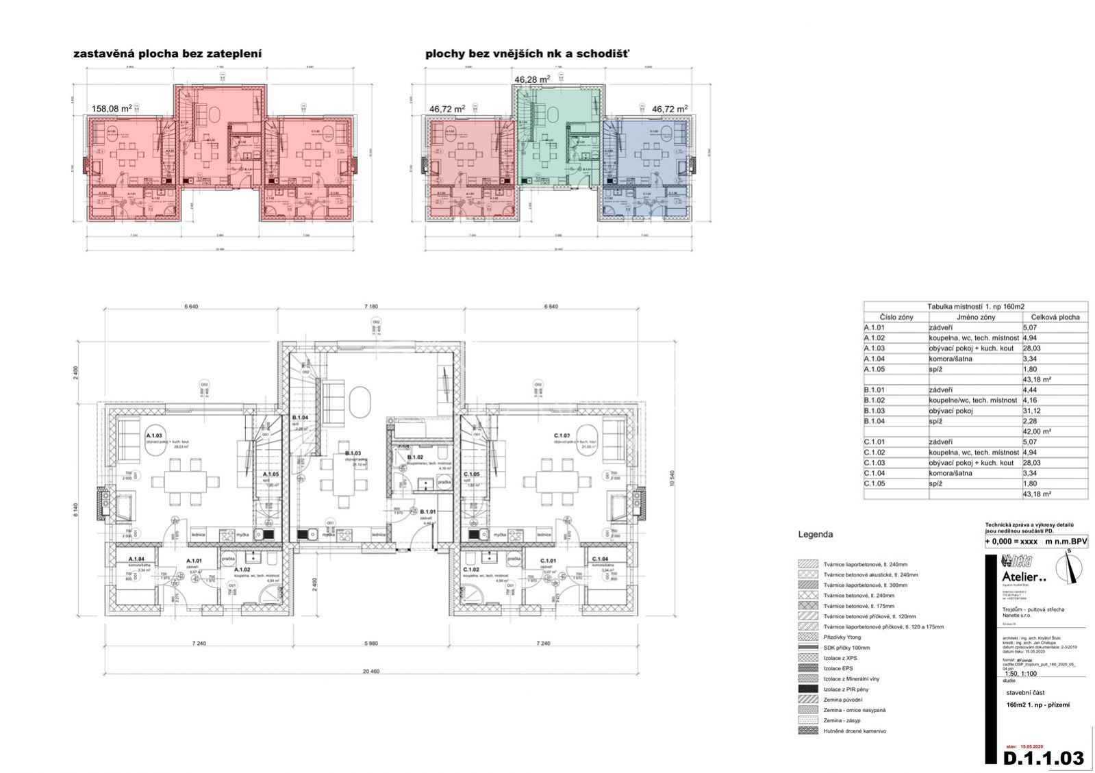
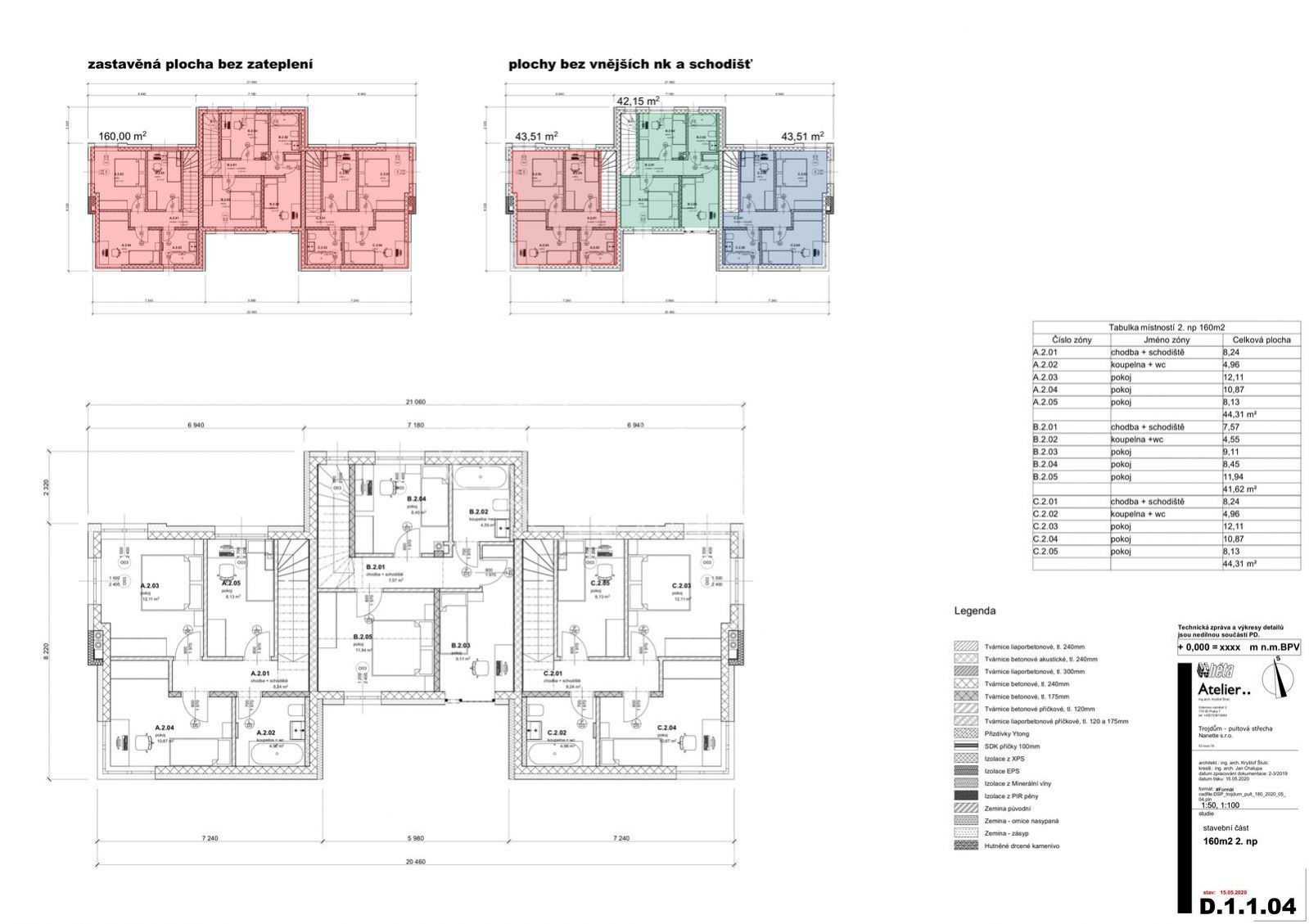
Dvoupodlažní rodinné domy o 3 bytových jednotkách v Horoušanech (okres Praha-východ) poskytují dostatek prostoru a soukromí i pro větší rodinu. Domy jsou situovány na širokých parcelách, které umožňují samostatný vjezd ke každé z bytových jednotek a jsou členěny jako 4+kk (od 84 m). Domy disponují zahradou a jedním parkovacím stáním na vlastním pozemku. Součástí je připojení na kanalizaci, elektřinu a vodovod.
Vytápění domu (elektrické podlahové topení v obou podlažích) i ohřev vody bude řešeno tepelným čerpadlem (za příplatek) a/nebo je možno využít krbové kamna, která jsou umístěna v obývacím pokoji. Vnitřní vybavení každé bytové jednotky si vyberete z široké nabídky podlahových krytin, obkladů koupelen, dlažeb, zařízení koupelen, přičemž vše je v kupní ceně nemovitosti v rámci standardů (cca 400 kč/m na podlahy, dlažba, obklady). Standardy domů jsou na vysoké úrovni. V rámci klientských změn je možné dohodnout úpravy dle konkrétních přání a požadavků klienta.
V prvním nadzemním podlaží se nachází vstupní hala, obývací pokoj s kuchyňským koutem a výstupem na zahradu a koupelna s WC. Obývací pokoj zútulňují krbová kamna. Ve druhém nadzemním podlaží jsou tři prostorné ložnice a druhá koupelna s vanou a s WC.
Na fasádách domu je uplatněna světlá škrábaná omítka v kombinaci se sklem, prostřední část domu je barevně odlišená, střecha je pultová plechová. Stavba je řešena jako zděná z tvárnic o tloušťce 240 mm u nosných stěn a 120 mm u příček. Celá stavba je usazena na monolitických betonových základových pásech.
Strop i střecha jsou konstrukčně řešeny systémovým stropem Livetherm o tloušťce 250 mm, stropní deska je uložena v mírném spádu na ní ležící pultové střechy. Obvodové stěny jsou zatepleny 160 mm EPS, střecha 360 mm EPS, vykonzolované části stropu zespoda 160 mm minerální vlny. Okna jsou plastová s izolačním dvojsklem.
Obec Horoušany leží v okrese Praha-východ, necelých 8 km od hranice Hlavního města Prahy, nedaleko Horních Počernic. Mateřská škola, na kterou obec rodičům přispívá, se nachází přímo v Horoušanech, základní škola v sousedních Jirnech a Úvalech. V Horoušanech najdeme i dětská hřiště a novou cyklostezku vedoucí až do sousedních Klánovic. Autobusovou dopravou se snadno dostanete do Úval či na metro Černý Most, v Úvalech je možné přestoupit na vlak do Prahy jedoucí na Masarykovo nádraží.
V inzerátu jsou použity jak vizualizace budoucího domu 4B, tak i fotografie již dokončeného domu z 2. etapy. Tento hotový dům je možné si prohlédnout po domluvě. V případě zájmu o prohlídku kontaktujte makléřku. K této nemovitosti máte připravené podrobné informace na: https://zuzanaradova.cz/horousany-4b
| Cena: | 8 800 000 Kč |
| Číslo zakázky: | REALITYMIX-202603 |
Podrobné informace
- Poloha objektu: řadový
- Druh objektu: cihlová
- Stav objektu: dobrý
- Počet podlaží objektu: 2
- Typ domu: patrový
- Zastavěná plocha: 42 m²
- Plocha parcely: 147 m²
- Užitná plocha: 84 m²
- Umístění objektu: okraj obce
- Doprava: silnice, autobus
- Odpad: Kanalizace
- Energetická náročnost budovy: B - Úsporná
Právní rádce
-
Detail
V tomto článku shrneme nejdůležitější věci, které byste si měli promyslet, pokud se chystáte prodat svou nemovitost a chcete, abyste s kupujícím nemusel následně řešit vzniklé problémy.
Jako prodávající nesete rizika spojená nejen se samotným obchodem, ale i se stavem nemovitosti v době prodeje a pro minimalizaci rizik, je dobré se zamyslet nad uvedenými oblastmi.
-
Detail
Realitní makléř má své nezastupitelné místo v realitním obchodu. Realitním makléřem nemyslím nevzdělané jelito, které absolvovalo dvoudenní školení a ví, jak se nahraje inzerát na inzertní portál.
Realitním makléřem, který se Vám skutečně vyplatí, je zkušený profesionál, který je schopen Vám dobře poradit jak prodat za co nejvíc a s nejmenším rizikem a hlavně je Vás schopen obratně provést celým realitním obchodem.
Mapa
Podobné nemovitosti
Prodej - dům/vila, 138 m²
Petra Jilemnického, Brandýs nad Labem, Praha-východ
8 900 000 Kč
Prodej - dům/vila, 141 m²
Krátká, Třemblat, Praha-východ
7 290 000 Kč
Prodej - dům/vila, 110 m²
Svojetická, Louňovice, Praha-východ
8 500 000 Kč
Prodej - dům/vila, 142 m²
Hlavní, Menčice, Praha-východ
8 550 000 Kč