Prodej - dům/vila, 79 m²
Záhlinice, Kroměříž
3 990 000 KčProdej - dům/vila, 79 m²
Záhlinice, Kroměříž
Prodej rodinného domu – Záhlinice u Hulína
Zastavěná plocha rodinného domu činí 108 m², garáž a dílna stojící v zdaní části pozemku má 77 m² a zahrada 382 m². Celková výměra pozemků je 567 m².
Napojení na inženýrské sítě: nemovitost je připojena na obecní kanalizaci, zdroj vody je zajištěn z místního pivovaru. Ohřev vody zajišťuje elektrický bojler. Vytápění domu je řešeno krbovými kamny na dřevo s výměníkem, přičemž teplo je rozváděno do radiátorů v jednotlivých místnostech.
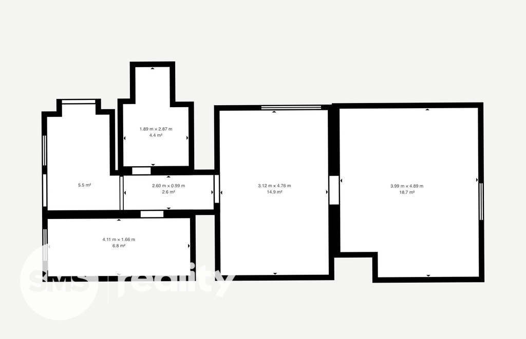
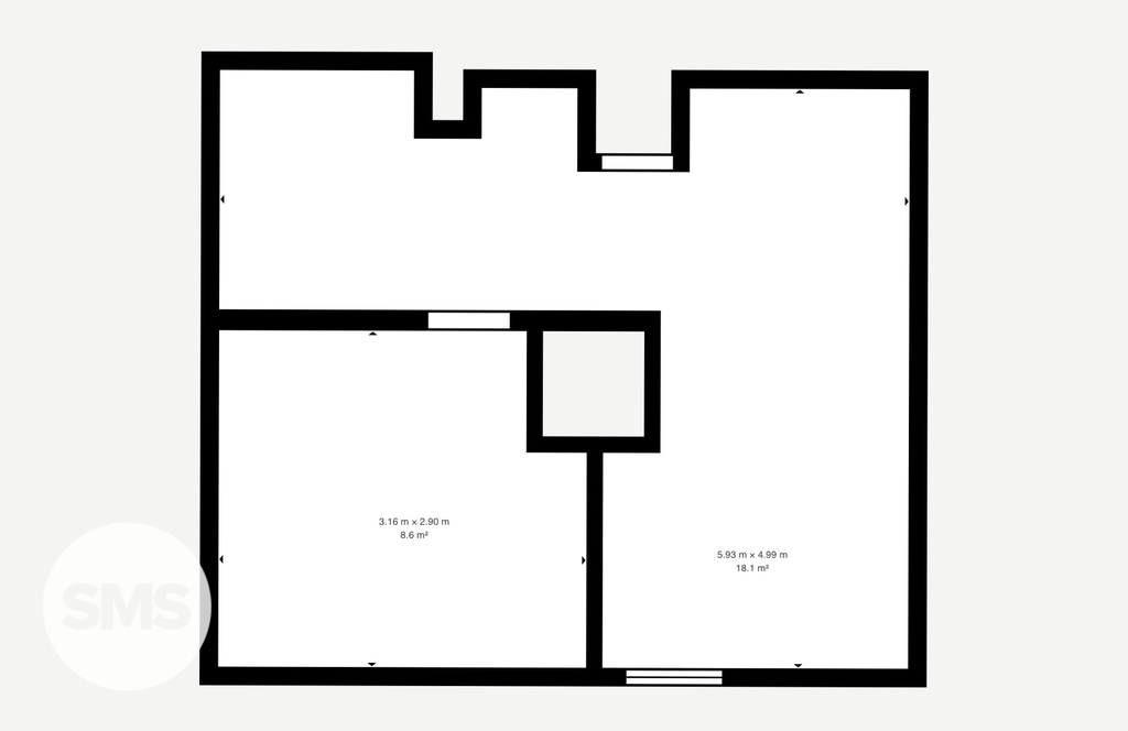
Dispozice a výměry místností:
Přízemí: vstupní prostor 5,5 m² navazující na chodbu o výměře 2,6 m², technická místnost 4,4 m², koupelna 6,8 m², kuchyně 14,9 m² a obývací pokoj o velikosti 18,7 m² (součástí obývacího pokoje je schodiště do druhého patra).
Druhé patro: ložnice 8,6 m² a dětský pokoj včetně chodby 18,1m².
Dům je v současném stavu vhodný k užívání a současně představuje ideální příležitost pro klienty, kteří si chtějí bydlení upravit podle vlastních představ, modernizovat dispozice či celkový standard domu.
Zajímavostí a zároveň dlouhodobě funkčním řešením je napojení domu na řád pitné vody z místního pivovaru, nikoli na obecní vodovod. Tento systém využívá více okolních domů a je dlouhodobě spolehlivý, což představuje kuriozitu.
Záhlinice jsou vyhledávanou lokalitou díky kombinaci venkovského klidu a výborné dopravní dostupnosti. Přímo v obci se nachází mateřská škola, obchod se smíšeným zbožím, restaurace, místní pivovar a možnosti sportovního i kulturního vyžití. Kompletní občanskou vybavenost nabízí nedaleký Hulín vzdálený přibližně 3 km, kde najdete základní školu, zdravotní středisko, lékárny, supermarkety, poštu, banky, sportoviště i široké spektrum služeb.
Dopravní dostupnost je jednou z hlavních předností této lokality. Hulín je významným železničním uzlem s přímými spoji do Přerova, Otrokovic, Zlína, Brna i Olomouce a je vzdálen pouhých několik minut jízdy autem. Z obce je zajištěno pravidelné autobusové spojení do Hulína a okolních obcí. Výborné je také silniční napojení – Hulín je vzdálen přibližně 3 km, Kroměříž asi 10 km, Přerov 15 km, Otrokovice 20 km a Zlín zhruba 25 km. V blízkosti se nachází nájezdy na dálnice D55 a D1.
Lokalita nabízí také široké pracovní příležitosti: v Hulíně se nacházejí průmyslové a logistické areály, v Otrokovicích významný zaměstnavatel Continental Barum, Kroměříž nabízí pracovní příležitosti ve službách, školství i zdravotnictví, Přerov je významným dopravním a průmyslovým centrem a Zlín poskytuje uplatnění v administrativním i výrobním sektoru.
Záhlinice představují ideální místo pro klidné rodinné bydlení s výbornou dostupností, blízkostí přírody a současně i potenciálem růstu hodnoty nemovitosti.
Pro více informací mě neváhejte kontaktovat. Ráda Vám sdělím další detaily a domluvím prohlídku.
| Cena: | 3 990 000 Kč |
| Datum k nastěhování: | 21.02.2026 |
| Číslo zakázky: | REALITYMIX-1844 |
Podrobné informace
- Poloha objektu: rohový
- Druh objektu: cihlová
- Stav objektu: dobrý
- Počet podlaží objektu: 2
- Typ domu: patrový
- Zastavěná plocha: 77 m²
- Plocha parcely: 567 m²
- Užitná plocha: 79 m²
- Umístění objektu: okraj obce
- Doprava: vlak, dálnice, silnice, autobus
- Komunikace: betonová
- Voda: Zdroj pro celý objekt
- Odpad: Kanalizace
- Energetická náročnost budovy: G - Mimořádně nehospodárná
- Energetický ukazatel podle vyhlášky: č. 264/2020 Sb.
Právní rádce
-
Detail
V tomto článku shrneme nejdůležitější věci, které byste si měli promyslet, pokud se chystáte prodat svou nemovitost a chcete, abyste s kupujícím nemusel následně řešit vzniklé problémy.
Jako prodávající nesete rizika spojená nejen se samotným obchodem, ale i se stavem nemovitosti v době prodeje a pro minimalizaci rizik, je dobré se zamyslet nad uvedenými oblastmi.
-
Detail
Realitní makléř má své nezastupitelné místo v realitním obchodu. Realitním makléřem nemyslím nevzdělané jelito, které absolvovalo dvoudenní školení a ví, jak se nahraje inzerát na inzertní portál.
Realitním makléřem, který se Vám skutečně vyplatí, je zkušený profesionál, který je schopen Vám dobře poradit jak prodat za co nejvíc a s nejmenším rizikem a hlavně je Vás schopen obratně provést celým realitním obchodem.