Prodej - dům/vila, 91 m²
Palackého, Jakubské Předměstí, Náchod
3 290 000 KčProdej - dům/vila, 91 m²
Palackého, Jakubské Předměstí, Náchod
Prodej rodinného domu v Jaroměři – Palackého ulice
v Jaroměři máte možnost koupit rodinný dům, který nabízí dvě možná využití. První si můžete vyřešit vlastní bydlení nebo druhá možnost jako investice do dvou bytových jednotek se samostatnými vstupy.
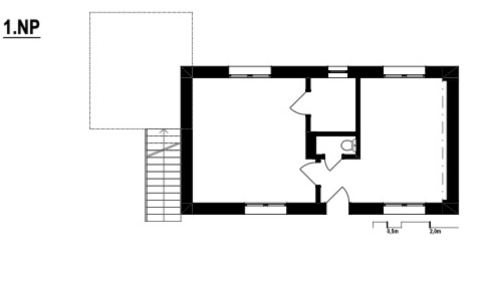
Dům se nachází v ulici Palackého, nedaleko centra Jaroměře. I když se to na první pohled nezdá, interiér domu je předurčen ke kompletní rekonstrukci, oproti tomu fasáda, střecha a většina oken jsou po revitalizaci 10 let. Zastavěná plocha domu (64 m2) včetně ostatní plochy před domem činí 284 m2.
V domě jsou aktuálně připravené prostory pro dva samostatné byty s teoretickou dispozicí 1+1 nebo 2+kk. Spodní byt [37 m2] má klenuté stropy, je orientován na východ i západ, a má zastřešený vstup, který je vhodný k venkovnímu posezení. Zavedena voda, odpad i elektřina.
Přístup do horního bytu [54 m2] vede zastřešeným bočním schodištěm. Tento byt má okna orientovaná na západ a sever, není zde natažena voda a odpady. Lze zrekonstruovat a využít také půdní prostory, do kterých vede otevřený průlez.
Vnitřním schodištěm by bylo možné byty propojit v jeden funkční celek. Dům je částečně podsklepený.
Jaroměř kombinuje praktickou polohu s příjemným městským zázemím. Díky napojení na dálnici D11 se do Hradce Králové dostanete pohodlně během 15 minut, a díky obchvatu také pohodlně do Náchoda. Město nabízí široké spektrum služeb – školství, zdravotnictví, sport i kulturu – a jako bonus přidává atmosféru historické pevnosti Josefov, která je unikátní v celém regionu.
Stavební pozemek o rozloze 1 080 m2 který je za domem a je součástí listu vlastnictví, není součástí prodeje. V případě zájmu a slušné nabídky se prodeji této parcely majitel nebrání.
Pro sjednání prohlídky a zaslání více informací mě kontaktujte, budu se těšit.
| Cena: | 3 290 000 Kč |
| Číslo zakázky: | REALITYMIX-18475 |
Podrobné informace
- Poloha objektu: řadový
- Druh objektu: smíšená
- Stav objektu: před rekonstrukcí
- Počet podlaží objektu: 2
- Typ domu: přízemní
- Zastavěná plocha: 63 m²
- Plocha parcely: 238 m²
- Užitná plocha: 91 m²
- Sklep: 12 m²
- Umístění objektu: centrum obce
- Doprava: vlak, dálnice, silnice, autobus
- Komunikace: asfaltová
- Elektřina: Elektro - 230 V
- Voda: Voda - dálkový vodovod
- Plyn: Plynovod
- Odpad: Kanalizace
- Energetická náročnost budovy: G - Mimořádně nehospodárná
- Energetický ukazatel podle vyhlášky: č. 264/2020 Sb.
Právní rádce
-
Detail
V tomto článku shrneme nejdůležitější věci, které byste si měli promyslet, pokud se chystáte prodat svou nemovitost a chcete, abyste s kupujícím nemusel následně řešit vzniklé problémy.
Jako prodávající nesete rizika spojená nejen se samotným obchodem, ale i se stavem nemovitosti v době prodeje a pro minimalizaci rizik, je dobré se zamyslet nad uvedenými oblastmi.
-
Detail
Realitní makléř má své nezastupitelné místo v realitním obchodu. Realitním makléřem nemyslím nevzdělané jelito, které absolvovalo dvoudenní školení a ví, jak se nahraje inzerát na inzertní portál.
Realitním makléřem, který se Vám skutečně vyplatí, je zkušený profesionál, který je schopen Vám dobře poradit jak prodat za co nejvíc a s nejmenším rizikem a hlavně je Vás schopen obratně provést celým realitním obchodem.