Prodej - dům/vila, 210 m²
Malé Kempy, Louky, Karviná
4 300 000 KčProdej - dům/vila, 210 m²
Malé Kempy, Louky, Karviná
Karviná Louky rodinný dům se zahradou a garáží
Prostě spousta místa na život, smích i občasné ticho!
Tento samostatně stojící dům z roku 1933 dostal do vínku pevné základy, pozdější přestavbou byl rozšířen a upraven na dvougenerační bydlení, aby postupně dál vzkvétal a dobře se v něm žilo.
Nyní je dům vyklizený, čistý a vymalovaný na bílo. Je připraven na dokončení rekonstrukce. A co už je hotové? Střecha a zateplení půdy 10cm minerální vatou je z roku 1997, následně přeložená novou krytinou 2007, vytápění zajišťuje ekologický automatický kotel na peletky (2018) s UPS na pět dní (2024), záložní elektrokotel (2024) na občasné přitápění nebo pro delší zimní dovolenou, bojler, koupelna a chodba už má nový rozvod elektřiny (2023), v koupelně jsou nové obklady a prostorný sprchový kout (2023), jsou instalovaná nová plastová okna s trojskly (2024). Vně domu je dřevěná pergola (2018) a nový vjezd s parkováním pro 2-3 auta (2023) s pojízdnou bránou (2024).
Co vás určitě zaujme je množství přírodního světla v pokojích díky velkým oknům, spousta úložných prostor i parkovacích míst a zahrada, která čeká na vaše nápady.
Dříve bylo město Karviná a blízké okolí vnímáno negativně, dnes je to město velkých proměn a nadějí. Těžba končí, rozvíjí se lázeňství, příroda se zpátky zelená. Přijeďte se přesvědčit osobně, ráda vás tu provedu!
Pozn.: energetická třída D. Uvedená kupní cena je VČETNĚ zprostředkovatelského poplatku
| Cena: | 4 300 000 Kč |
| Číslo zakázky: | REALITYMIX-25-01-052 |
Podrobné informace
- Poloha objektu: samostatný
- Druh objektu: cihlová
- Stav objektu: velmi dobrý
- Počet podlaží objektu: 2
- Typ domu: patrový
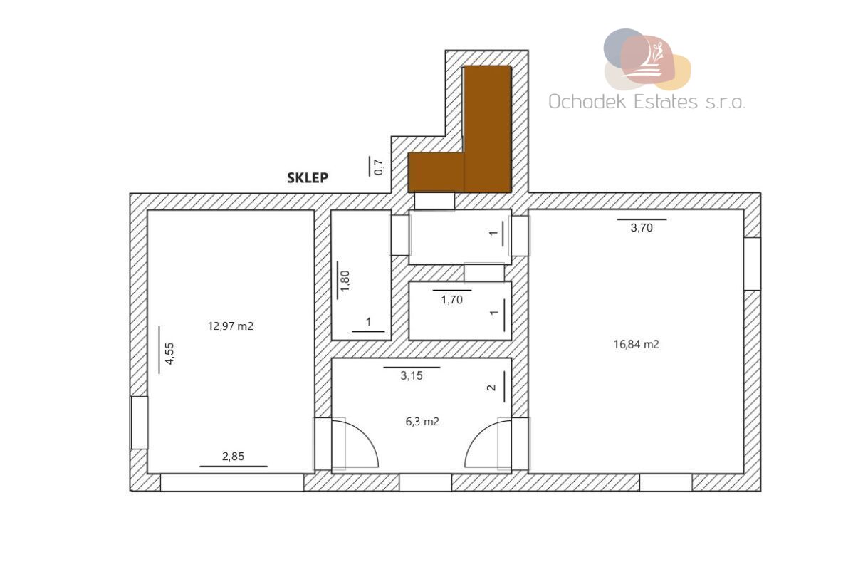
- Zastavěná plocha: 132 m²
- Plocha parcely: 1936 m²
- Zahrada: 1936 m²
- Užitná plocha: 210 m²
- Umístění objektu: klidná část obce
- Elektřina: Elektro - 230 V, Elektro - 400 V
- Voda: Zdroj pro celý objekt, Voda - dálkový vodovod
- Topení: Ústřední - tuhá paliva, Ústřední - elektrické
- Energetická náročnost budovy: D - Méně úsporná
- Ukazatel energetické náročnosti budovy: 116 kWh/m²
- Energetický ukazatel podle vyhlášky: č. 264/2020 Sb.
Právní rádce
-
Detail
V tomto článku shrneme nejdůležitější věci, které byste si měli promyslet, pokud se chystáte prodat svou nemovitost a chcete, abyste s kupujícím nemusel následně řešit vzniklé problémy.
Jako prodávající nesete rizika spojená nejen se samotným obchodem, ale i se stavem nemovitosti v době prodeje a pro minimalizaci rizik, je dobré se zamyslet nad uvedenými oblastmi.
-
Detail
Realitní makléř má své nezastupitelné místo v realitním obchodu. Realitním makléřem nemyslím nevzdělané jelito, které absolvovalo dvoudenní školení a ví, jak se nahraje inzerát na inzertní portál.
Realitním makléřem, který se Vám skutečně vyplatí, je zkušený profesionál, který je schopen Vám dobře poradit jak prodat za co nejvíc a s nejmenším rizikem a hlavně je Vás schopen obratně provést celým realitním obchodem.