Prodej - dům/vila, 64 m²
Rakovnická, Rozdělov, Kladno
5 790 000 KčProdej - dům/vila, 64 m²
Rakovnická, Rozdělov, Kladno
Prodej ½ dvojdomu 2+1, ul. Rakovnická č.p. 256 Kladno
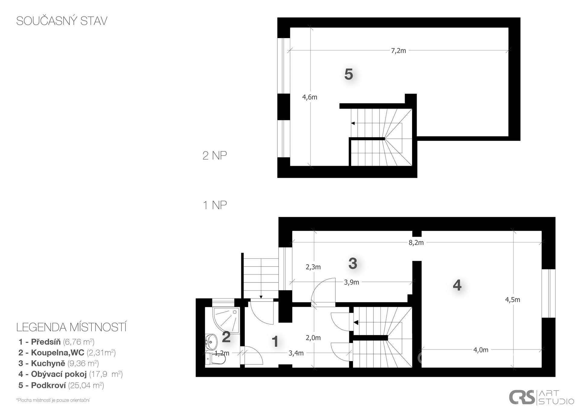
Rodinný dům č.p. 256 byl postaven v roce cca 1938 a je dispozičně řešen jako podsklepený přízemní objekt s obytným podkrovím, kdy v roce 1989 byl kompletně přestavěn (kolaudace 1989), následně po částečné rekonstrukci r. 2010, střecha včetně krytiny, trámů a latí nová (2020) Bramac.
Nabízí celkem:
• 1. podzemní podlaží: sklep 3,06 m²
• 1. nadzemní podlaží: předsíň 6,76 m2, koupelna 2,31 m2, kuchyň 9,36 m2, obývací pokoj 17,9 m2
• Obytné podkroví: ložnice + chodba 25,04 m2
• Vedlejší stavby: kolna 6,08 m2, prádelna 6,08 m2, garáž 23 m2
Jednotka: koupelna společná s WC, předsíň, kuchyň, pokoj, okna plastová osazena žaluziemi, podlahová krytina PVC a dlažba, vytápění elektrický přímotop, schodiště betonové pokryto PVC.
• Podkroví: pokoj, dřevěná okna do zahrady, podlahy USB desky (1989)
• Sklep: sklípek, betonové schodiště
• Rekonstrukce: elektřina původní, odpad a voda v plastu, interiér (stěny hrubý štuk, okna v plastu osazena žaluziemi.
• Dům je napojen na veřejnou kanalizaci, vodovod (podružný s č.p. 708), elektřinu (220 i 380 V), plyn (přípojka na domě demontována), vytápění: akumulační kamna 2x, bojler DRAŽICE (2022).
Stavba je technicky v dobrém stavu, což nabízí ideální příležitost k vytvoření bydlení dle vlastních představ.
Na pozemku se dále nachází kolna, prádelna postavená rovněž v roce 1938, a dále garáž vystavěna v 90 letech.
Lokalita: Kladno Rozdělov je příjemná a dobře dostupná obec jen 7 km jihozápadně od Kladna a cca 30 minut jízdy od Prahy. V obci je veškerá občanská vybavenost: škola, školka, pošta, obchod, zdravotní středisko, knihovna, zahradnictví i další drobné provozovny. Obec má dobrou dopravní dostupnost – nachází se na trase hlavní silnice Praha – Karlovy Vary, a je připojena na veřejné inženýrské sítě (vodovod, kanalizace, plyn).
Shrnutí:
• celková výměra pozemků: 196 m²
• obytná plocha domu: 52,3 m²
• stav: určeno k rekonstrukci
• napojeno na všechny inženýrské sítě
• velmi dobrá dostupnost do centra Kladna i Prahy
• možnost přestavby dle vlastních potřeb a představ viz vizualizace
• náklady na bydlení cca Vodné: 1.000, Kč, elektřina: 5.000,Kč
Vhodné jak pro vlastní bydlení, tak jako investice. Pro více informací nebo sjednání prohlídky mě neváhejte kontaktovat.
PENB: zpracovává se
| Cena: | 5 790 000 Kč |
| Datum k nastěhování: | 01.01.2026 |
| Číslo zakázky: | REALITYMIX-972363 |
Podrobné informace
- Poloha objektu: řadový
- Druh objektu: cihlová
- Stav objektu: dobrý
- Počet podlaží objektu: 2
- Typ domu: patrový
- Zastavěná plocha: 50 m²
- Plocha parcely: 196 m²
- Zahrada: 45 m²
- Užitná plocha: 64 m²
- Sklep: 3 m²
- Ostatní: Garáž
- Doprava: vlak, dálnice, MHD
- Elektřina: Elektro - 230 V
- Voda: Zdroj pro celý objekt, Voda - dálkový vodovod
- Plyn: Plynovod
- Odpad: Kanalizace
- Energetická náročnost budovy: G - Mimořádně nehospodárná
Právní rádce
-
Detail
V tomto článku shrneme nejdůležitější věci, které byste si měli promyslet, pokud se chystáte prodat svou nemovitost a chcete, abyste s kupujícím nemusel následně řešit vzniklé problémy.
Jako prodávající nesete rizika spojená nejen se samotným obchodem, ale i se stavem nemovitosti v době prodeje a pro minimalizaci rizik, je dobré se zamyslet nad uvedenými oblastmi.
-
Detail
Realitní makléř má své nezastupitelné místo v realitním obchodu. Realitním makléřem nemyslím nevzdělané jelito, které absolvovalo dvoudenní školení a ví, jak se nahraje inzerát na inzertní portál.
Realitním makléřem, který se Vám skutečně vyplatí, je zkušený profesionál, který je schopen Vám dobře poradit jak prodat za co nejvíc a s nejmenším rizikem a hlavně je Vás schopen obratně provést celým realitním obchodem.