Prodej - dům/vila, 176 m²
U zastávky, Kladno
14 990 000 KčProdej - dům/vila, 176 m²
U zastávky, Kladno
Prodej rodinného domu, ulice U zastávky, Kladno
Součástí domu je udržovaná zahrada s řadou praktických doplňkových staveb. K dispozici je dvojgaráž o velikosti 26,5 m2 m² s vraty na dálkové ovládání, dále samostatná letní prádelna o ploše 6 m², sklad o velikosti 8 m², skleník, pergola o výměře 9 m² a přístřešek s krbem o velikosti 9 m², který nabízí příjemné zázemí pro posezení.
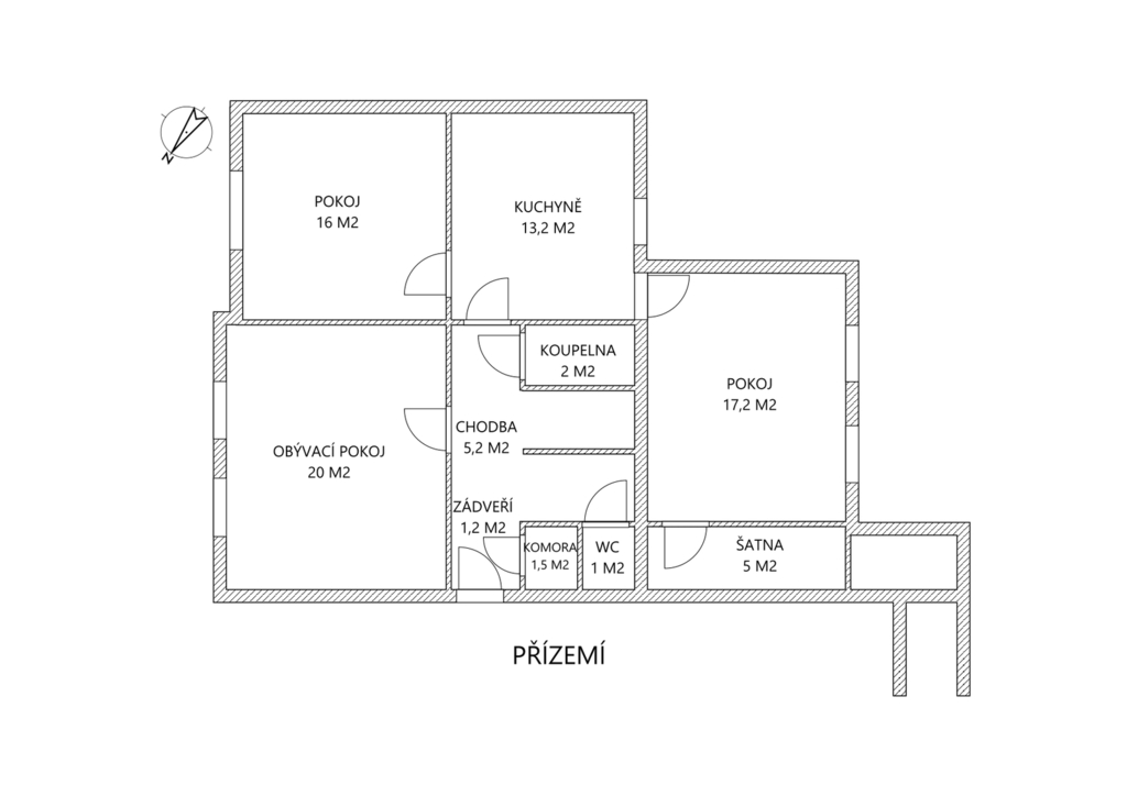
Horní podlaží prošlo kompletní moderní rekonstrukcí a nabízí vysoký standard bydlení. Nachází se zde obývací pokoj s velkým francouzským oknem se vstupem na terasu. Její orientace je jihozápadní a je vybavena zatahovací markýzou. Další obytný prostor je řešen jako otevřený celek propojující obývací část s kuchyňským koutem a jídelnou. K dispozici je ložnice s navazující šatnou, koupelna s WC, praktický kumbál a schodiště do podkroví, kde se nachází další ložnice. Vytápění a ohřev teplé vody zajišťuje plynový kotel Dakon se zásobníkem, v celém podlaží, kromě ložnice je podlahové vytápění řízené termostatem. Toaleta je řešena závěsným systémem Geberit. Interiér doplňují sádrokartonové podhledy a moderní kuchyňská linka se sklokeramickou deskou Schott Ceran, troubou Whirlpool a digestoří.
Spodní podlaží je ve velmi zachovalém původním stavu a nabízí dispozici zahrnující chodbu, obývací pokoj, dvě ložnice, kuchyň, šatnu, samostatné WC, koupelnu a vstup do sklepa. Sklep má rozlohu 22 m2. Vytápění zde zajišťuje nový plynový kotel Immergas, ohřev vody je řešen bojlerem Dražice. Na podlahách jsou plovoucí podlahy a koberce, v koupelně je dlažba a sprchový kout. Kuchyně je vybavena troubou a sklokeramickou deskou Electrolux a v ložnici je k dispozici vestavěná skříň.
Velkou předností je poloha domu, která kombinuje klidné rezidenční prostředí s výbornou dostupností do centra Kladna a kompletní občanskou vybaveností v okolí. V docházkové vzdálenosti je MHD a modernizovaná vlaková stanice, která zajišťuje velmi dobré spojení s Prahou. V blízkosti se nachází také aquapark, nemocnice, sportoviště Sletiště a vyhledávané gastronomické podniky včetně restaurace Na Letné.
V případě zájmu o více informací nebo sjednání prohlídky nás neváhejte kontaktovat.
| Cena: | 14 990 000 Kč |
| Číslo zakázky: | REALITYMIX-19053 |
Podrobné informace
- Poloha objektu: samostatný
- Druh objektu: cihlová
- Stav objektu: velmi dobrý
- Počet podlaží objektu: 2
- Typ domu: patrový
- Zastavěná plocha: 113 m²
- Plocha parcely: 622 m²
- Užitná plocha: 176 m²
- Sklep: 22 m²
- Doprava: vlak, dálnice, silnice, MHD, autobus
- Komunikace: asfaltová
- Elektřina: Elektro - 230 V
- Voda: Voda - dálkový vodovod
- Plyn: Plynovod
- Odpad: Kanalizace
- Energetická náročnost budovy: G - Mimořádně nehospodárná
- Energetický ukazatel podle vyhlášky: č. 264/2020 Sb.
Právní rádce
-
Detail
V tomto článku shrneme nejdůležitější věci, které byste si měli promyslet, pokud se chystáte prodat svou nemovitost a chcete, abyste s kupujícím nemusel následně řešit vzniklé problémy.
Jako prodávající nesete rizika spojená nejen se samotným obchodem, ale i se stavem nemovitosti v době prodeje a pro minimalizaci rizik, je dobré se zamyslet nad uvedenými oblastmi.
-
Detail
Realitní makléř má své nezastupitelné místo v realitním obchodu. Realitním makléřem nemyslím nevzdělané jelito, které absolvovalo dvoudenní školení a ví, jak se nahraje inzerát na inzertní portál.
Realitním makléřem, který se Vám skutečně vyplatí, je zkušený profesionál, který je schopen Vám dobře poradit jak prodat za co nejvíc a s nejmenším rizikem a hlavně je Vás schopen obratně provést celým realitním obchodem.