Prodej - dům/vila, 187 m²
Československé armády, Kouřim, Kolín
7 590 000 KčProdej - dům/vila, 187 m²
Československé armády, Kouřim, Kolín
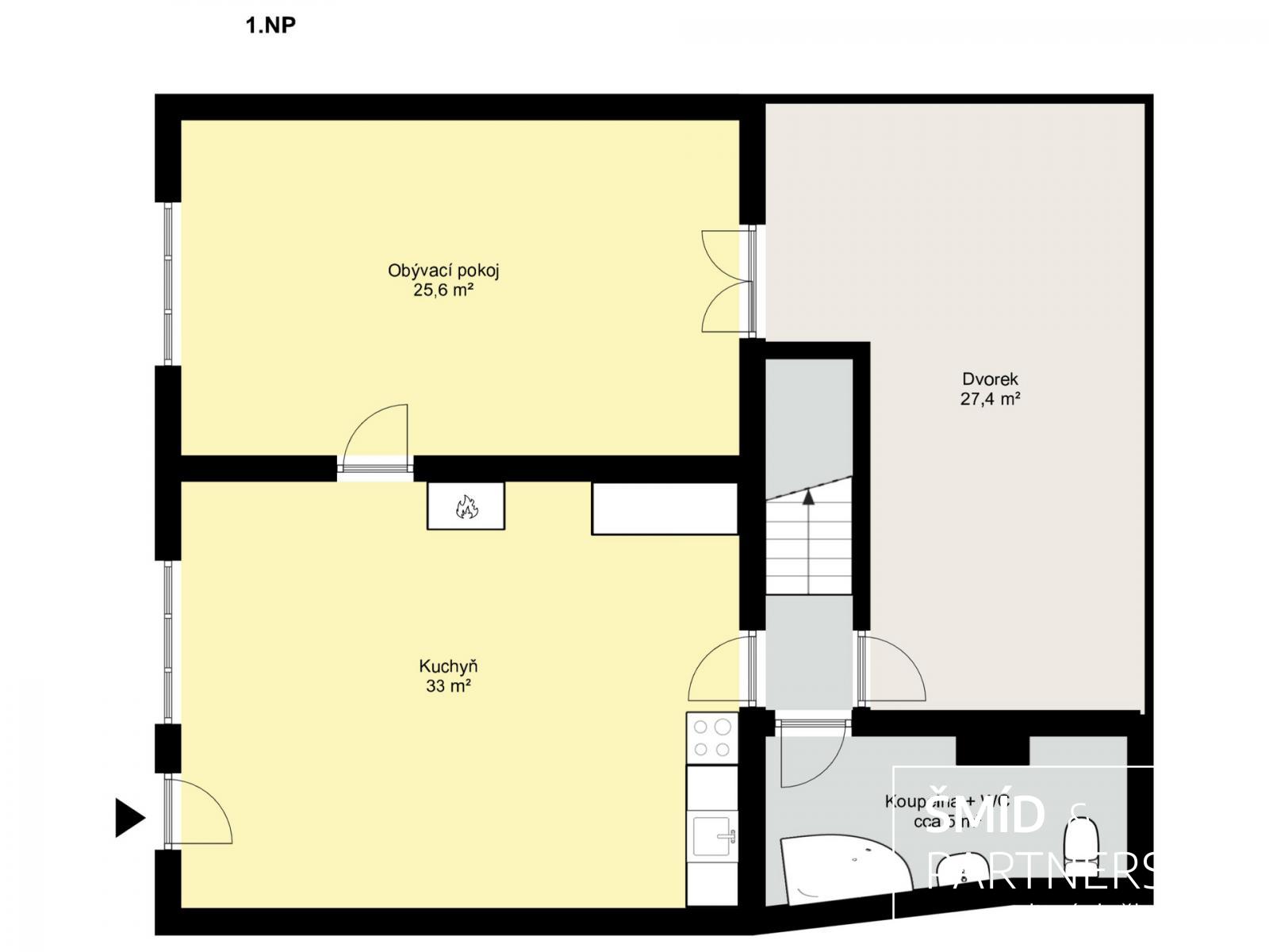
Prodej rodinného domu v Kouřimi 5+1, užitná plocha 187 m2
Původní středověký dům byl kompletně rekonstruován v letech 2008 a 2022 a je ve velmi dobrém stavu. Byl postaven z kamenného zdiva (šířka zdiva cca 1 m) a má cihlové klenuté stropy v přízemí. Střecha je sedlová, z části pálená taška, z části plechová krytina.
Vrchní patra: dřevěná konstrukce (příčky kombinace sádrokarton a Ytong) izolace vrchních pater a přístupové galerie: Rockwool (25 cm). Kamenné zdivo ze strany ulice ošetřeno odvětráváním přes představěný sokl. Uvnitř spodního patra nainstalováno speciální podlahou vedené odvětrávání s odvodem vzduchu mimo dům (vedeno kolem zdiva a celou plochou podlahy).
Způsob vytápění: spodní patro akumulační kamna + kachlový sporák (s troubou) na dřevo a tepelné čerpadlo (vzduch-vzduch) Toshiba. Pod jídelním stolem zavedeno vytápění podlahy (do zásuvky na elektriku) 1.patro: dětské pokoje - akumulační kamna, otevřený prostor (galerie) tepelné čerpadlo a kachlová kamna na dřevo, 2.patro: obě místnosti - tepelné čerpadlo.
Tepelná čerpadla lze v létě přepnout do režimu klimatizace
V koupelnách nainstalovány topné and #34;žebříky and #34;
Ohřev teplé vody: elektrické boilery (dole 160 l, 1. patro 80 l)
Rozvody - elektřina, voda, kanalizace - vše městské, elektřina v mědi, voda v plastu.
V přízemí na zakázku dřevěná borovicová okna + dveře. Horní patra - střešní okna Velux + dřevěná Eurookna, jen v ložnici(2.patro) je velké plastové dvoukřídlové francouzské okno s východem na terasu.
Podlahové krytiny: kuchyň + koupelny dlažba, obývák a zbytek prostor plovoucí podlaha. Schody do prvního patra jsou z masivního dubu, do druhého patra z masivního buku.
Náklady na energie sazba D25D, roční spotřeba ( 5 osob ):
VT: 3 600,00 kWh
NT: 3 960,00 kWh
Většinu zimy lze topit dřevem v kamnech.
Předností domu, který se nachází v klidné kouřimské lokalitě je bezprostřední blízkost centra města s veškerou infrastrukturou. Ve městě je mimo jiné i ZŠ do 9.třídy, školka, ZUŠ, lékárna, kino, divadlo, obchody, restaurace a kavárna. Jsou zde i aktivní spolky (hasiči, skauti, komunitní centrum, zvoníci) a nedaleko od centra se nachází turisticky hojně navštěvovaný skanzen se širokou škálou celoročních národopisných pořadů...
Nemovitost je možné financovat pomocí hypotečního úvěru, který Vám zdarma pomůžeme vyřídit.
| Cena: | 7 590 000 Kč |
| Číslo zakázky: | REALITYMIX-1006 |
Podrobné informace
- Poloha objektu: v bloku
- Druh objektu: kamenná
- Stav objektu: velmi dobrý
- Počet podlaží objektu: 3
- Typ domu: patrový
- Zastavěná plocha: 111 m²
- Plocha parcely: 111 m²
- Užitná plocha: 187 m²
- Terasa: 24 m²
- Umístění objektu: klidná část obce
- Doprava: vlak, silnice, autobus
- Elektřina: Elektro - 230 V
- Voda: Zdroj pro celý objekt
- Topení: Jiné
- Odpad: Kanalizace
- Energetická náročnost budovy: G - Mimořádně nehospodárná
Právní rádce
-
Detail
V tomto článku shrneme nejdůležitější věci, které byste si měli promyslet, pokud se chystáte prodat svou nemovitost a chcete, abyste s kupujícím nemusel následně řešit vzniklé problémy.
Jako prodávající nesete rizika spojená nejen se samotným obchodem, ale i se stavem nemovitosti v době prodeje a pro minimalizaci rizik, je dobré se zamyslet nad uvedenými oblastmi.
-
Detail
Realitní makléř má své nezastupitelné místo v realitním obchodu. Realitním makléřem nemyslím nevzdělané jelito, které absolvovalo dvoudenní školení a ví, jak se nahraje inzerát na inzertní portál.
Realitním makléřem, který se Vám skutečně vyplatí, je zkušený profesionál, který je schopen Vám dobře poradit jak prodat za co nejvíc a s nejmenším rizikem a hlavně je Vás schopen obratně provést celým realitním obchodem.