Prodej - dům/vila, 105 m²
Krabčice, Litoměřice
4 000 000 KčProdej - dům/vila, 105 m²
Krabčice, Litoměřice
RD s atmosférou starého statku, 3+1 po částečné rekonstrukci, Krabčice, okr.Litoměřice
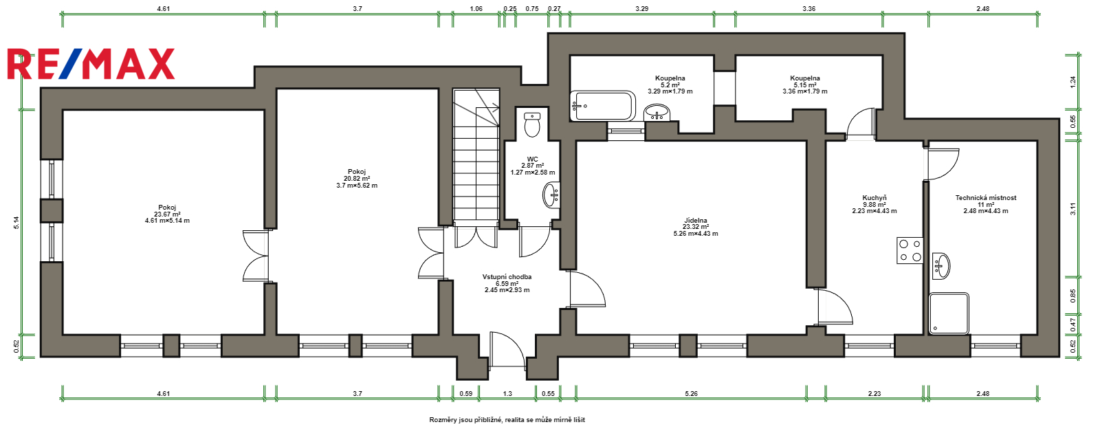
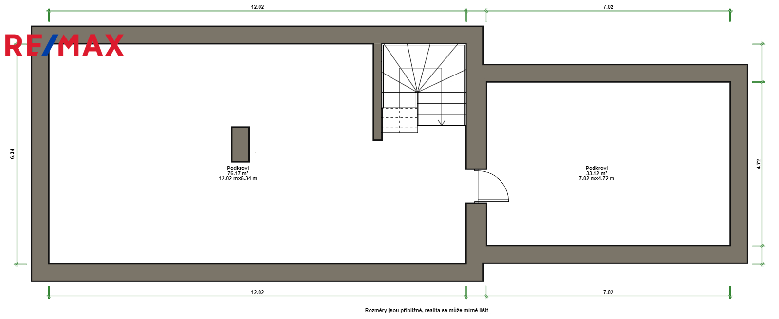
Aktuální obytná dispozice 3+1 o ploše přesahující 105 m² prochází postupnou rekonstrukcí, která budoucím majitelům dává jedinečnou příležitost dokončit si domov podle vlastních představ. Dvě obytné místnosti jsou již zcela dokončeny a připraveny k okamžitému užívání, zatímco jídelna, kuchyně a koupelna jsou v rozpracované fázi. Zásadní investicí již prošla celá obytná část, která se pyšní zcela novou střechou včetně krovu, krytiny a zpevňujících věnců. Tento prostor je přímo připraven pro případnou podkrovní vestavbu, která by plochu bydlení dále výrazně rozšířila.
Na obytný dům plynule navazuje rozsáhlé patrové hospodářské zázemí o délce přes 30m. Tyto prostory jsou ideální pro široké spektrum využití – od dílen, ateliérů a skladů až po možnost podnikání či chovu zvířat. Nemovitost je napojena na kompletní inženýrské sítě, má i vlastní studnu a nabízí tak veškerý komfort pro budoucí moderní bydlení na venkově.
Lokalita Krabčic je se svou polohou na úpatí hory Říp, základní občanskou vybaveností a skvělým spojením s okolím skvělým místem pro bydlení. Roudnice nad Labem je vzdálena pouhých 5 minut jízdy a díky blízkému nájezdu na dálnici D8 se do Prahy pohodlně dostanete za 30 minut. Pokud hledáte nemovitost s duší, kterou si dotvoříte k obrazu svému, tento statek v Krabčicích je pro vás ideální volbou.
Pro více informací a sjednání prohlídky mě neváhejte kontaktovat. Prohlídky nemovitosti od konce 01/2026.
| Cena: | 4 000 000 Kč |
| Číslo zakázky: | REALITYMIX-429280 |
Podrobné informace
- Poloha objektu: samostatný
- Druh objektu: cihlová
- Stav objektu: před rekonstrukcí
- Počet podlaží objektu: 1
- Typ domu: přízemní
- Zastavěná plocha: 393 m²
- Plocha parcely: 1062 m²
- Zahrada: 669 m²
- Užitná plocha: 105 m²
- Umístění objektu: klidná část obce
- Doprava: dálnice, silnice, autobus
- Komunikace: neupravená
- Elektřina: Elektro - 230 V, Elektro - 400 V
- Voda: Voda - dálkový vodovod
- Telekomunikace: Telefon
- Plyn: Plynovod
- Odpad: Kanalizace
- Energetická náročnost budovy: G - Mimořádně nehospodárná
- Energetický ukazatel podle vyhlášky: č. 264/2020 Sb.
Právní rádce
-
Detail
V tomto článku shrneme nejdůležitější věci, které byste si měli promyslet, pokud se chystáte prodat svou nemovitost a chcete, abyste s kupujícím nemusel následně řešit vzniklé problémy.
Jako prodávající nesete rizika spojená nejen se samotným obchodem, ale i se stavem nemovitosti v době prodeje a pro minimalizaci rizik, je dobré se zamyslet nad uvedenými oblastmi.
-
Detail
Realitní makléř má své nezastupitelné místo v realitním obchodu. Realitním makléřem nemyslím nevzdělané jelito, které absolvovalo dvoudenní školení a ví, jak se nahraje inzerát na inzertní portál.
Realitním makléřem, který se Vám skutečně vyplatí, je zkušený profesionál, který je schopen Vám dobře poradit jak prodat za co nejvíc a s nejmenším rizikem a hlavně je Vás schopen obratně provést celým realitním obchodem.