Prodej - dům/vila, 252 m²
Járy Cimrmana, Vidovice, Praha-východ
18 600 000 KčProdej - dům/vila, 252 m²
Járy Cimrmana, Vidovice, Praha-východ
Prodej rodinného domu 6kk, 252 m2 + garáž + pozemek 1150 m2, Kunice - Vidovice, okr. Praha - Východ
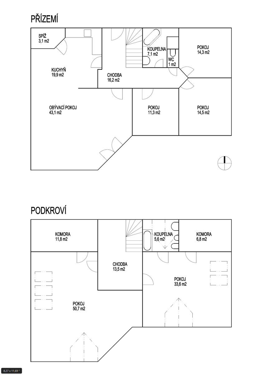
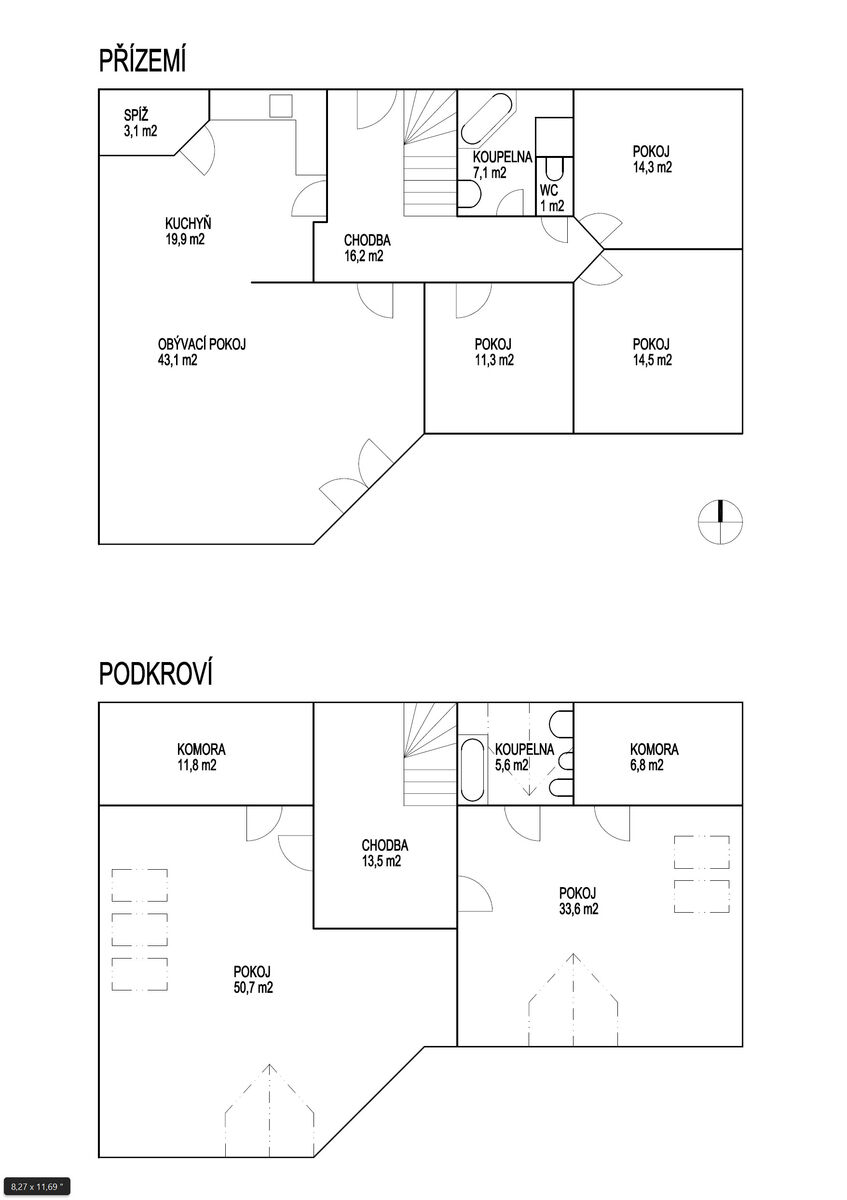
Prostorný dům stojí na velkorysém pozemku 1150 m2. Je samostatný, dvoupodlažní, o dispozici 6+kk, velikosti 252 m2 + terasa + garáž 33 m2. Nachází se v klidné části obce Kunice - Vidovice, okres Praha - Východ, v ulici Járy Cimrmana. Součástí pozemku je krásná, udržovaná zahrada o velikosti 955 m2. Orientace domu je na slunný západ - 5 pokojů, terasa je na jih, kuchyně, spíž a koupelny jsou na sever a 1 ložnice je na východ. V přízemí domu se nachází vstupní chodba, obývací pokoj s jídelnou, kuchyně, prostorná spíž, 3 neprůchozí ložnice, hlavní koupelna s umývadlem, rohovou vanou i sprchovým koutem a samostatné WC. V patře jsou 2 velké samostatné pokoje - jeden se vstupem do vlastní samostatné šatny a do vlastní koupelny (vana, umývadlo, WC, pisoár) a druhý prostorný pokoj se vstupem do samostatné šatny.
Dům je částečně zařízený nábytkem - jedná se převážně o úložné prostory, stoly a cca 3 postele. Kuchyňská linka zn. Sýkora je vybavena novou indukční varnou deskou, el. troubou, digestoří, myčkou a malou lednicí. V domě byly použity jen kvalitní a drahé materiály - dubové dřevěné podlahy, keramická dlažba, obklady v hlavní koupelně od firmy Villeroy & Boch, skříně, dveře, zárubně a schody jsou výhradně jen z masivu, kvalitní dřevěná eurookna TWW, funkční kachlová kamna v kuchyni z Kamnářství Jan Janoušek, nové osvětlení v obývacím pokoji a kuchyni, nejtišší tepelné čerpadlo na trhu Acond Pro R, centrální vysavač Electrolux, elektronický zabezpečovací systém Rokonet Orbit-Pro apod. Na pozemku je vlastní studna vhodná k zalévání zahrady a závlaha Hunter Pro - C. Kanalizace je obecní. Parkování je možné v prostorné garáži i na pozemku za bránou, která je kovaná, s el. pohony a na dálkové ovládání.
Dům se nachází ve velmi klidné části obce. Díky velkorysému pozemku a sousednímu pozemku, který není užíván a náleží stejnému majiteli, je zaručené maximální soukromí a klid. V okolí je krásná příroda - pro milovníky turistiky a cyklosportu ideální. Poblíž domu je možné se napojit na cyklotrasu s příznačným názvem Krajem Josefa Lady.
Obec Kunice - Vidovice se nachází 10 km od Říčan. Napojení na D1 je necelých 6 km od domu a do centra Prahy je to pouhých 20 min autem. Cca 3 min chůze je zastávka busu č. 461 s přímým spojením na 5 km vzdálené vlakové nádraží Strančice, odkud jezdí přímé spoje do několika částí Prahy až na samotné Hlavní nádraží (34 min).
Dům je ve výborném technickém stavu, je kompletně nově vymalován a připraven k okamžitému nastěhování bez nutnosti dalších investic.
| Cena: | 18 600 000 Kč |
| Poznámka: | Neplatíte provizi. Nízké měsíční náklady - cca 300 Kč/1 osoba + el. energie cca 4.000 Kč/měsíc |
| Datum k nastěhování: | 05.03.2026 |
| Číslo zakázky: | REALITYMIX-22235 |
Podrobné informace
- Poloha objektu: samostatný
- Druh objektu: cihlová
- Stav objektu: velmi dobrý
- Počet podlaží objektu: 2
- Typ domu: patrový
- Zastavěná plocha: 195 m²
- Plocha parcely: 1150 m²
- Zahrada: 955 m²
- Užitná plocha: 252 m²
- Doprava: dálnice, autobus
- Voda: Voda - dálkový vodovod
- Odpad: Kanalizace
- Energetická náročnost budovy: C - Úsporná
- Energetický ukazatel podle vyhlášky: č. 264/2020 Sb.
Právní rádce
-
Detail
V tomto článku shrneme nejdůležitější věci, které byste si měli promyslet, pokud se chystáte prodat svou nemovitost a chcete, abyste s kupujícím nemusel následně řešit vzniklé problémy.
Jako prodávající nesete rizika spojená nejen se samotným obchodem, ale i se stavem nemovitosti v době prodeje a pro minimalizaci rizik, je dobré se zamyslet nad uvedenými oblastmi.
-
Detail
Realitní makléř má své nezastupitelné místo v realitním obchodu. Realitním makléřem nemyslím nevzdělané jelito, které absolvovalo dvoudenní školení a ví, jak se nahraje inzerát na inzertní portál.
Realitním makléřem, který se Vám skutečně vyplatí, je zkušený profesionál, který je schopen Vám dobře poradit jak prodat za co nejvíc a s nejmenším rizikem a hlavně je Vás schopen obratně provést celým realitním obchodem.
Mapa
Podobné nemovitosti
Prodej - dům/vila, 230 m²
Vestecká, Stará Boleslav, Praha-východ
17 900 000 Kč
Prodej - dům/vila, 160 m²
Ondřejovská, Struhařov, Praha-východ
15 490 000 Kč
Prodej - dům/vila, 200 m²
Haškova, Radošovice, Praha-východ
14 900 000 Kč
Prodej - dům/vila, 579 m²
Českobrodská, Kostelec nad Černými lesy, Praha-východ
15 000 000 Kč