Prodej - dům/vila, 161 m²
Kunratice, Liberec
3 700 000 KčProdej - dům/vila, 161 m²
Kunratice, Liberec
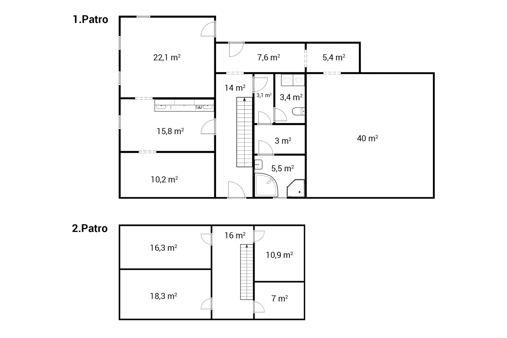
Prodej prostorného rodinného domu, 161 m², v Kunraticích
Nynější majitelé začali s rekonstrukcí tohoto objektu. Aktuálně je renovace ve fázi, kdy je první nadzemní podlaží připraveno kompletně k užívání. Včetně nových rozvodů, podlah, stěn, koupelny i technického zázemí.
Do druhého nadzemního podlaží jsou připraveny rozvody topení a bude jen na nových majitelích, jak dispozici využijí. Kde bude ložnice a kde dětský pokoj, už je otázkou budoucí.
A pokud by bylo i při stávající dispozici 5+1 málo místa, je tu prostorné podkroví, které dává další možnosti jak rozšířit aktuálních 161 m² podlahové plochy.
V rámci rekonstrukce byla vytvořena i technická místnost pro pračku a sušičku, dvě toalety a koupelna. Včetně nových rozvodů vody a odpadů. Stejně tak je kompletně rozvedena i nová elektřina v přízemí.
Jako tepelný zdroj byl zvolen automatický kotel na tuhá paliva napojený na nový komín. Voda je připojena na veřejný vodovod.
Kromě obytné části nabízí dům také prostornou stodolu, venkovní samostatnou garáž a byla instalována i elektrická brána pro vjezd a kamerový systém.
Nemovitost je možné financovat hypotečním úvěrem a také lze využít dotačních programů na rekonstrukce nemovitosti. V rámci prohlídky nemovitosti Vám rád sdělím veškeré dostupné informace k nemovitosti i financování.
Těším se na osobní setkání.
S pozdravem, Vladimír Řehák
| Cena: | 3 700 000 Kč |
| Datum k nastěhování: | 21.05.2025 |
| Číslo zakázky: | REALITYMIX-972645 |
Podrobné informace
- Poloha objektu: samostatný
- Druh objektu: smíšená
- Stav objektu: dobrý
- Počet podlaží objektu: 3
- Typ domu: patrový
- Zastavěná plocha: 173 m²
- Plocha parcely: 549 m²
- Zahrada: 376 m²
- Užitná plocha: 161 m²
- Sklep: 9 m²
- Ostatní: Garáž
- Doprava: silnice
- Elektřina: Elektro - 230 V
- Voda: Zdroj pro celý objekt, Voda - dálkový vodovod
- Plyn: Plynovod
- Odpad: Kanalizace
- Energetická náročnost budovy: G - Mimořádně nehospodárná
- Popis vybavení: .
Právní rádce
-
Detail
V tomto článku shrneme nejdůležitější věci, které byste si měli promyslet, pokud se chystáte prodat svou nemovitost a chcete, abyste s kupujícím nemusel následně řešit vzniklé problémy.
Jako prodávající nesete rizika spojená nejen se samotným obchodem, ale i se stavem nemovitosti v době prodeje a pro minimalizaci rizik, je dobré se zamyslet nad uvedenými oblastmi.
-
Detail
Realitní makléř má své nezastupitelné místo v realitním obchodu. Realitním makléřem nemyslím nevzdělané jelito, které absolvovalo dvoudenní školení a ví, jak se nahraje inzerát na inzertní portál.
Realitním makléřem, který se Vám skutečně vyplatí, je zkušený profesionál, který je schopen Vám dobře poradit jak prodat za co nejvíc a s nejmenším rizikem a hlavně je Vás schopen obratně provést celým realitním obchodem.