Prodej - dům/vila, 98 m²
Loza, Plzeň-sever
6 980 000 KčProdej - dům/vila, 98 m²
Loza, Plzeň-sever
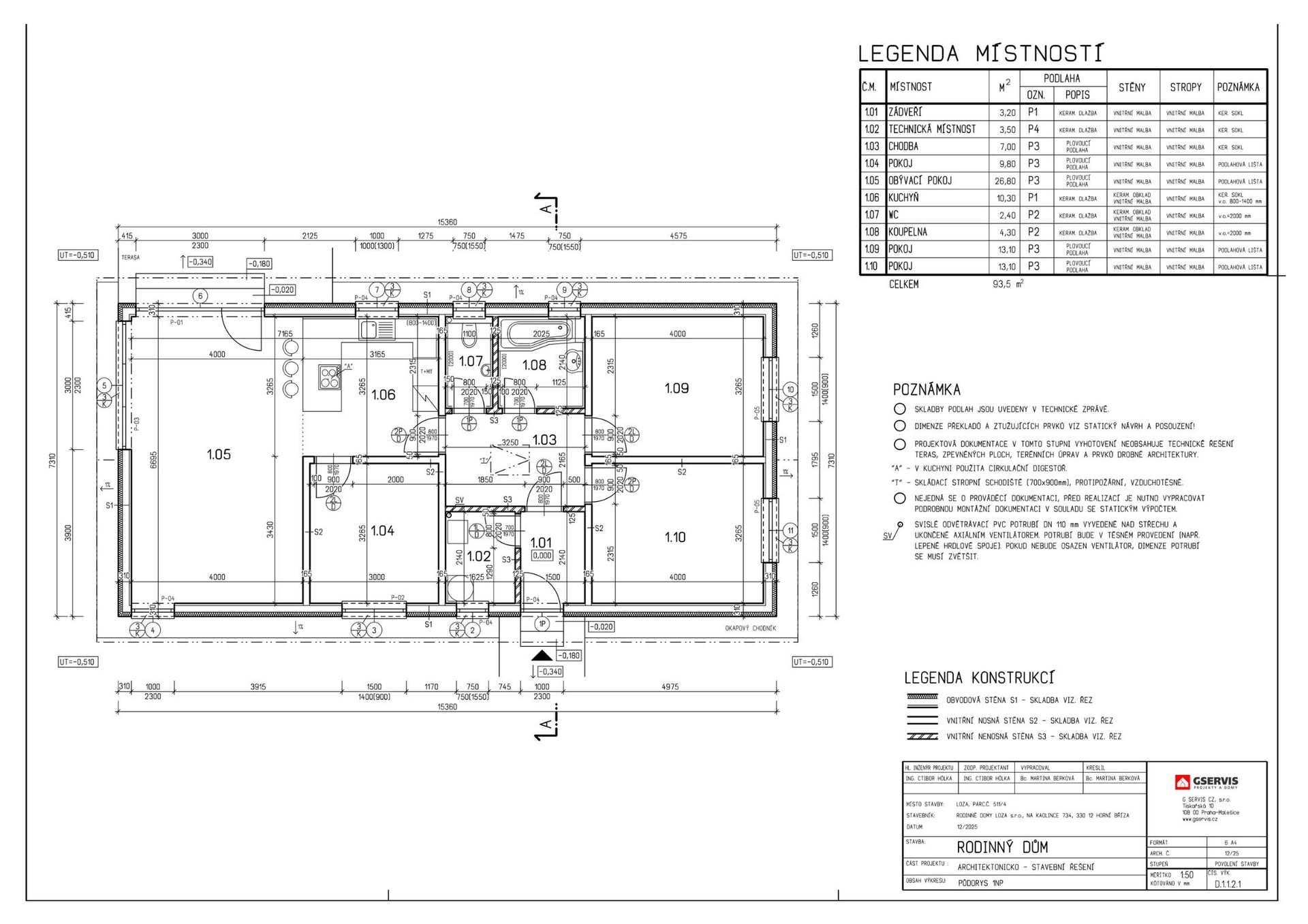
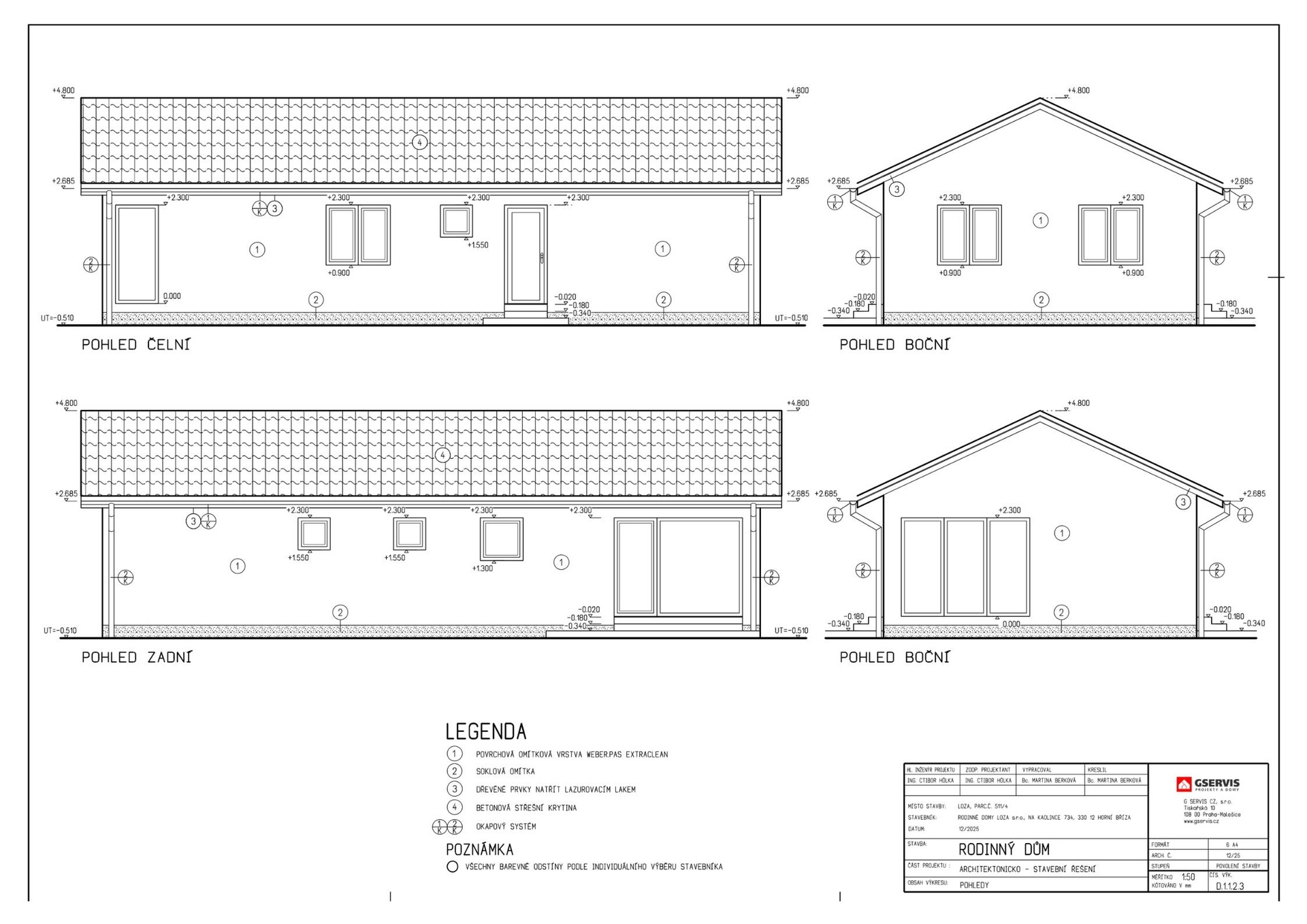
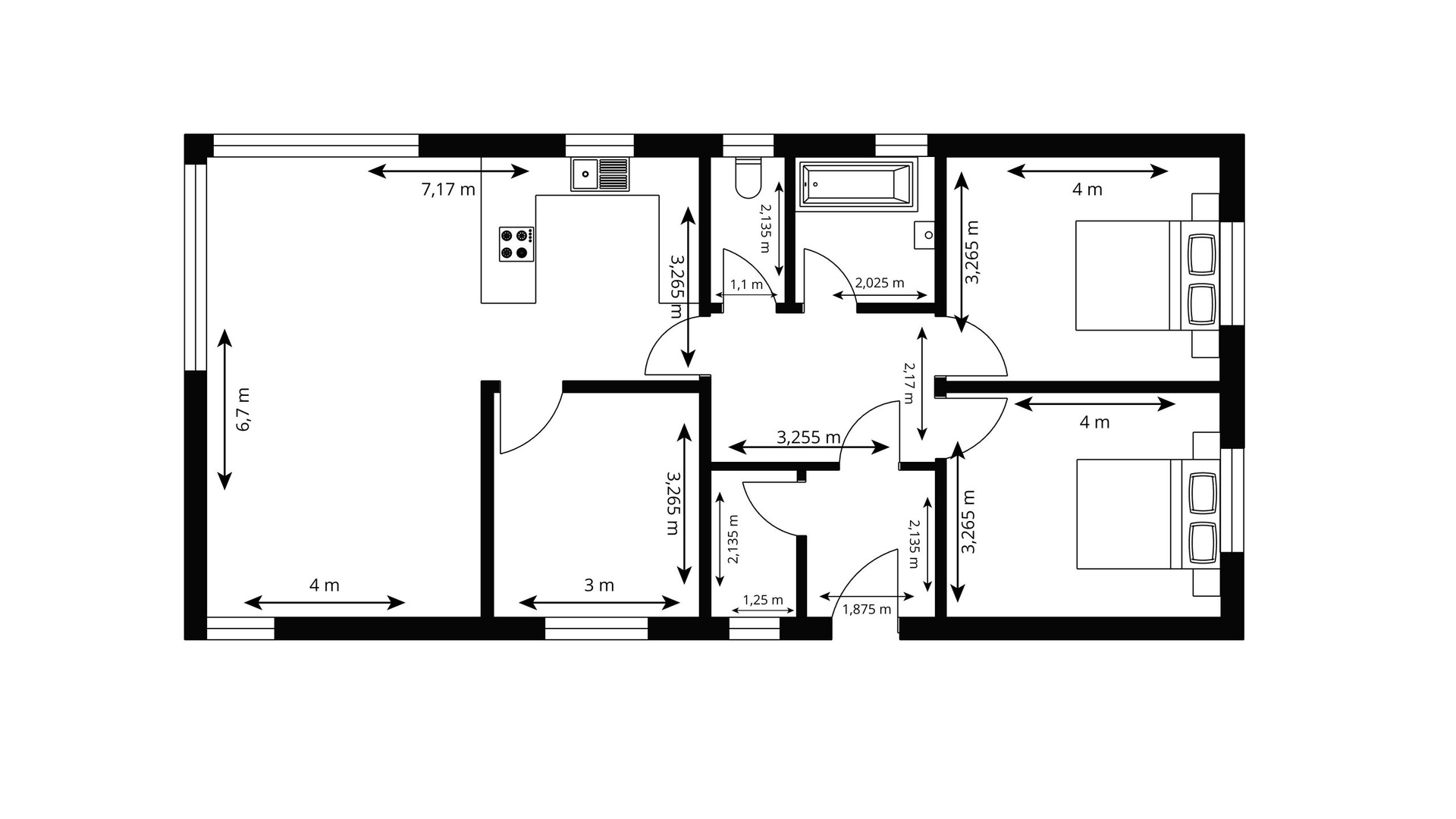
Prodej RD BUNGALOV užitná plocha 98.3 m², pozemek 726 m2 v obci LOZA , Plzeň - sever
CENA VČETNĚ POZEMKU
Nabídka rodinného bydlení dřevostavby BUNGALOVU , celkem 5 rodinných domů v projektu RODINNÉ DOMY LOZA :
5 bunglalovů velikosti 4 kk užitné plochy 98.3 m2 pozemky o velikosti 726 m2 - 762 m2
V projektu lze realizovat bungalov dvou tvarů - klasický a "L" různých velikostí užitných ploch dle výběru.
Součástí kupní ceny je:
- pozemek
- obvodové příčky, fasáda včetně zateplení
- vnitřní příčky, vnitřní omítky
- střecha krov dřevěná konstrukce, krytina taška, svody okapy
- podhledy
- okna s trojskly , dveře vstup plast s IZ trojsky
- obklady, dlažba , sanita a zařiz. předměty wc a koupelen - výběr dle standardů projektu
- podlahové topení celého, tep.čerpadlo Viessmann (voda - vzduch),
- vodovod, odpady městská kanalizace ,vodoměr, připojení domu pro kompletní provoz
- elektro, rozvody a kompletace , přípr.pro elekt. rozvody v kuchyní, zásuvka pračky a sušičky, slaboproud NP a 2. NP, zvonek,
- venk. úpravy pozemku srovnání terénu bez příprav osevu trávy
- oplocení pozemku
- přípojky energií voda a elektřina kompl. napojení domu a uvedení do provozu, retenční zádržná nádrž dešť. vody 6m3
- příjezdová komunikace – viz vizualizace situace projektu
- nadstandardní klientské změny jsou možné
Součástí kupní ceny není :
- dveře interiér, podlahová krytina lepený vinyl, dlažba, venkovní okap chodník - tyto položky lze realizovat dle standardů u kvalitních dodavatelů projektu za cenu 300.000 Kč, kdy je tedy cena domu pro kompletní dokončení " na klíč" 7.280.000 Kč včetně DPH
Dále v ceně domu není :
- kuchyňská linka, krb , krbová kamna , předokenní rolety a jejich příprava
– přípr. TV a dat. antény, koaxiál. kabel a TV zásuvky v obýv. pokoji a v pokojích
- zabezpečovací zařízení včetně přípravy, klimatizace, rekoperace a další případné technologie
- v nadstandardu je možné realizovat přípr. FVE panelů střecha, rekuperace, přípr. a realizaci bezpečnost. systému domu, přípr. pozemku pro osev trávy, realizace zahrady, osazení krbu/krb kamen, výrobu kuchyň linky vč. spotřebičů, klimatizaci, internet dat kabel, a mnoho dalšího
- na pozemku lze vybudovat park. stání či garáž, zastavěnost umožňuje využití pozemku pro další drobné stavby
Veškerá projektová dokumentace, detailní specifikace použitých materiálů a technologií, katalogy standardů podlah, sanity, obkladů a interiér dveří projektu k náhledu u realitní makléřky či na webu tohoto projektu.
Vizualizace a plánky půdorysů jsou orientační - zájemci budou předány přesné plány a specifikace.
Velmi nízké provozní náklady domu PENB třídy B - kompletní PENB bude aktualizovat v roce 2026 a bude předán při podpisu smluvní dokumentace. Předpokládáme nižší číslo energetické spotřeby.
Kouzelná krajina okolních lesů a přírody, cyklostezky a možnosti sport aktivit i relaxace, blízkost veškeré občan vybavenosti.
Dojezd města Plzně cca 15 min , město Dolní Bělá a okolní města 5 min - lékaři ,obchody , školka , škola a další.
Možnost financování hypotečním úvěrem 80 – 90 % LVT se zvýhodněnou úrok sazbou.
| Cena: | 6 980 000 Kč |
| Číslo zakázky: | REALITYMIX-00099 |
Podrobné informace
- Poloha objektu: samostatný
- Druh objektu: dřevěná
- Stav objektu: novostavba
- Počet podlaží objektu: 1
- Typ domu: přízemní
- Zastavěná plocha: 98 m²
- Plocha parcely: 726 m²
- Užitná plocha: 98 m²
- Ostatní: Bezbarierový přístup, Parkoviště
- Umístění objektu: klidná část obce
- Doprava: vlak, dálnice, silnice, autobus
- Komunikace: asfaltová
- Elektřina: Elektro - 230 V
- Voda: Voda - dálkový vodovod
- Telekomunikace: Internet
- Topení: Lokální - tuhá paliva
- Odpad: Kanalizace
- Energetická náročnost budovy: B - Velmi úsporná
- Ukazatel energetické náročnosti budovy: 133 kWh/m²
- Energetický ukazatel podle vyhlášky: č. 78/2013 Sb.
Právní rádce
-
Detail
V tomto článku shrneme nejdůležitější věci, které byste si měli promyslet, pokud se chystáte prodat svou nemovitost a chcete, abyste s kupujícím nemusel následně řešit vzniklé problémy.
Jako prodávající nesete rizika spojená nejen se samotným obchodem, ale i se stavem nemovitosti v době prodeje a pro minimalizaci rizik, je dobré se zamyslet nad uvedenými oblastmi.
-
Detail
Realitní makléř má své nezastupitelné místo v realitním obchodu. Realitním makléřem nemyslím nevzdělané jelito, které absolvovalo dvoudenní školení a ví, jak se nahraje inzerát na inzertní portál.
Realitním makléřem, který se Vám skutečně vyplatí, je zkušený profesionál, který je schopen Vám dobře poradit jak prodat za co nejvíc a s nejmenším rizikem a hlavně je Vás schopen obratně provést celým realitním obchodem.