Prodej - dům/vila, 189 m²
Malotice, Kolín
Cena na vyžádáníProdej - dům/vila, 189 m²
Malotice, Kolín
MALOTICE, HISTORICKÁ USEDLOST 189 m², POZEMEK 1028 m²
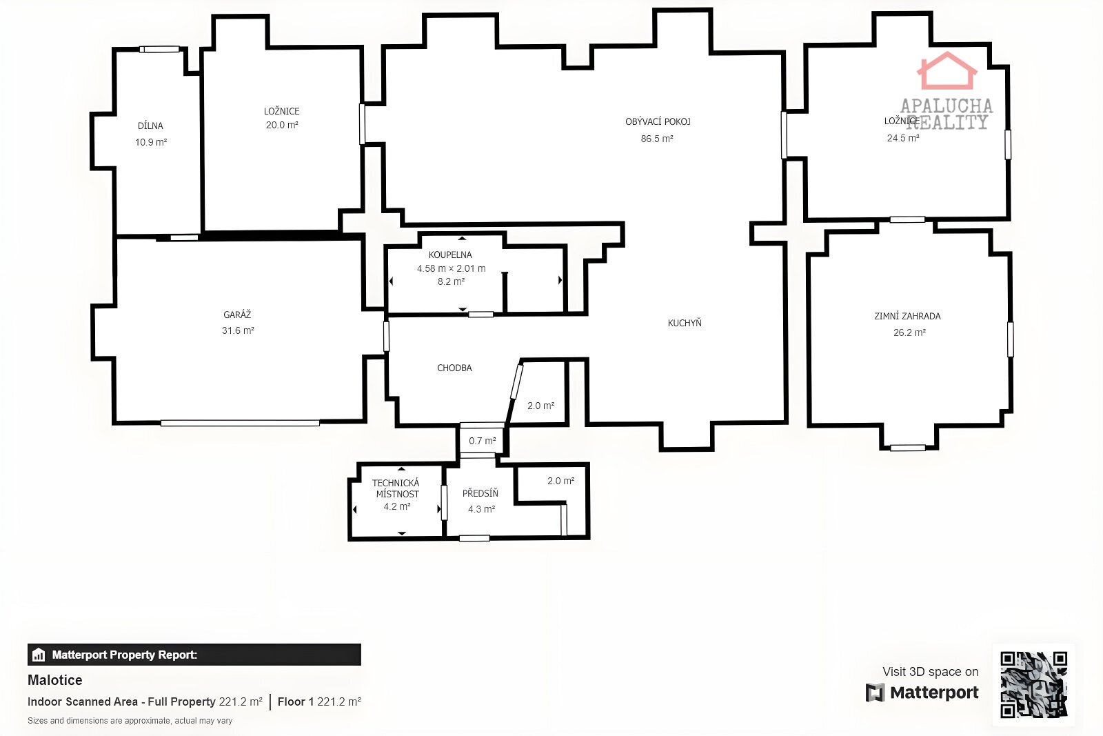
Neuvěřitelné kouzlo této nemovitosti na Vás dýchne okamžitě po vstupu do haly spojené s kuchyní a obývacím pokojem, kde nechybí ani krb a ranní kávu si můžete vychutnat přímo na břehu rybníka, nebo na terase s vířivkou.
Náročná rekonstrukce proběhla v zámeckém stylu s dokončením v roce 2021. Rekonstrukcí prošel doslova každý kousek a součást domu. Pozornost byla věnována každé spáře mezi cihlami, obnoveny byly klenby se zvýrazněním kamenných částí stavby, což zvýrazňuje historický potenciál usedlosti. Nová plastová okna s trojskly udrží teplo jak z podlahového vytápění, tak z krbu, ve kterém si zajisté budete s chutí v zimních večerech zatápět. Vytápění je řešeno automatickým kotlem na pelety a uhlí, případně kusové dřevo s podlahovým rozvodem. V obývacím pokoji je možnost zatápění v krbu a v kuchyni v kachlových kamnech a samozřejmě se nezapomnělo ani na nové krovy, izolaci a novou střešní krytinu.
Přímo z ložnice je vstup na zastřešenou terasu a zimní zahradu, kterou si již uděláte k obrazu svému sami.
Zahrada disponuje zatravněnou částí s malým jezírkem a množstvím designových prvků, které jsou patrné z fotografií. U domu je umístěn kotec pro čtyřnohého přítele.
K dispozici je garáž, kam lze zaparkovat až dvě vozidla a další možností je venkovní stání.
Dům má tři komíny s pravidelnými revizemi. Teplou vodu zajišťuje 200 l bojler. Dům je zároveň velmi udržitelný s vlastním zdrojem pitné vody z kopané studny, hluboké 9 metrů a užitkové vody z druhé studny. Výhledově se v obci plánuje obecní vodovod.
V současné chvíli je odpad řešen vlastním septikem s trativodem.
Dům je zabezpečen EZS a napojen na pult centrální ochrany s kamerovým systémem se záznamem. V celém domě je rozvod datové sítě a Wi-Fi.
Vjezdová brána a garážová vrata vč. EZS jsou dálkově ovládány jedním ovladačem.
Historie domu je datována do 14. století, kdy byla rovněž postavena sousední gotická vodní tvrz, kterou postavili kutnohorští měšťané, ze které se dochovala již jen věž.
Veškerá občanská vybavenost je v nedaleké, 5 km vzdálené Kouřimi. Praha je vzdálena 50 km, Kolín a Kutná Hora 22 km.
Jedná se o exkluzivní nemovitost, která nabízí jak potenciál krásného bydlení s historickým nádechem, tak i značnou komerční hodnotu.
| Cena: | Cena na vyžádání |
| Poznámka: | informace o ceně v RK |
| Číslo zakázky: | REALITYMIX-25A186 |
Podrobné informace
- Poloha objektu: samostatný
- Druh objektu: smíšená
- Stav objektu: po rekonstrukci
- Počet podlaží objektu: 1
- Typ domu: přízemní
- Zastavěná plocha: 189 m²
- Plocha parcely: 1028 m²
- Zahrada: 1028 m²
- Užitná plocha: 189 m²
- Umístění objektu: klidná část obce
- Komunikace: asfaltová
- Elektřina: Elektro - 230 V, Elektro - 400 V
- Voda: Zdroj pro celý objekt
- Topení: Lokální - tuhá paliva, Jiné
- Energetická náročnost budovy: E - Nehospodárná
- Energetický ukazatel podle vyhlášky: č. 264/2020 Sb.
Právní rádce
-
Detail
V tomto článku shrneme nejdůležitější věci, které byste si měli promyslet, pokud se chystáte prodat svou nemovitost a chcete, abyste s kupujícím nemusel následně řešit vzniklé problémy.
Jako prodávající nesete rizika spojená nejen se samotným obchodem, ale i se stavem nemovitosti v době prodeje a pro minimalizaci rizik, je dobré se zamyslet nad uvedenými oblastmi.
-
Detail
Realitní makléř má své nezastupitelné místo v realitním obchodu. Realitním makléřem nemyslím nevzdělané jelito, které absolvovalo dvoudenní školení a ví, jak se nahraje inzerát na inzertní portál.
Realitním makléřem, který se Vám skutečně vyplatí, je zkušený profesionál, který je schopen Vám dobře poradit jak prodat za co nejvíc a s nejmenším rizikem a hlavně je Vás schopen obratně provést celým realitním obchodem.