Prodej - dům/vila, 184 m²
Mečichov, Strakonice
2 500 000 KčProdej - dům/vila, 184 m²
Mečichov, Strakonice
Prodej rodinného domu na návsi obce Mečichov 15 km od Strakonic
V nedávné době byla provedena úprava střechy nad obytnou částí, aby se zabránilo zatékání, a byly vyměněny poškozené střešní latě. V této části budovy byly také zrekonstruovány elektrické rozvody (měď) a vodovodní instalace (plast). I přes polohu nemovitosti vedle hasičské nádrže (dříve rybník) nemá nemovitost problém se zemní vlhkostí. Dům je napojen na plynovou přípojku, kdy plyn je již doveden až do kuchyně odkud se dá případně rozvést do celé nemovitosti. V současnosti není nemovitost vybavena zdrojem vytápění. Možností, jak začít vytápět nemovitost je více, např. plynový kotel, plynové vafky s odtahem přes zeď, kamny na tuhá paliva (nutnost dostavět komín nad střechu – momentálně komín ukončen na půdě).
Stodola o rozloze 56,1 m2 může po úpravě sloužit jako minimálně dvojgaráž. Další hospodářské budovy skýtají velké množství případných možností, jak nemovitost využít.
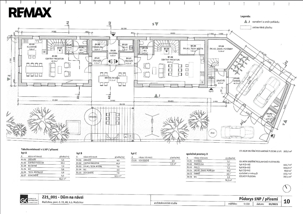
Pro zájemce o kompletní přestavbu je k dispozici platné povolení k odstranění stávající stavby a vypracovaný projekt pro novou stavbu na stejné zastavěné ploše. Půdorys nového projektu je k vidění na konci fotogalerie.
Mečichov je malebná obec nacházející se v Jihočeském kraji, přibližně 15 km severovýchodně od Strakonic, kam z obce vede dobré autobusové spojení a kde se nachází několik obchodních center. Tato klidná obec se zhruba 300 obyvateli je obklopena krásnou přírodou, což ji činí ideálním místem pro milovníky venkova a rekreace. Spojují se zde tři cyklostezky a okolí je obklopeno několika rybníky s krásnou přírodou. Výhoda obce je také její poloha mimo jakékoliv rušné silniční tahy. Zároveň ale se nájezd na dálnice D4 nachází pouhých 20 minut od obce. V obci se nachází základní občanská vybavenost, včetně obchodu s nepřetržitým provozem a pohostinství. Díky své poloze nabízí Mečichov snadný přístup k turistickým trasám a cyklostezkám, které vedou malebnou jihočeskou krajinou.
Tato nemovitost představuje ideální příležitost pro ty, kteří hledají dům k rekonstrukci s možností vytvořit si domov nebo místo pro rekreaci podle vlastních představ.
V případě potřeby pomůže s vyřízením financování.
Pro více informací a domluvení prohlídky mě neváhejte kontaktovat. Prodávající si vyhrazuje právo vybrat kupujícího na základě jím zvolených kritérií.
| Cena: | 2 500 000 Kč |
| Poznámka: | vč. všech realitních a právních služeb |
| Číslo zakázky: | REALITYMIX-415847 |
Podrobné informace
- Poloha objektu: samostatný
- Druh objektu: smíšená
- Stav objektu: před rekonstrukcí
- Počet podlaží objektu: 1
- Typ domu: přízemní
- Zastavěná plocha: 276 m²
- Plocha parcely: 673 m²
- Zahrada: 397 m²
- Užitná plocha: 184 m²
- Doprava: silnice, autobus
- Komunikace: asfaltová
- Elektřina: Elektro - 230 V, Elektro - 400 V
- Voda: Voda - dálkový vodovod
- Plyn: Plynovod
- Energetická náročnost budovy: G - Mimořádně nehospodárná
- Energetický ukazatel podle vyhlášky: č. 264/2020 Sb.
Právní rádce
-
Detail
V tomto článku shrneme nejdůležitější věci, které byste si měli promyslet, pokud se chystáte prodat svou nemovitost a chcete, abyste s kupujícím nemusel následně řešit vzniklé problémy.
Jako prodávající nesete rizika spojená nejen se samotným obchodem, ale i se stavem nemovitosti v době prodeje a pro minimalizaci rizik, je dobré se zamyslet nad uvedenými oblastmi.
-
Detail
Realitní makléř má své nezastupitelné místo v realitním obchodu. Realitním makléřem nemyslím nevzdělané jelito, které absolvovalo dvoudenní školení a ví, jak se nahraje inzerát na inzertní portál.
Realitním makléřem, který se Vám skutečně vyplatí, je zkušený profesionál, který je schopen Vám dobře poradit jak prodat za co nejvíc a s nejmenším rizikem a hlavně je Vás schopen obratně provést celým realitním obchodem.