Prodej - dům/vila, 28 m²
Brněnská, Miroslav, Znojmo
1 590 000 KčProdej - dům/vila, 28 m²
Brněnská, Miroslav, Znojmo
Prodej rodinného domu k rekonstrukci - Miroslav u Brna
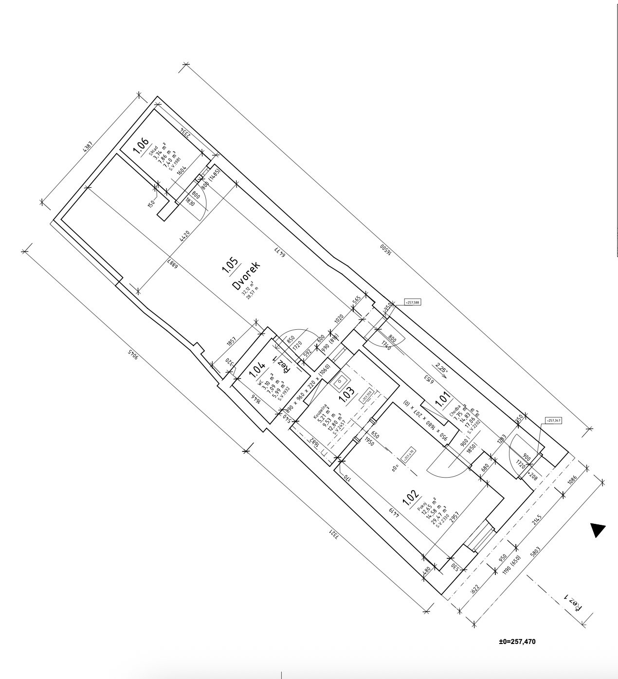
Součástí prodeje je architektonická studie, která rozšiřuje původní užitnou plochu na 88,40 m² a proměňuje objekt v moderní open-space rodinný dům se zahrádkou.
Projekt je navržen tak, že k realizaci rekonstrukce postačí pouze ohlášení stavby, bez nutnosti stavebního povolení. K dokončení stavební dokumentace zbývá doplnit stanoviska geologa, statika hasičů a souhlas sousedů.
Odhadované náklady na rekonstrukci činí přibližně 1 800 000 Kč.
Dům je již napojen na elektřinu, vodovod i kanalizaci. V přiložené galerii naleznete vizualizace a půdorysy finální podoby domu po rekonstrukci.
Lokalita:
Miroslav leží zhruba 30 minut jízdy od Brna a nabízí veškerou občanskou vybavenost – školu, školku, obchody, restaurace i lékaře.
Výborné dopravní spojení vlakem i autobusem zajišťuje pohodlný dojezd do Brna, Znojma i okolních měst.
Klidné prostředí, blízkost vinic a dostatek zeleně dělají z Miroslavi ideální místo pro rodinné bydlení i rekreační dům.
Shrnutí nabídky:
- užitná plocha po rekonstrukci: 88,40 m²
- architektonická studie v ceně
- odhadované náklady: cca 1,8 mil. Kč
- napojeno na elektřinu, vodu, kanalizaci
- pouze ohlášení stavby, bez nutnosti stavebního povolení
- klidná a dobře dostupná lokalita
Máte zájem o více informací nebo osobní prohlídku?
Kontaktujte mě, rád Vám vše představím osobně.
| Cena: | 1 590 000 Kč |
| Číslo zakázky: | REALITYMIX-100450 |
Podrobné informace
- Poloha objektu: řadový
- Druh objektu: smíšená
- Stav objektu: před rekonstrukcí
- Počet podlaží objektu: 1
- Typ domu: přízemní
- Zastavěná plocha: 28 m²
- Plocha parcely: 85 m²
- Užitná plocha: 28 m²
- Doprava: silnice, MHD, autobus
- Voda: Voda - dálkový vodovod
- Odpad: Kanalizace
- Energetická náročnost budovy: G - Mimořádně nehospodárná
Právní rádce
-
Detail
V tomto článku shrneme nejdůležitější věci, které byste si měli promyslet, pokud se chystáte prodat svou nemovitost a chcete, abyste s kupujícím nemusel následně řešit vzniklé problémy.
Jako prodávající nesete rizika spojená nejen se samotným obchodem, ale i se stavem nemovitosti v době prodeje a pro minimalizaci rizik, je dobré se zamyslet nad uvedenými oblastmi.
-
Detail
Realitní makléř má své nezastupitelné místo v realitním obchodu. Realitním makléřem nemyslím nevzdělané jelito, které absolvovalo dvoudenní školení a ví, jak se nahraje inzerát na inzertní portál.
Realitním makléřem, který se Vám skutečně vyplatí, je zkušený profesionál, který je schopen Vám dobře poradit jak prodat za co nejvíc a s nejmenším rizikem a hlavně je Vás schopen obratně provést celým realitním obchodem.