Prodej - dům/vila, 550 m²
Turov, Pardubice
9 100 000 KčProdej - dům/vila, 550 m²
Turov, Pardubice
Prodej rodinného domu 550 m2, Moravany
Dům se nachází v obci Turov, která spadá pod obec Moravany v dojezdové vzdálenosti 5 minut od nájezdu na D35.
V občanské vybavenosti obce je základní i mateřská škola v Moravanech, prodejny potravin, sportovní a zájmové kluby, pošta, praktický lékař, zubní péče, přírodní koupaliště se zázemím, prodejna stavebnin a pracovní příležitosti.
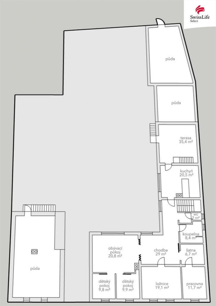
K domu patří i pozemky, které jso uv územním plánu určené k zástavbě vesnického typu a částečně jako zeleň.
Dům bude k nastěhování po převodu na nového majitele.
| Cena: | 9 100 000 Kč |
| Číslo zakázky: | REALITYMIX-24316 |
Podrobné informace
- Poloha objektu: samostatný
- Druh objektu: cihlová
- Stav objektu: dobrý
- Počet podlaží objektu: 2
- Typ domu: patrový
- Zastavěná plocha: 600 m²
- Plocha parcely: 2537 m²
- Užitná plocha: 550 m²
- Sklep: 20 m²
- Terasa: 35 m²
- Umístění objektu: centrum obce
- Doprava: dálnice, silnice, autobus
- Plyn: Individuální
Právní rádce
-
Detail
V tomto článku shrneme nejdůležitější věci, které byste si měli promyslet, pokud se chystáte prodat svou nemovitost a chcete, abyste s kupujícím nemusel následně řešit vzniklé problémy.
Jako prodávající nesete rizika spojená nejen se samotným obchodem, ale i se stavem nemovitosti v době prodeje a pro minimalizaci rizik, je dobré se zamyslet nad uvedenými oblastmi.
-
Detail
Realitní makléř má své nezastupitelné místo v realitním obchodu. Realitním makléřem nemyslím nevzdělané jelito, které absolvovalo dvoudenní školení a ví, jak se nahraje inzerát na inzertní portál.
Realitním makléřem, který se Vám skutečně vyplatí, je zkušený profesionál, který je schopen Vám dobře poradit jak prodat za co nejvíc a s nejmenším rizikem a hlavně je Vás schopen obratně provést celým realitním obchodem.