Prodej - dům/vila, 134 m²
Ječná, Nymburk
7 850 000 KčProdej - dům/vila, 134 m²
Ječná, Nymburk
Prodej rodinného domu po rekonstrukci 4+kk, pozemek 206 m², ulice Ječná, Nymburk
Dům prošel kompletní a kvalitní rekonstrukcí v letech 2020/2021 a je připraven splnit všechny vaše představy o moderním a komfortním bydlení.
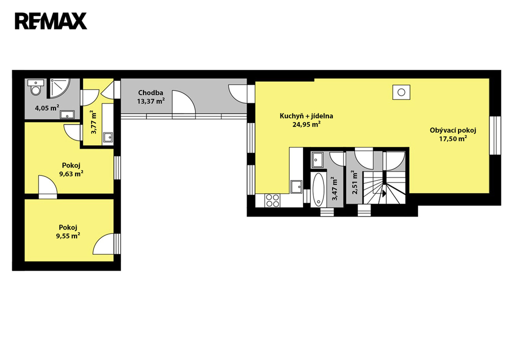
V přízemí domu se nachází prostorný obývací pokoj propojený s jídelnou a moderním kuchyňským koutem. Dům je dále propojen prosklenou chodbou s další samostatnou jednotkou, která nabízí vlastní kuchyňský kout, pokoj, koupelnu a vstupní pokoj – ideální pro hosty, vícegenerační bydlení nebo pronájem.
V patře najdete dva útulné pokoje vhodné jako ložnice, dětské pokoje či pracovny. Samostatná bytová jednotka má vlastní elektroměr, což umožňuje nezávislé užívání nebo pronájem.
Vytápění domu zajišťuje nový plynový kotel, který rozvádí teplo do radiátorů v hlavní části domu i v přilehlé bytové jednotce. V obývacím pokoji jsou navíc krbová kamna s komínem (komín má platnou revizi), která vytvářejí příjemnou atmosféru a mohou sloužit jako doplňkový zdroj tepla. Vedlejší byt je dále vybaven přímotopy, díky nimž je možné jej vytápět zcela nezávisle na hlavním domě.
K dispozici je obecní voda i vlastní studna na pozemku s čerpadlem a hadicí pro zalévání zahrady. Teplou vodu zajišťují dva elektrické bojlery (80 l a 25 l), přičemž menší bojler se automaticky doplňuje z většího v případě, že se teplá voda spotřebuje. Bojlery jsou umístěné v suterénu domu.
Tepelné fólie na plastových oknech a francouzském okně na stinné straně domu zajišťují efektivnější tepelnou izolaci a příjemnější prostředí v interiéru. V každé místnosti je navíc síť proti hmyzu. Protihluková stěna poskytuje maximální klid a soukromí. Dům je zateplený, což zajišťuje nízké provozní náklady a energetickou úspornost. Internetové připojení je zajištěno od společnosti MARCOMNET.
Tato nemovitost je ideální volbou pro ty, kteří hledají klidné a bezpečné bydlení s veškerým komfortem moderního života.
Neváhejte mě kontaktovat pro více informací nebo domluvení prohlídky tohoto výjimečného domu v Nymburce. Prodávající si vyhrazuje právo vybrat kupujícího na základě jím zvolených kritérií.
| Cena: | 7 850 000 Kč |
| Poznámka: | Cena včetně provize a právních služeb. |
| Datum k nastěhování: | 11.03.2026 |
| Číslo zakázky: | REALITYMIX-434293 |
Podrobné informace
- Poloha objektu: v bloku
- Druh objektu: cihlová
- Stav objektu: po rekonstrukci
- Počet podlaží objektu: 2
- Typ domu: patrový
- Zastavěná plocha: 108 m²
- Plocha parcely: 206 m²
- Užitná plocha: 134 m²
- Sklep: 4 m²
- Umístění objektu: klidná část obce
- Doprava: vlak, dálnice, silnice, autobus
- Komunikace: asfaltová
- Elektřina: Elektro - 230 V, Elektro - 400 V
- Voda: Voda - dálkový vodovod
- Plyn: Plynovod
- Odpad: Kanalizace
- Energetická náročnost budovy: D - Méně úsporná
- Ukazatel energetické náročnosti budovy: 380 kWh/m²
- Energetický ukazatel podle vyhlášky: č. 264/2020 Sb.
Právní rádce
-
Detail
V tomto článku shrneme nejdůležitější věci, které byste si měli promyslet, pokud se chystáte prodat svou nemovitost a chcete, abyste s kupujícím nemusel následně řešit vzniklé problémy.
Jako prodávající nesete rizika spojená nejen se samotným obchodem, ale i se stavem nemovitosti v době prodeje a pro minimalizaci rizik, je dobré se zamyslet nad uvedenými oblastmi.
-
Detail
Realitní makléř má své nezastupitelné místo v realitním obchodu. Realitním makléřem nemyslím nevzdělané jelito, které absolvovalo dvoudenní školení a ví, jak se nahraje inzerát na inzertní portál.
Realitním makléřem, který se Vám skutečně vyplatí, je zkušený profesionál, který je schopen Vám dobře poradit jak prodat za co nejvíc a s nejmenším rizikem a hlavně je Vás schopen obratně provést celým realitním obchodem.