Prodej - dům/vila, 210 m²
Pod Skalkou, Ochoz u Brna, Brno-venkov
29 400 000 KčProdej - dům/vila, 210 m²
Pod Skalkou, Ochoz u Brna, Brno-venkov
Podej samostatně stojícího RD 5+kk s garáží a zahradou
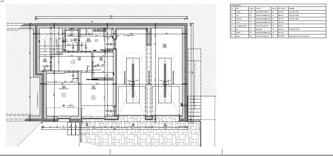
1. PP - technické: zádveří, vstupní hala, WC, technická místnost, pracovna, garáž pro dva automobily;
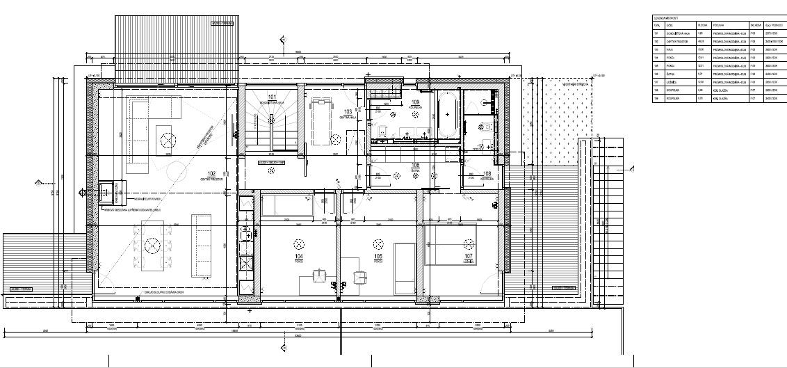
1. NP obytné: hala, obývací pokoj s kuchyňským koutem (48 m2, v obytné části s výškou stropu 4,5 m), dva pokoje (12,5 m2;12,5 m2), ložnice s vlastní šatnou, koupelnou a toaletou (24 m2), koupelna společná s toaletou, vstup na tři terasy a do zahrady.
Technický popis: základové pasy + ŽB základová deska, svislé konstrukce 1.PP btb tvarovky, 1.NP keramické tvarovky, strop 1.PP ŽB monolitická deska, strop 1.NP řešen jako součást konstrukce dřevěného krovu, střecha sedlová s keramickou krytinou, omítaná fasáda s částečně dřevěným obkladem ze sibiřského modřínu, provedená v zateplovacím systému ETICS, výplně otvorů hliníkové, velkoplošná skla, předokenní žaluzie. Primárním zdrojem tepla je rekuperační jednotka s integrovaným tepelným čerpadlem s výkonem až 1,3 kW, sekundárním zdrojem tepla je ve všech místnostech elektrické podlahové topení, interiérové schodiště zděné Ytong, dešťová voda svedena do akumulační jímky s bezpečnostním přepadem do vsakovacích bloků. V ceně domu je zahrnuta chytrá domácnost SOMFY, díky které bude možné ovládat žaluzie, garážová vrata, regulaci topení a videotelefon, zabezpečovací systém s napojením dveřních magnetů a sensorů pohybu, venkovní kamery. V ložnici, dětských pokojích a obývacím prostoru budou integrovány klimatizační jednotky. Dům bude prodáván ve stupni dokončení and #34;White Walls and #34; (bez podlahových krytin, obkladů, zařizovacích předmětů, dveří).
Venkovní schodiště propojuje úroveň vjezdu a zahrady v úrovní 1.NP. Celý pozemek bude oplocen plotovými 3D panely, uliční oplocení bude tvořit opěrná zeď, zpevněné plochy budou zajišťovat jedno odstavné a jedno parkovací místo.
V současné době je dům ve fázi hrubé stavby.
V lokalitě Pod Skalkou se k prodeji nabízí i další viladomy a RD, více informací v RK.
Obec Ochoz u Brna leží na okraji CHKO Moravský kras v těsné blízkosti lesů, ve vzdálenosti 7 km od hranice městské části Brno - Líšeň.
Občanská vybavenost: Česká pošta, praktický lékař pro dospělé, ZŠ a MŠ, Lesní mateřská škola LESINKA, Restaurace Na kovárně, pension Ochozzerie, Bistro - areál Svazarmu, Restaurace Verona, zájmové organizace Skaut, TJ.
Dostupnost IDS: autobus 201 - Židenice nádraží, Jedovnice; autobus č. 210 - Hostěnice, Bílovice nad Svitavou (žel. stanice).
| Cena: | 29 400 000 Kč |
| Poznámka: | včetně provize RK |
| Číslo zakázky: | REALITYMIX-18538 |
Podrobné informace
- Poloha objektu: samostatný
- Druh objektu: cihlová
- Stav objektu: novostavba
- Počet podlaží objektu: 2
- Typ domu: patrový
- Zastavěná plocha: 257 m²
- Plocha parcely: 1033 m²
- Užitná plocha: 210 m²
- Umístění objektu: klidná část obce
- Topení: Lokální - elektrické
- Odpad: Kanalizace
- Energetická náročnost budovy: C - Vyhovující
Právní rádce
-
Detail
V tomto článku shrneme nejdůležitější věci, které byste si měli promyslet, pokud se chystáte prodat svou nemovitost a chcete, abyste s kupujícím nemusel následně řešit vzniklé problémy.
Jako prodávající nesete rizika spojená nejen se samotným obchodem, ale i se stavem nemovitosti v době prodeje a pro minimalizaci rizik, je dobré se zamyslet nad uvedenými oblastmi.
-
Detail
Realitní makléř má své nezastupitelné místo v realitním obchodu. Realitním makléřem nemyslím nevzdělané jelito, které absolvovalo dvoudenní školení a ví, jak se nahraje inzerát na inzertní portál.
Realitním makléřem, který se Vám skutečně vyplatí, je zkušený profesionál, který je schopen Vám dobře poradit jak prodat za co nejvíc a s nejmenším rizikem a hlavně je Vás schopen obratně provést celým realitním obchodem.