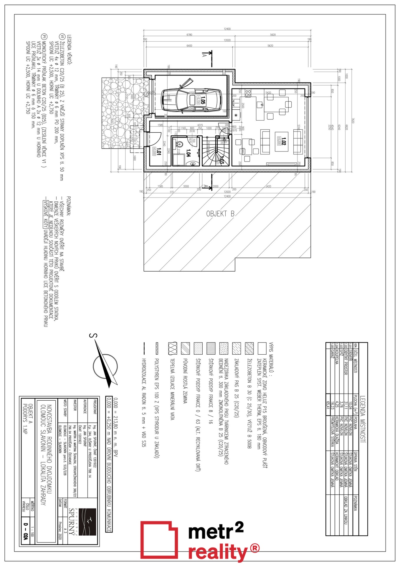
Prodej - dům/vila, 143 m²
Slavoje Kovaříka, Slavonín, Olomouc
13 400 000 KčProdej - dům/vila, 143 m²
Slavoje Kovaříka, Slavonín, Olomouc
Prodej rodinného domu 4+kk s garáží / Olomouc - Slavoje Kovaříka
| Cena: | 13 400 000 Kč |
| Číslo zakázky: | REALITYMIX-468/25 |
Podrobné informace
- Poloha objektu: rohový
- Druh objektu: cihlová
- Stav objektu: ve výstavbě (hrubá stavba)
- Počet podlaží objektu: 1
- Typ domu: patrový
- Zastavěná plocha: 143 m²
- Plocha parcely: 242 m²
- Užitná plocha: 143 m²
- Ostatní: Garáž
- Umístění objektu: klidná část obce
- Energetická náročnost budovy: B - Velmi úsporná
- Ukazatel energetické náročnosti budovy: 75 kWh/m²
- Energetický ukazatel podle vyhlášky: č. 264/2020 Sb.
Právní rádce
-
Detail
V tomto článku shrneme nejdůležitější věci, které byste si měli promyslet, pokud se chystáte prodat svou nemovitost a chcete, abyste s kupujícím nemusel následně řešit vzniklé problémy.
Jako prodávající nesete rizika spojená nejen se samotným obchodem, ale i se stavem nemovitosti v době prodeje a pro minimalizaci rizik, je dobré se zamyslet nad uvedenými oblastmi.
-
Detail
Realitní makléř má své nezastupitelné místo v realitním obchodu. Realitním makléřem nemyslím nevzdělané jelito, které absolvovalo dvoudenní školení a ví, jak se nahraje inzerát na inzertní portál.
Realitním makléřem, který se Vám skutečně vyplatí, je zkušený profesionál, který je schopen Vám dobře poradit jak prodat za co nejvíc a s nejmenším rizikem a hlavně je Vás schopen obratně provést celým realitním obchodem.