Prodej - dům/vila, 164 m²
Kralupská, Olovnice, Mělník
11 970 000 KčProdej - dům/vila, 164 m²
Kralupská, Olovnice, Mělník
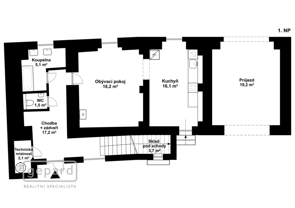
RD Olovnice, 5+1, 164,9 m2
Hlavní obytná budova je krásný historický kamenný dům s prvními písemnými zmínkami již z roku 1826, zachovávající původní kamenné prvky a cihlové klenby, které dodávají interiéru jedinečnou atmosféru. Nemovitost prošla v minulých letech citlivou rekonstrukcí, zahrnující mimo jiné i novou pultovou střechu. V lednu 2026 byla instalována nová dřevěná EURO okna s trojskly, která výrazně zlepšují tepelnou i zvukovou izolaci.
Dům je napojen na kompletní inženýrské sítě - plyn, elektřina, vodovodní řad a kanalizace.
Kromě veřejného vodovodu, je k dispozici i vlastní 18 m hluboká studna, která zajišťuje nezávislý přívod vody.
Součástí pozemku je prostorná vedlejší stavba ideální pro kutily —dvoupodlažní kamenný dům, vhodný jako dílna, sklad nebo tvůrčí ateliér.
Zajistíme výhodné podmínky financování a případný prodej Vaší nemovitosti.
| Cena: | 11 970 000 Kč |
| Číslo zakázky: | REALITYMIX-12161 |
Podrobné informace
- Poloha objektu: samostatný
- Druh objektu: cihlová
- Stav objektu: velmi dobrý
- Počet podlaží objektu: 2
- Typ domu: patrový
- Zastavěná plocha: 130 m²
- Plocha parcely: 459 m²
- Užitná plocha: 164 m²
- Energetická náročnost budovy: G - Mimořádně nehospodárná
- Energetický ukazatel podle vyhlášky: č. 264/2020 Sb.
Právní rádce
-
Detail
V tomto článku shrneme nejdůležitější věci, které byste si měli promyslet, pokud se chystáte prodat svou nemovitost a chcete, abyste s kupujícím nemusel následně řešit vzniklé problémy.
Jako prodávající nesete rizika spojená nejen se samotným obchodem, ale i se stavem nemovitosti v době prodeje a pro minimalizaci rizik, je dobré se zamyslet nad uvedenými oblastmi.
-
Detail
Realitní makléř má své nezastupitelné místo v realitním obchodu. Realitním makléřem nemyslím nevzdělané jelito, které absolvovalo dvoudenní školení a ví, jak se nahraje inzerát na inzertní portál.
Realitním makléřem, který se Vám skutečně vyplatí, je zkušený profesionál, který je schopen Vám dobře poradit jak prodat za co nejvíc a s nejmenším rizikem a hlavně je Vás schopen obratně provést celým realitním obchodem.