Prodej - dům/vila, 90 m²
U obory, Panenské Břežany, Praha-východ
10 950 000 KčProdej - dům/vila, 90 m²
U obory, Panenské Břežany, Praha-východ
Rodinný dům 6+kk na svažitém pozemku 1 643 m², Panenské Břežany – U Obory, ideální pro rekonstrukci
V Panenských Břežanech, v klidné ulici U Obory, nabízíme k prodeji rodinný dům o dispozici 6+kk, umístěný na prostorném svažitém pozemku o celkové výměře 1 643 m². Dům je v původním stavu a je vhodný buď k rozsáhlé rekonstrukci nebo k demolici a následné výstavbě nového rodinného domu přesně podle představ nového majitele. Tato nemovitost představuje výjimečnou příležitost pro ty, kteří hledají velký pozemek v oblíbené lokalitě s výbornou dostupností Prahy.
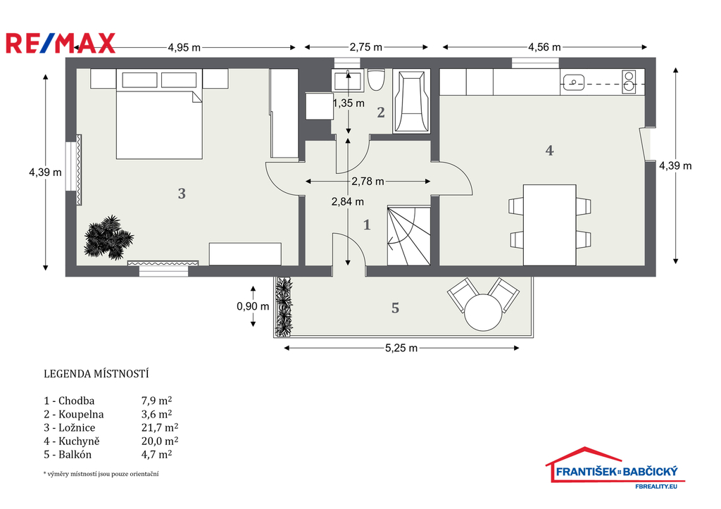
Stávající dvoupodlažní dům má dispozici vycházející z půdorysů: v přízemí se nachází předsíň, komora, obývací pokoj s kuchyňským koutem, další pokoj, toaleta, garáž, prostorná prádelna a další úložné prostory. V patře je umístěna chodba, koupelna, ložnice, kuchyně a balkón s výhledem do zahrady. Celková plocha dle plánů činí 177 m², včetně garáže, balkónu i vedlejších hospodářských částí. Na pozemku se nachází také samostatná garáž a technické zázemí, které mohou sloužit jako dílna nebo sklad.
Nemovitost je napojena na elektřinu, obecní vodovod, kanalizaci i internet. Plyn se nachází přímo na hranici pozemku a je připraven pro budoucí připojení. Svažité terénní uspořádání nabízí možnost atraktivního architektonického řešení, například výstavby víceúrovňového domu nebo terasovité zahrady.
Panenské Břežany jsou žádanou lokalitou díky příjemnému prostředí, blízkosti přírody i hlavního města. V obci se nachází mateřská a základní škola, knihovna, Obecní úřad a výdejní místo pošty. Základní občanská vybavenost je doplněna službami v nedaleké Odoleně Vodě a Brandýse nad Labem. Obec je známá také svými historickými památkami, zejména kaplí sv. Anny a areálem místního zámku, které dodávají lokalitě jedinečný charakter.
Dopravní dostupnost je výborná. Autobusová linka PID 373 navazuje přímo na pražskou stanici metra C Kobylisy, přičemž zastávky jsou v docházkové vzdálenosti od domu. Autem se snadno napojíte na hlavní tahy směrem na Prahu přes Zdiby. Lokalita tak spojuje klidné bydlení s výbornou dostupností města.
Tato nabídka je ideální pro rodinu nebo investora, který hledá prostorný pozemek s potenciálem v atraktivní obci v blízkosti Prahy. Nemovitost je připravena k okamžitému předání.
Prodávající si vyhrazuje právo vybrat kupujícího na základě jím zvolených kritérií.
| Cena: | 10 950 000 Kč |
| Poznámka: | včetně provize a právních služeb |
| Datum k nastěhování: | 11.02.2026 |
| Číslo zakázky: | REALITYMIX-432237 |
Podrobné informace
- Poloha objektu: samostatný
- Druh objektu: smíšená
- Stav objektu: před rekonstrukcí
- Počet podlaží objektu: 2
- Typ domu: patrový
- Zastavěná plocha: 530 m²
- Plocha parcely: 1643 m²
- Zahrada: 1113 m²
- Užitná plocha: 90 m²
- Umístění objektu: klidná část obce
- Doprava: dálnice, silnice, MHD, autobus
- Komunikace: asfaltová
- Elektřina: Elektro - 230 V, Elektro - 400 V
- Voda: Voda - dálkový vodovod
- Telekomunikace: Telefon, Internet
- Plyn: Plynovod
- Odpad: Kanalizace
- Energetická náročnost budovy: G - Mimořádně nehospodárná
- Energetický ukazatel podle vyhlášky: č. 264/2020 Sb.
Právní rádce
-
Detail
V tomto článku shrneme nejdůležitější věci, které byste si měli promyslet, pokud se chystáte prodat svou nemovitost a chcete, abyste s kupujícím nemusel následně řešit vzniklé problémy.
Jako prodávající nesete rizika spojená nejen se samotným obchodem, ale i se stavem nemovitosti v době prodeje a pro minimalizaci rizik, je dobré se zamyslet nad uvedenými oblastmi.
-
Detail
Realitní makléř má své nezastupitelné místo v realitním obchodu. Realitním makléřem nemyslím nevzdělané jelito, které absolvovalo dvoudenní školení a ví, jak se nahraje inzerát na inzertní portál.
Realitním makléřem, který se Vám skutečně vyplatí, je zkušený profesionál, který je schopen Vám dobře poradit jak prodat za co nejvíc a s nejmenším rizikem a hlavně je Vás schopen obratně provést celým realitním obchodem.
Mapa
Podobné nemovitosti
Prodej - dům/vila, 138 m²
Petra Jilemnického, Brandýs nad Labem, Praha-východ
8 900 000 Kč
Prodej - dům/vila, 183 m²
Výletní, Brandýs nad Labem, Praha-východ
11 500 000 Kč
Prodej - dům/vila, 70 m²
Masarykova, Čelákovice, Praha-východ
9 900 000 Kč
Prodej - dům/vila, 110 m²
Svojetická, Louňovice, Praha-východ
8 500 000 Kč